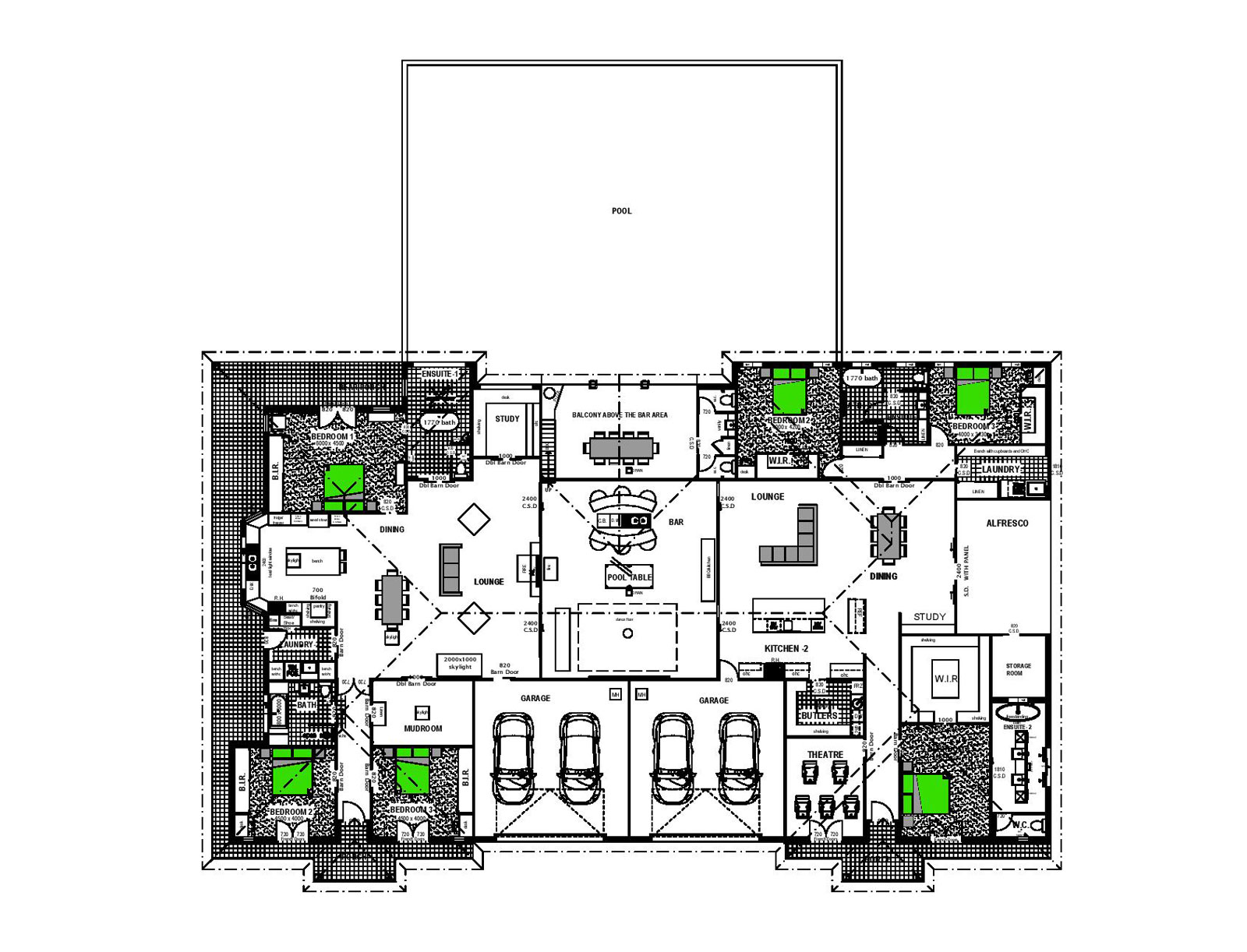
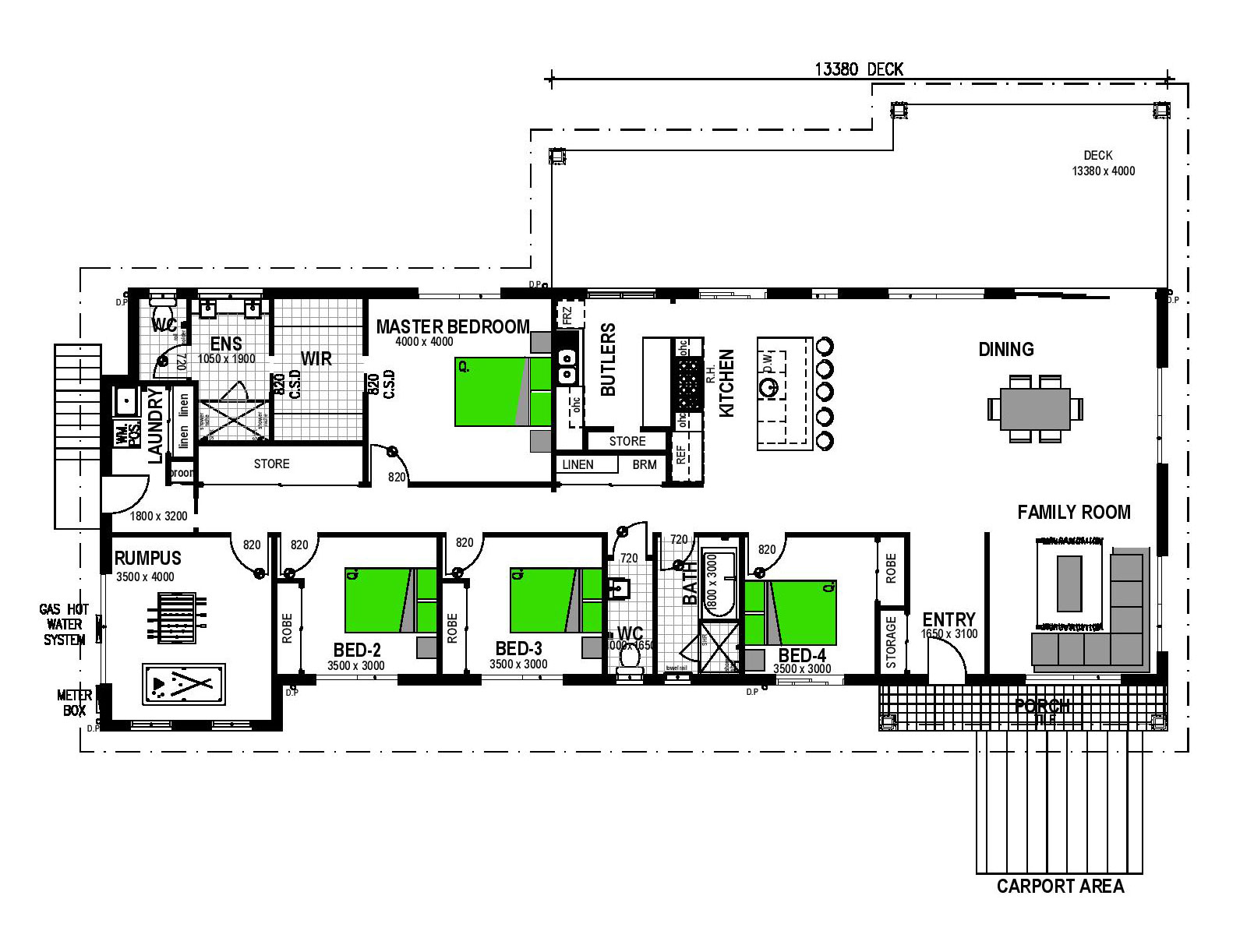
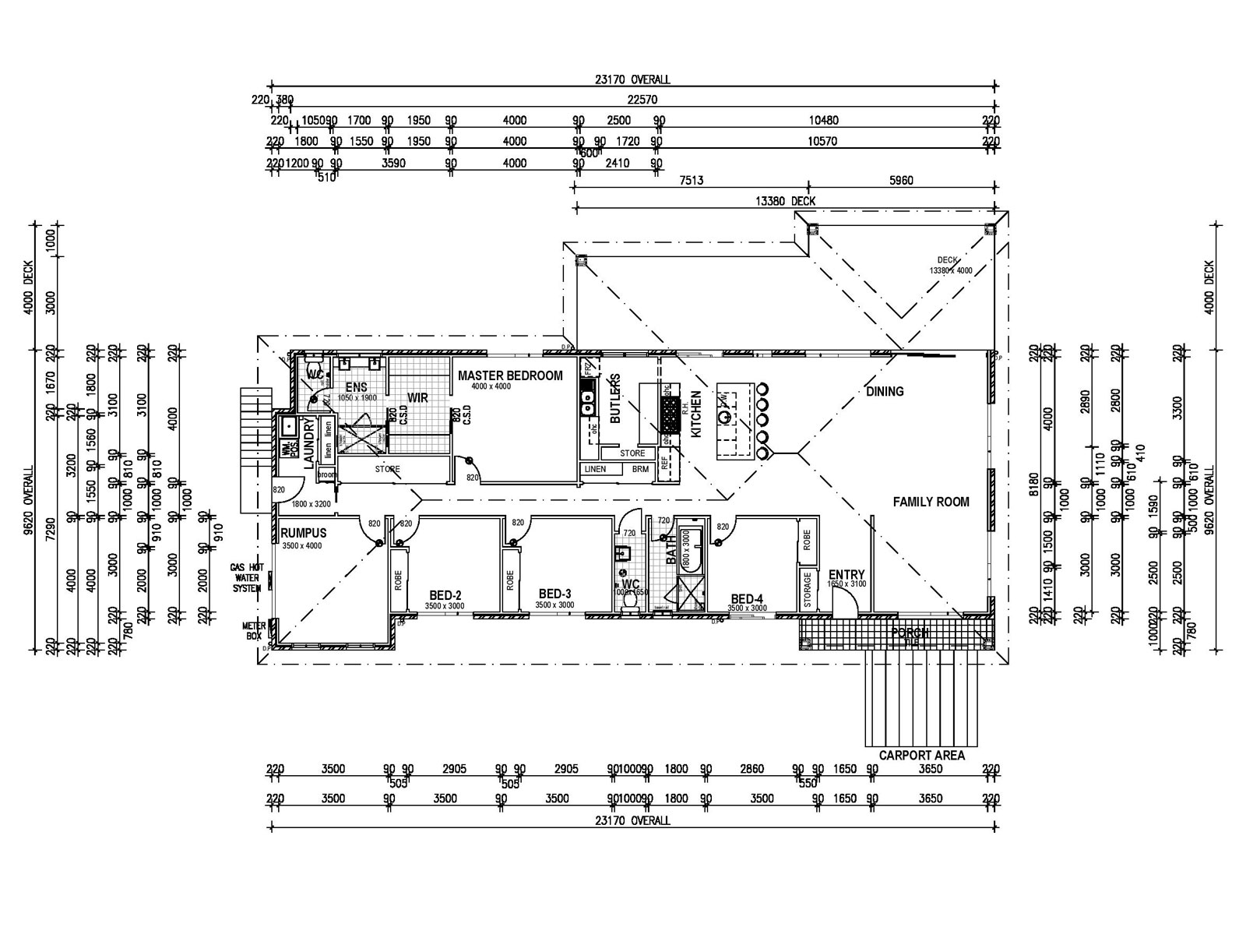
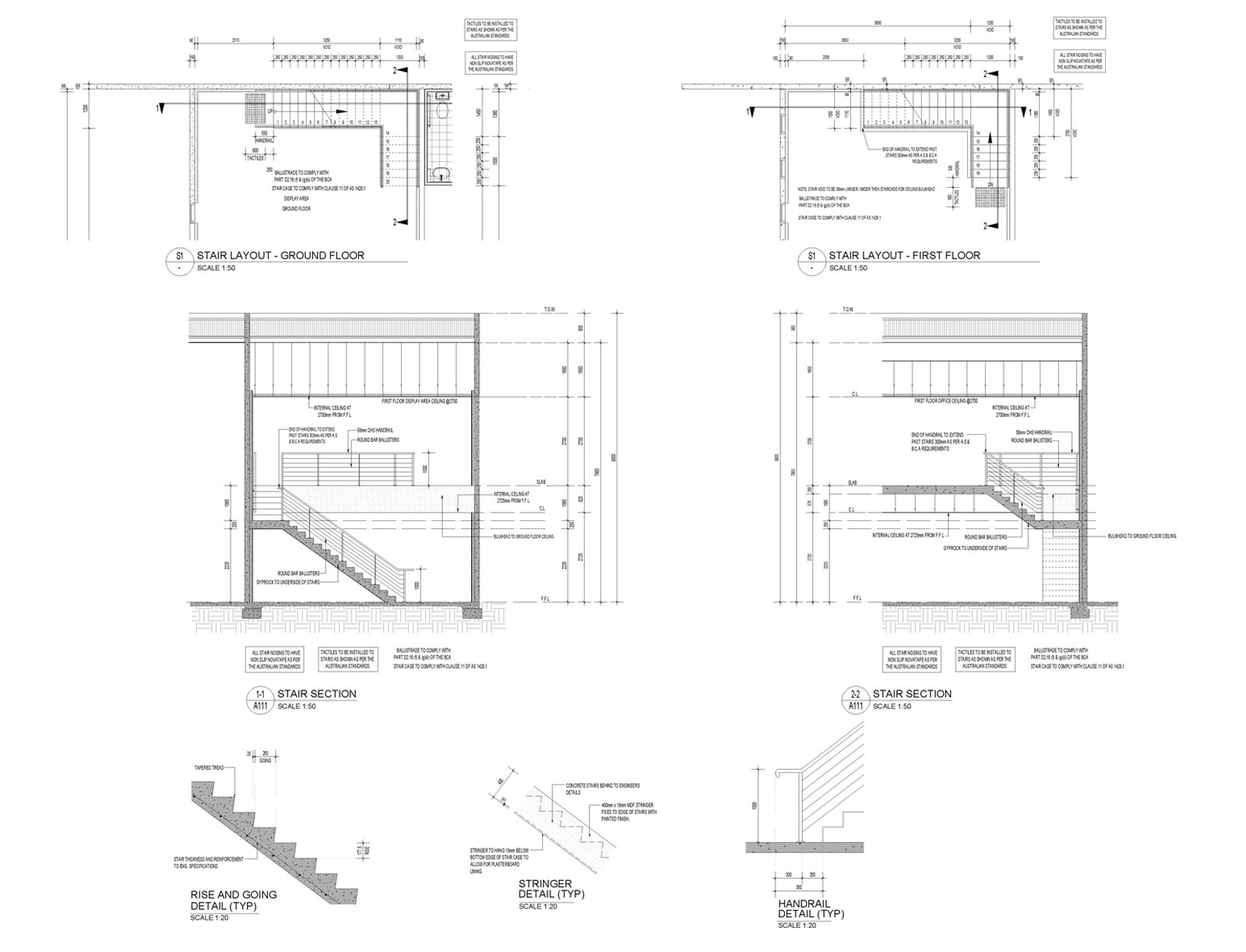
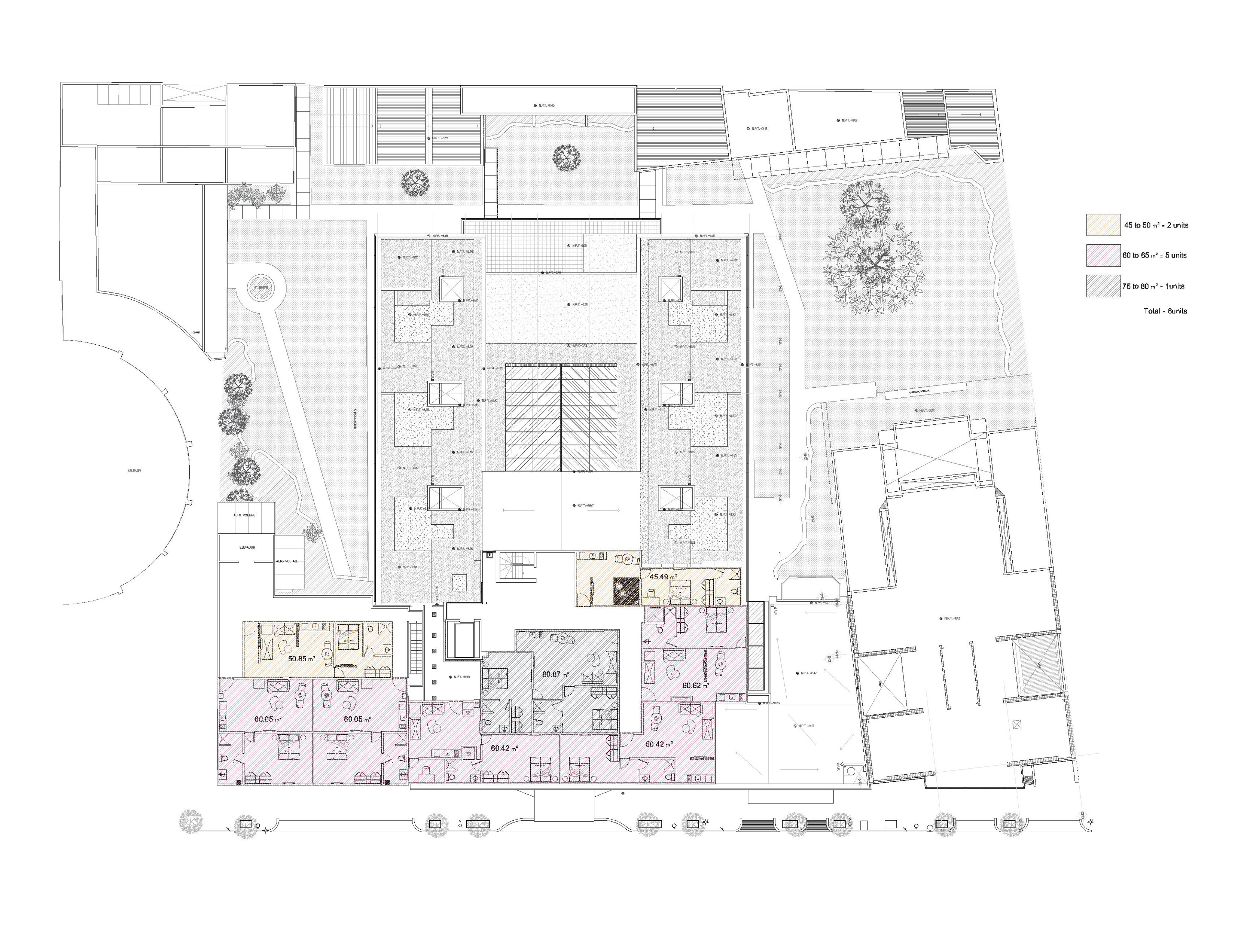
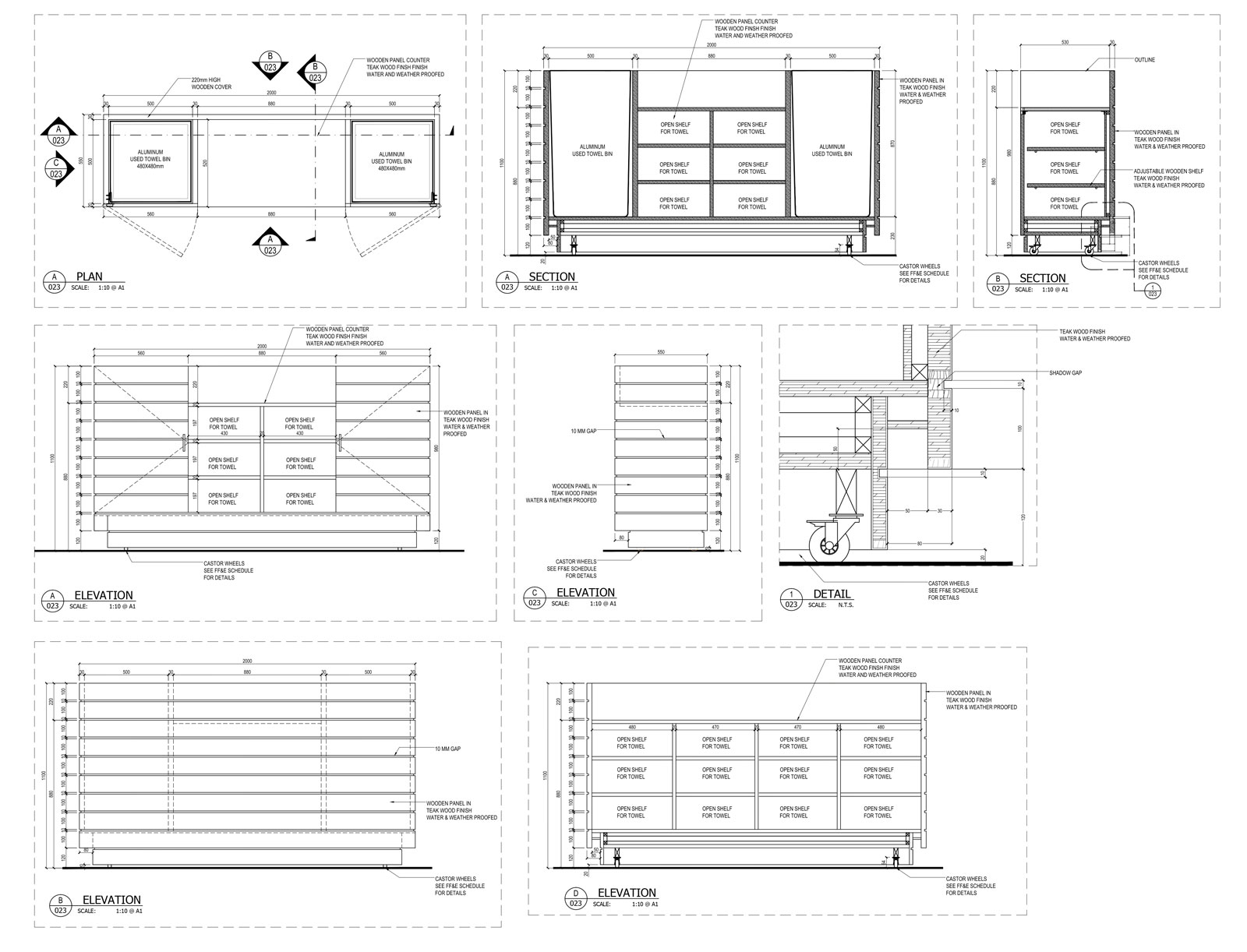
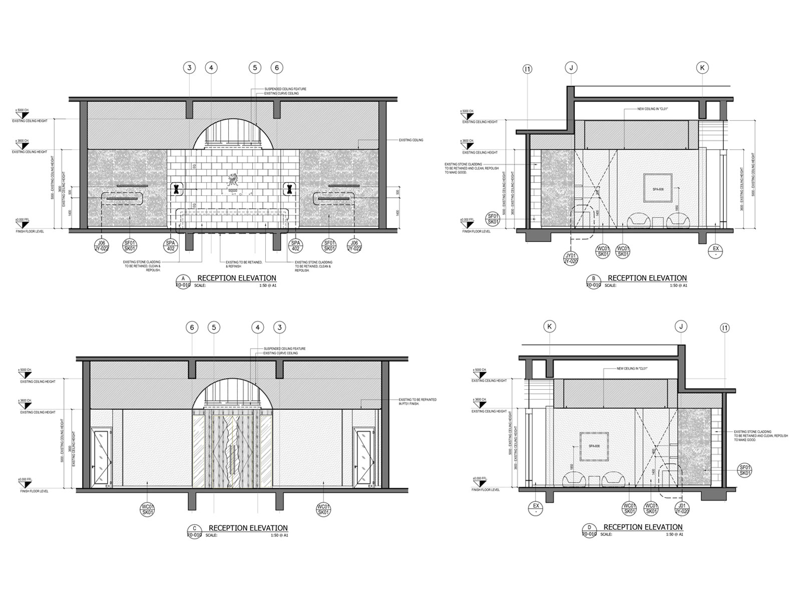
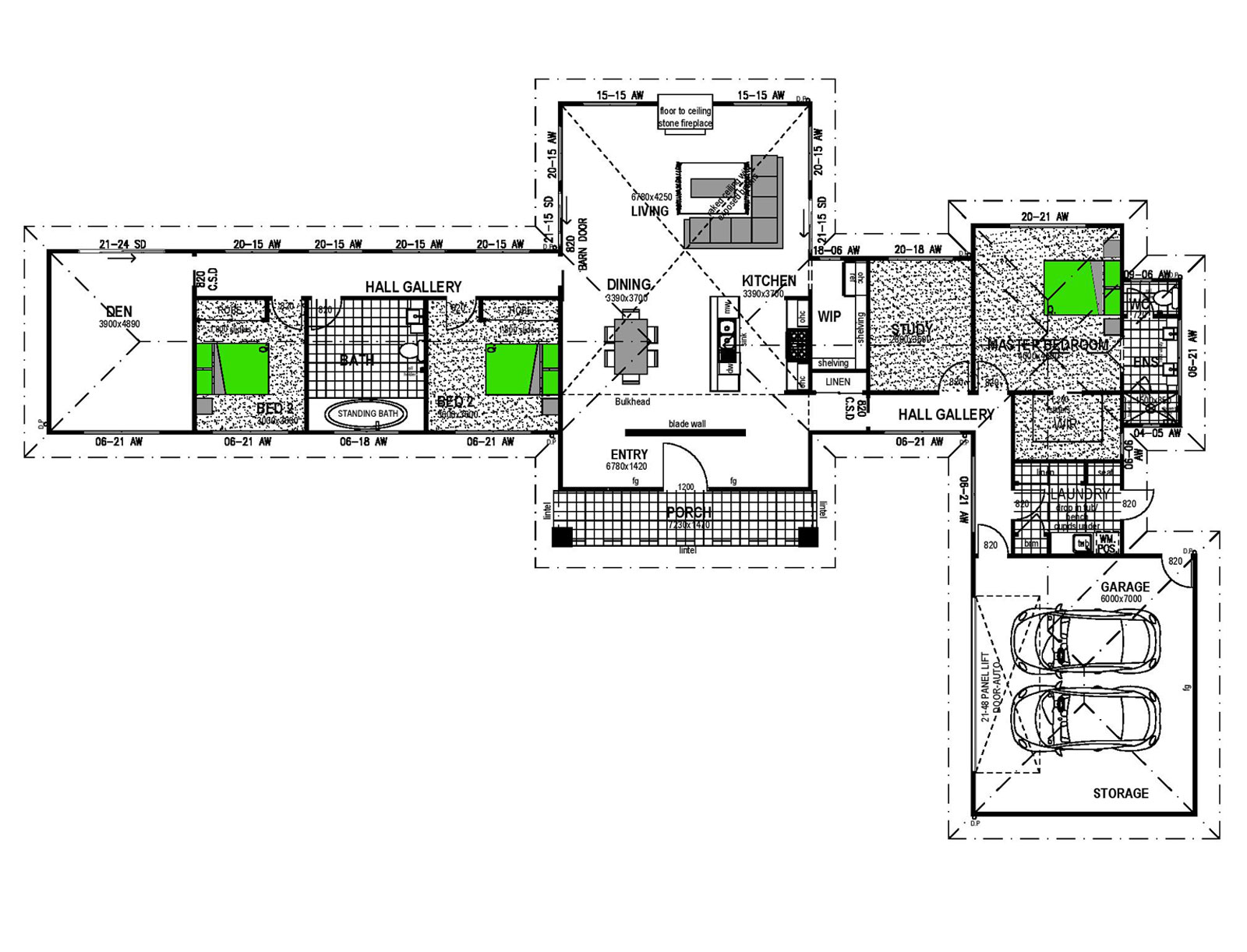
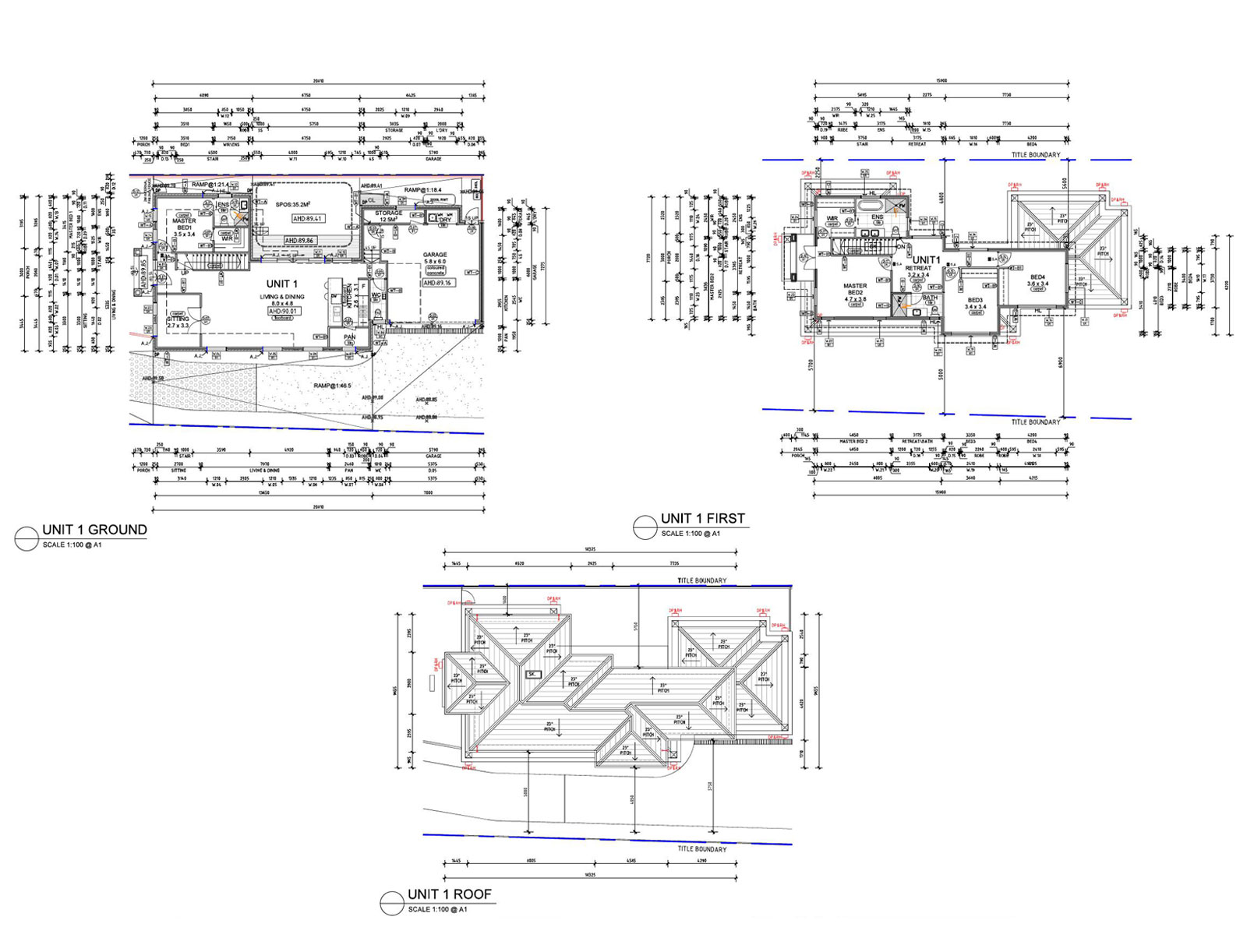
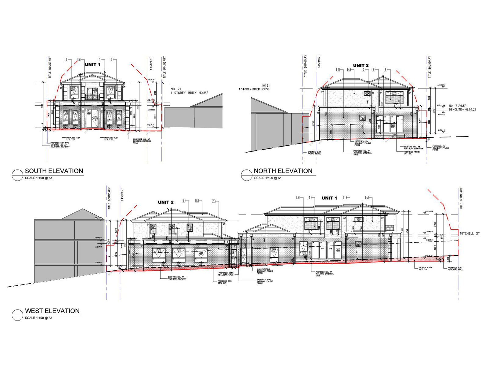
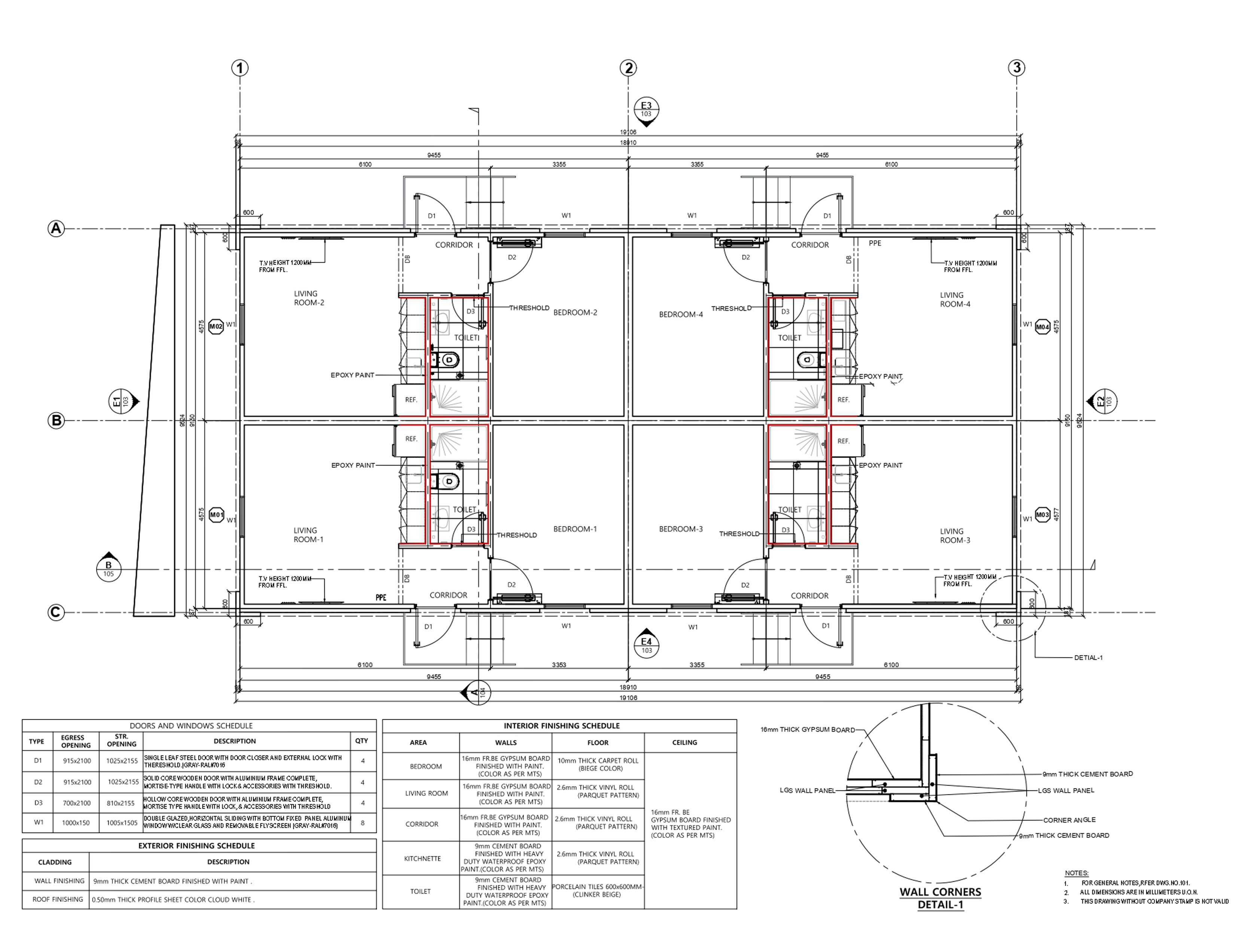
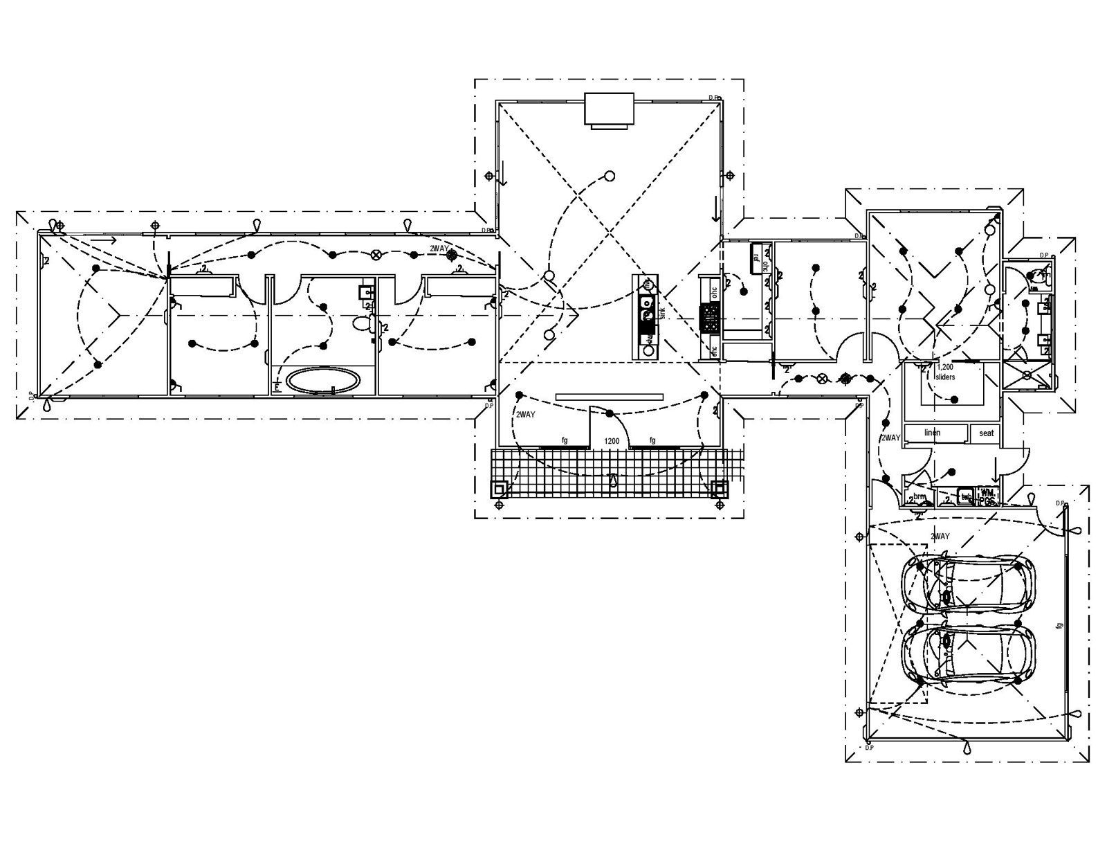
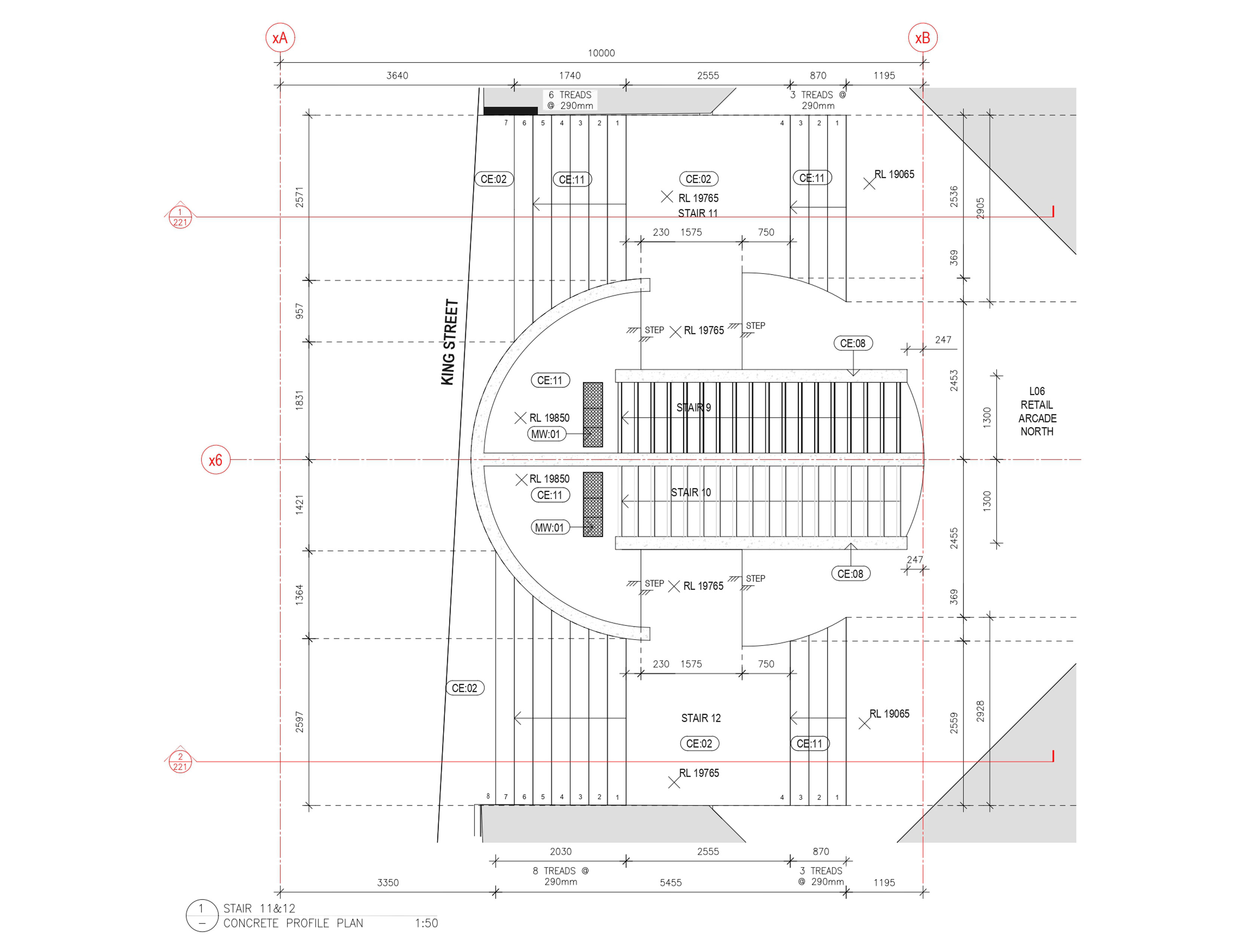
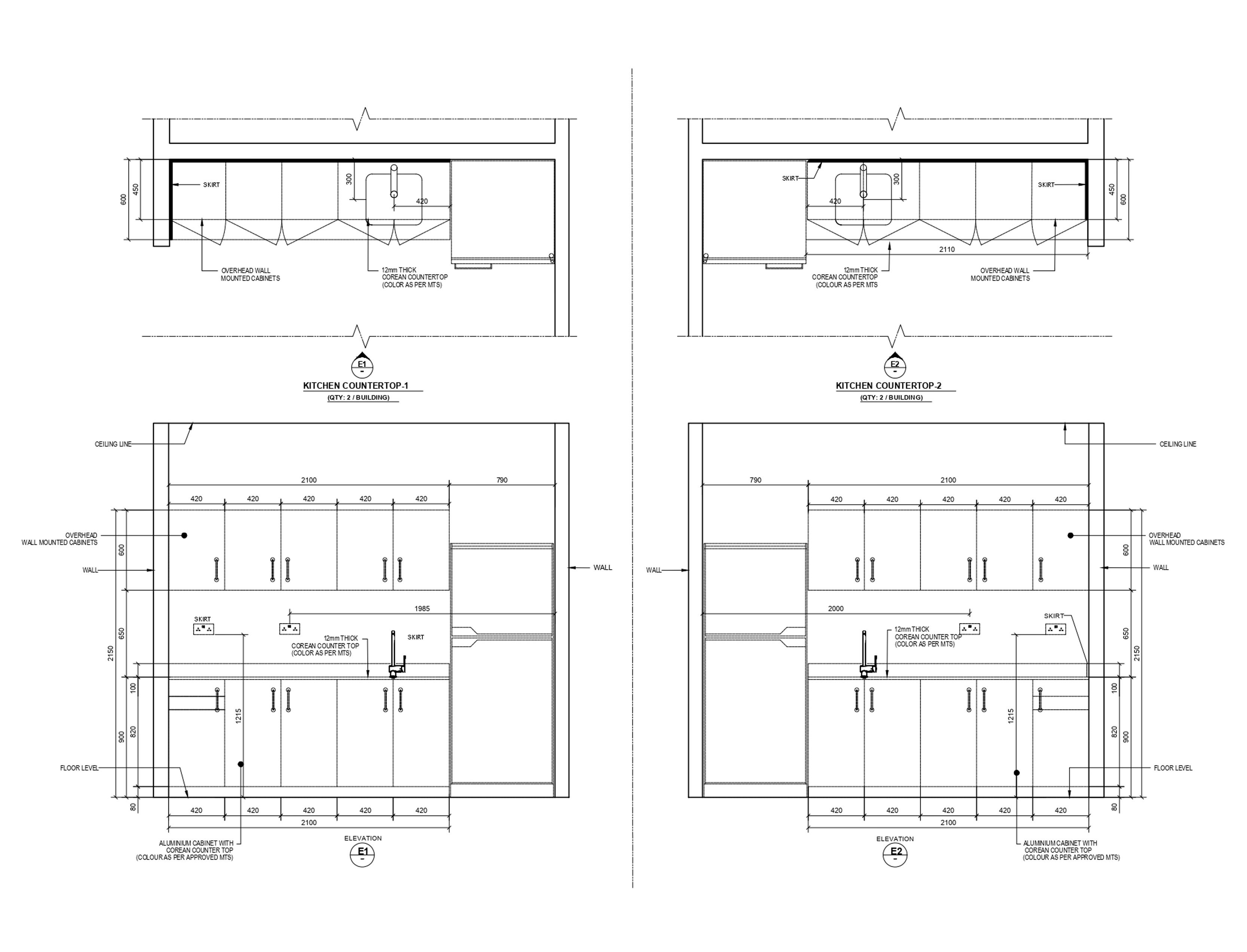
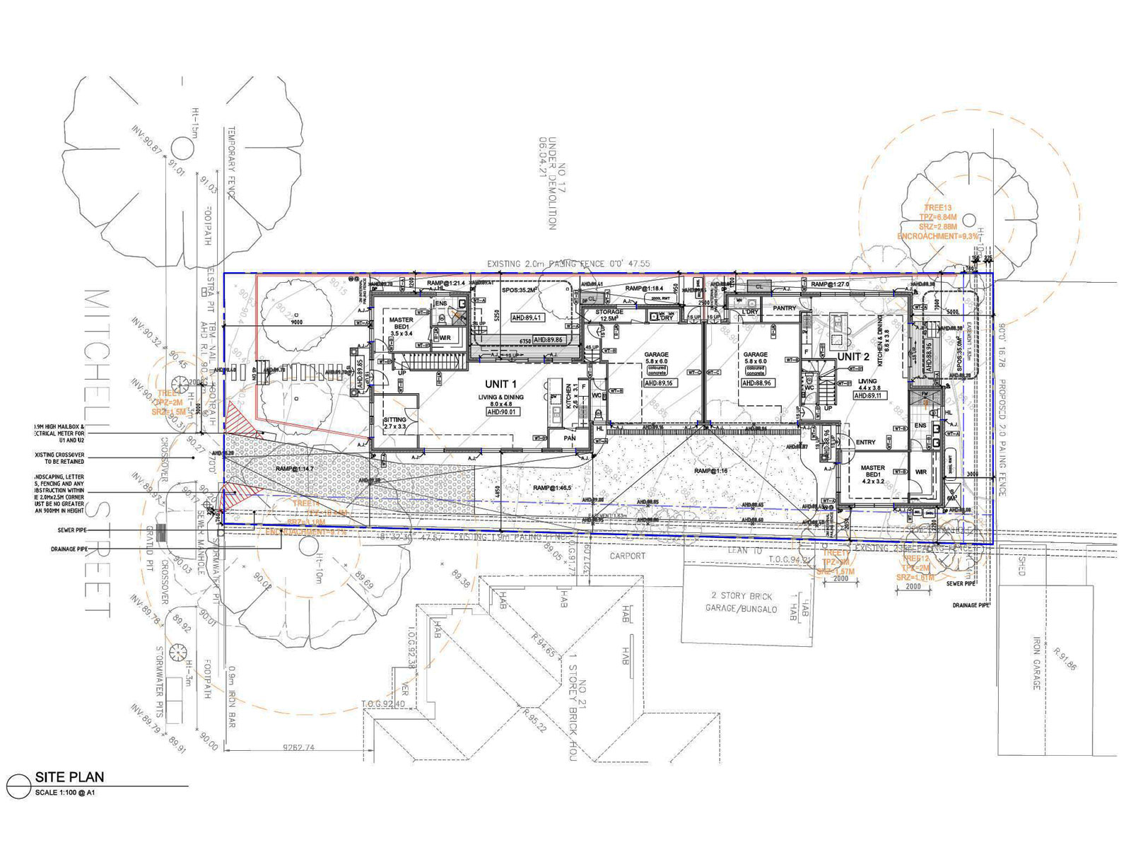
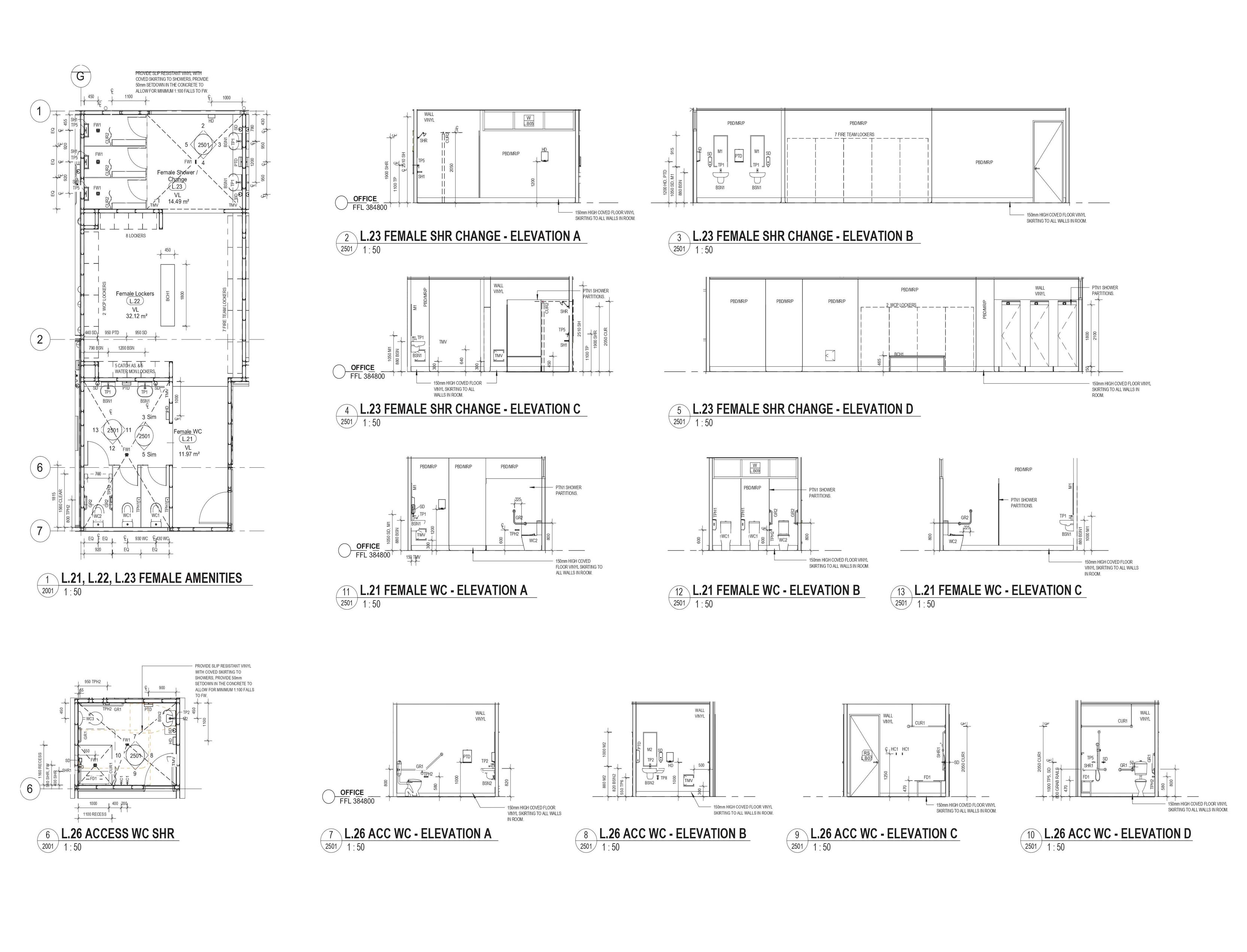
Architectural

2D Drafting Sample