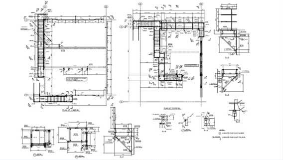
Rebar Shop Drawing Services
Rebar Shop Drawing provides sizing information, spacing between rebar, length and location of overlapping bars, and details about any bends or hooks in the structure. To increase design efficiency, our professional at SiliconEC also delivers a virtual 3D model of the structure to create handy 2D drawings, schedules and design reports.
We offer Rebar Estimating and Quantity Take-Off Services, turning drawings into concise quantity reports. Our calculations ensure that the correct amount of rebar has been purchased and fabricated, and is ready for installation—thus saving money and minimizing material issues at the site.
Our Rebar CAD Drawing Services cover the following details:
- Underground tunnel
- Concrete Rebar Detailing
- Pile, beams, column
- Tower foundation, studs rails and shear walls
- Slab with column rebar mode
- CMU walls, concrete curb, tilt-up panels
- Equipment pad layout
- Precast elements, corbel elements
- Concrete masonry and slab detailing
- Quality take-offs
- Footing detailing
- Rebar Foundation detailing services




