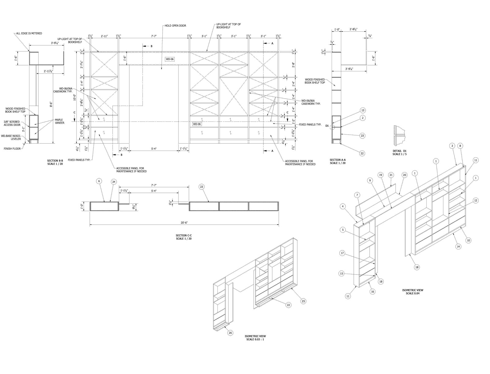
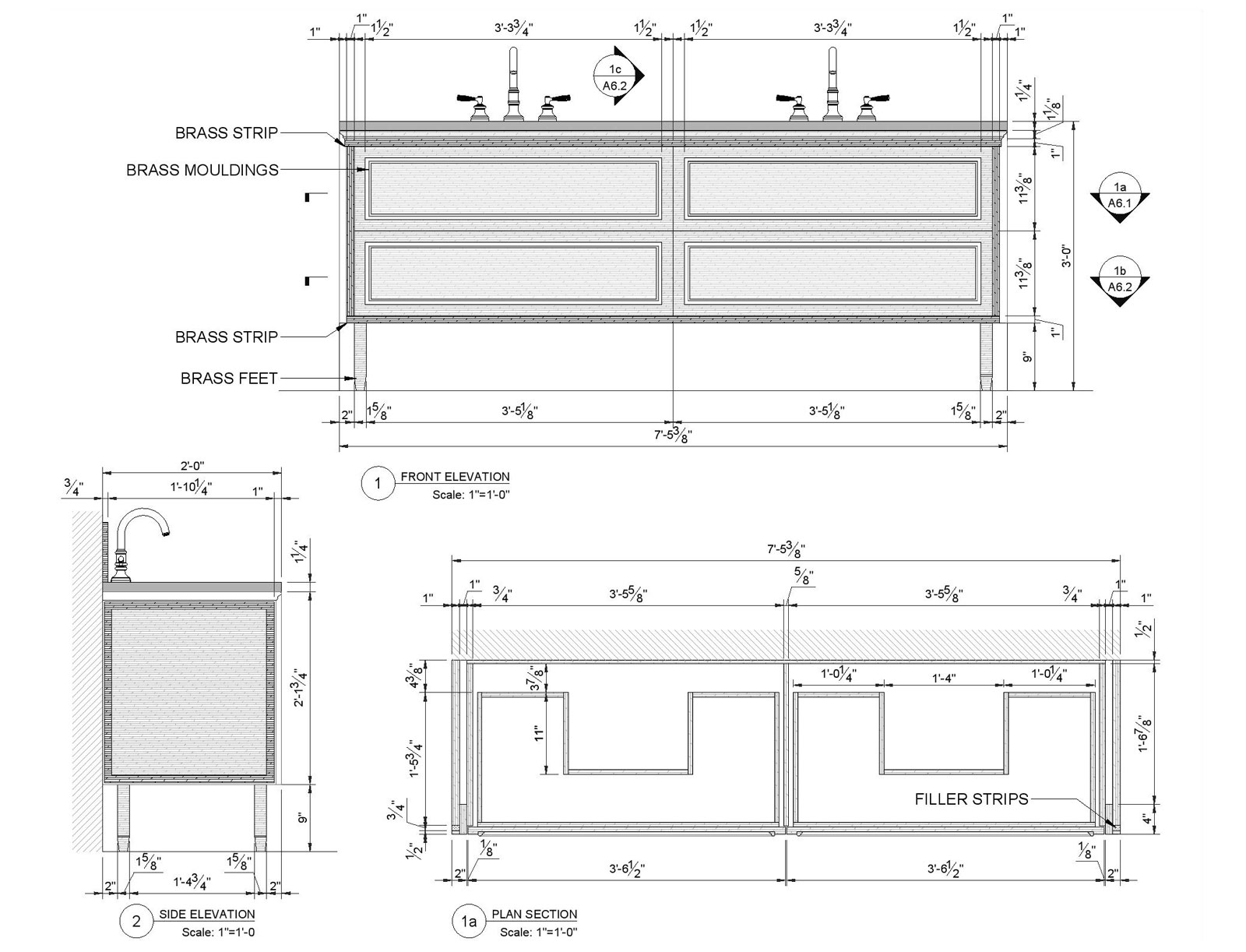
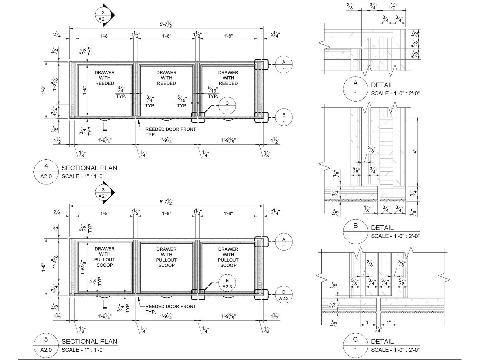
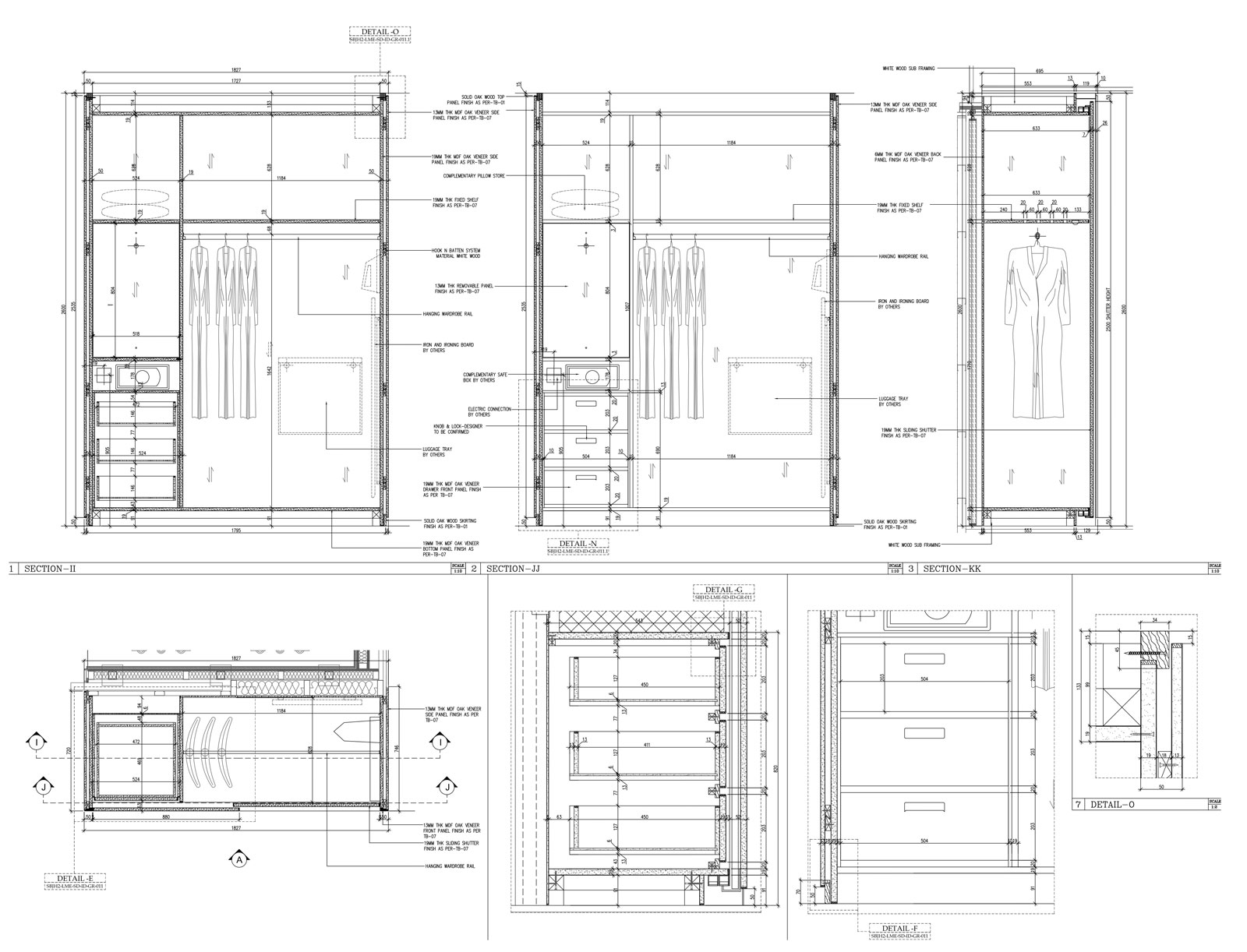
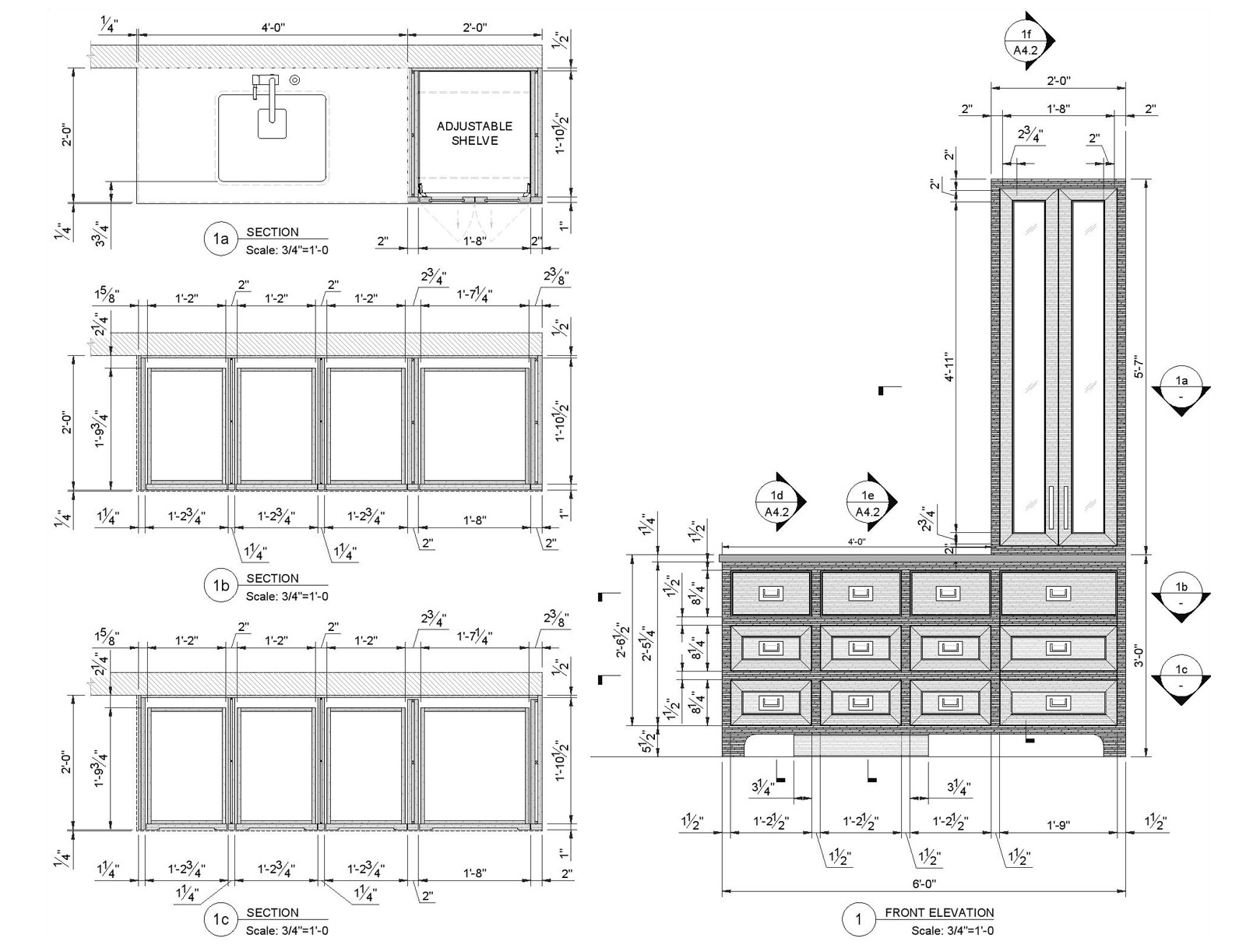
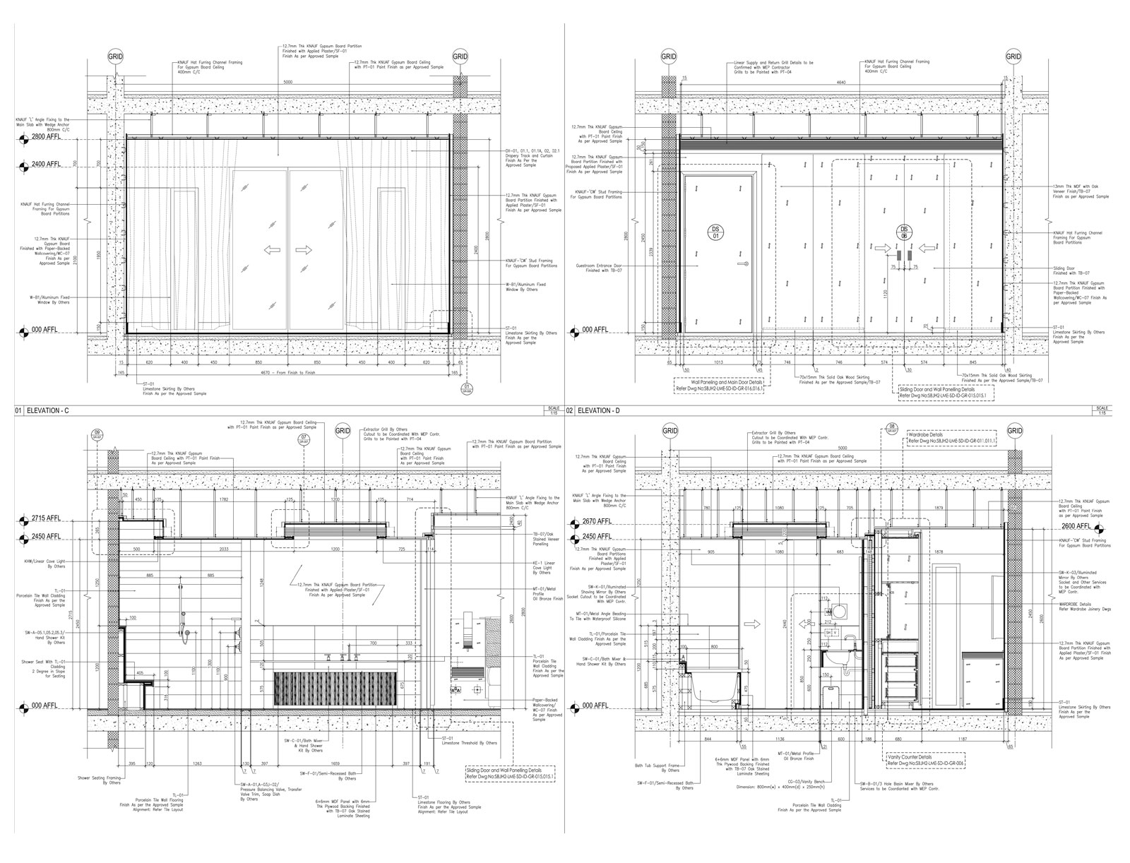
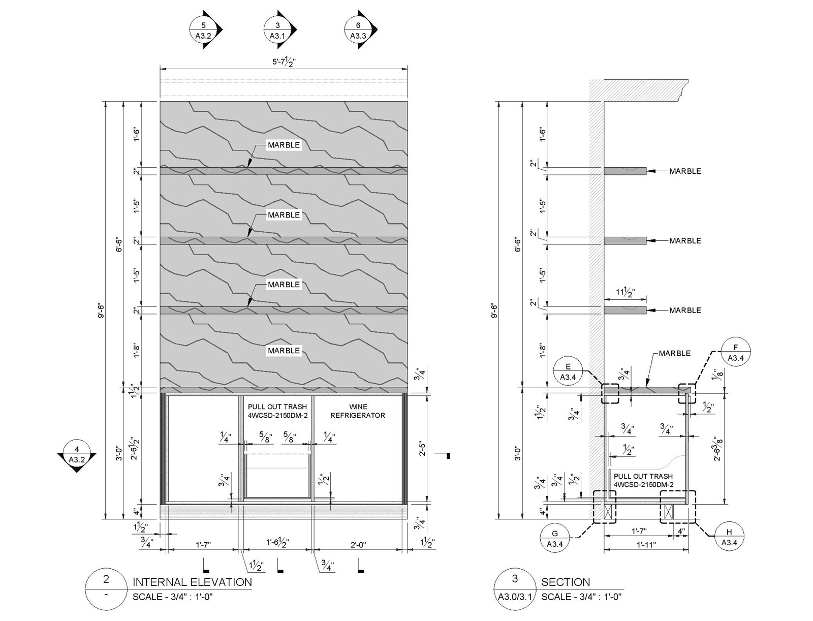
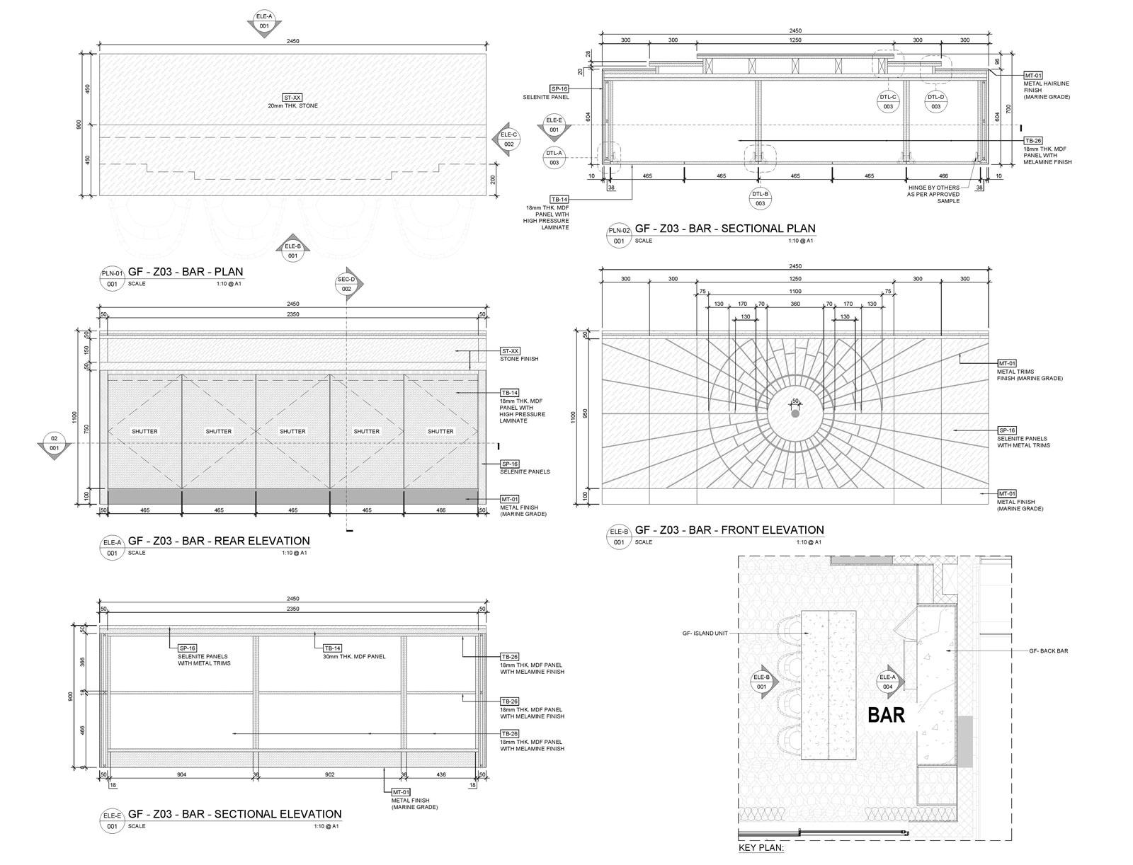
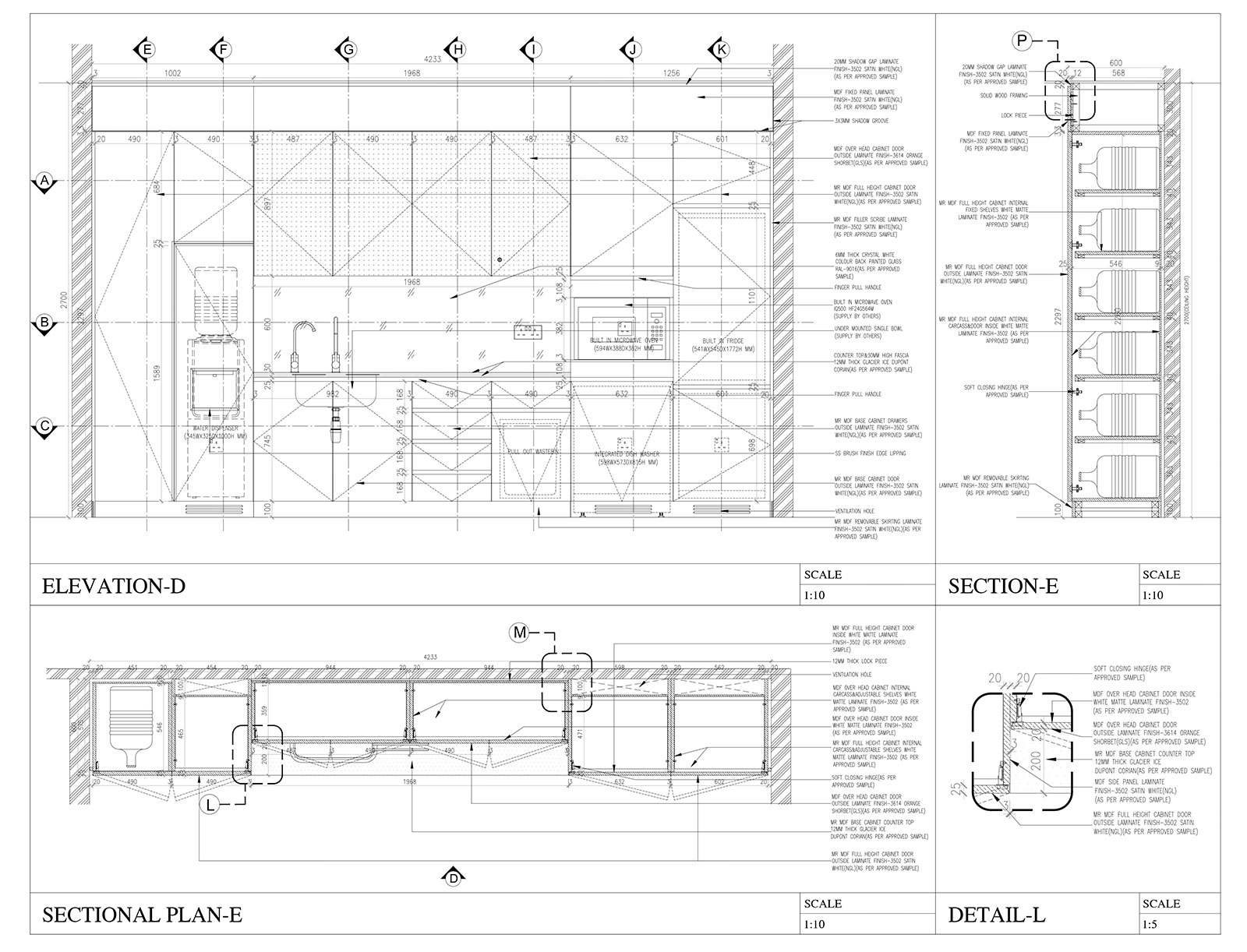
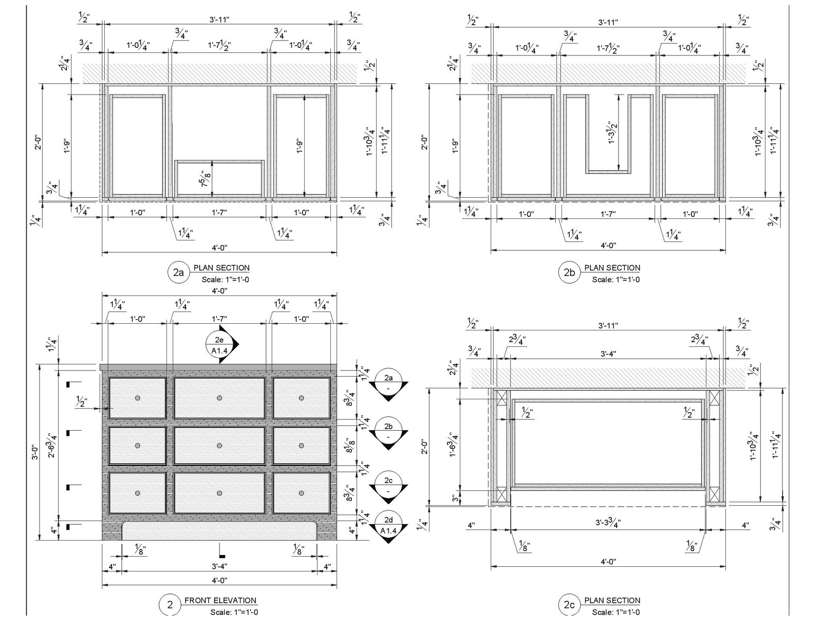
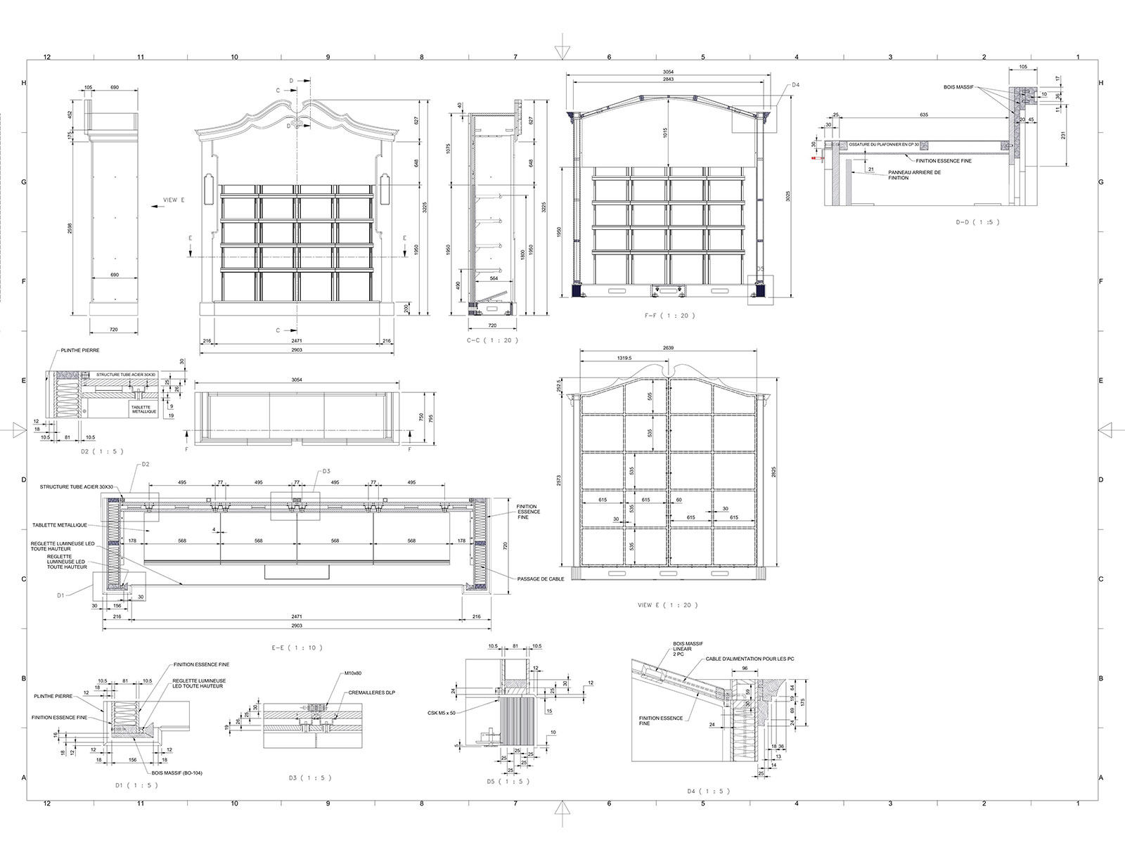
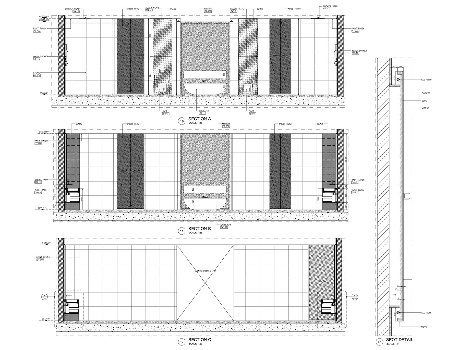
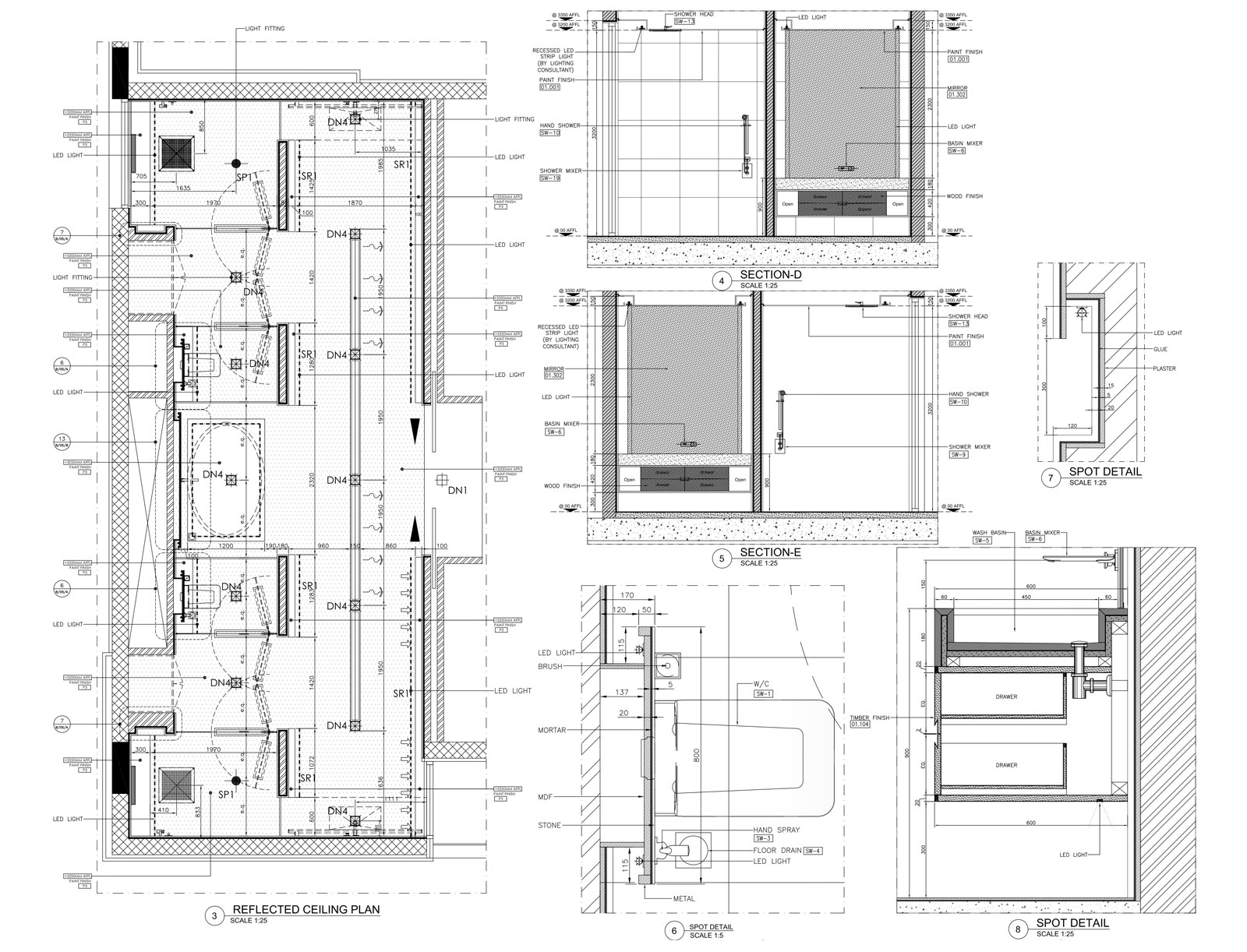
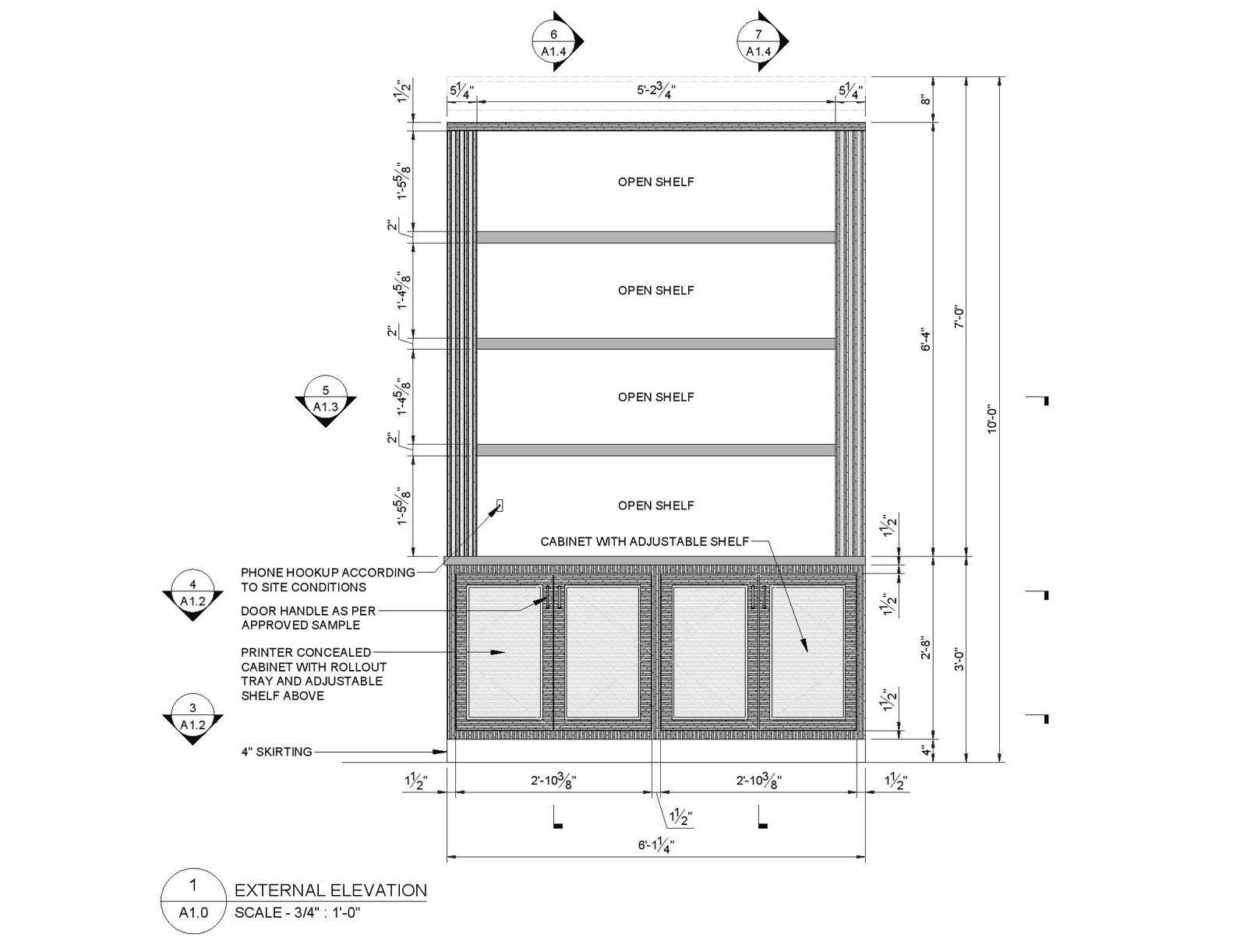
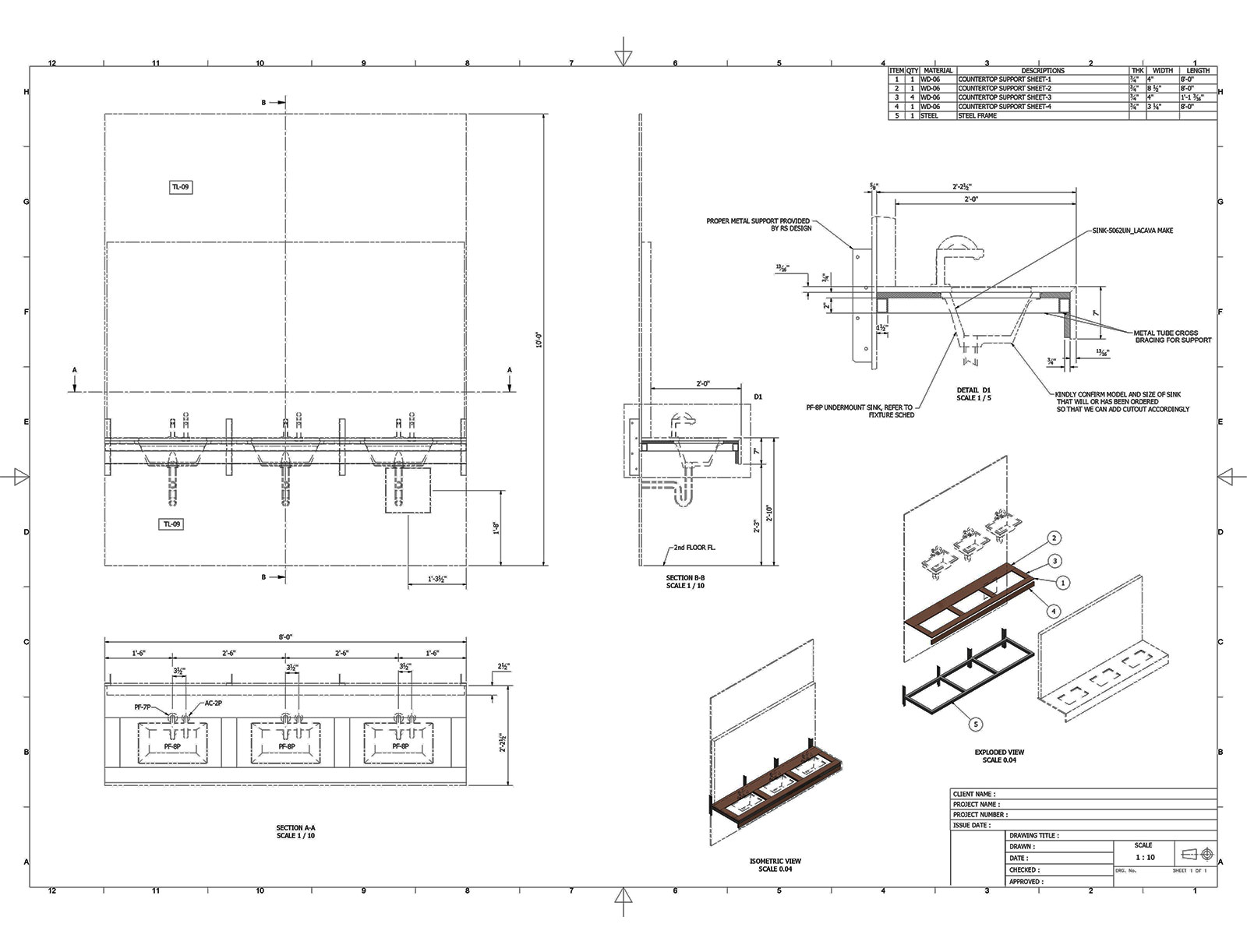
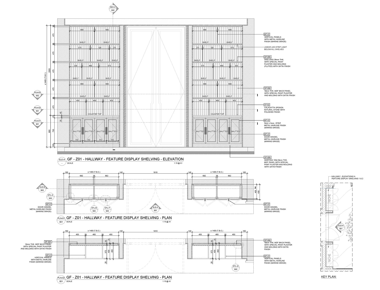
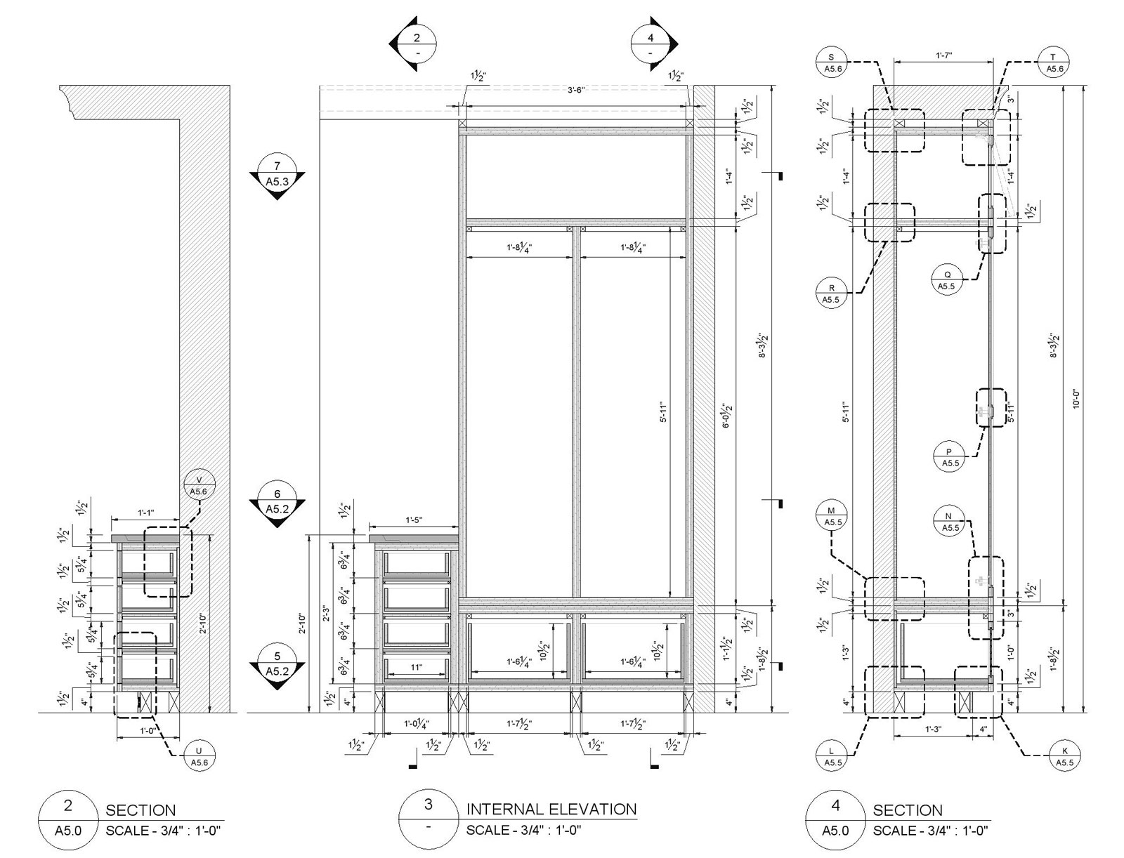
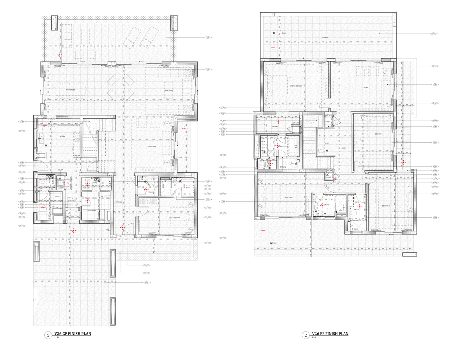
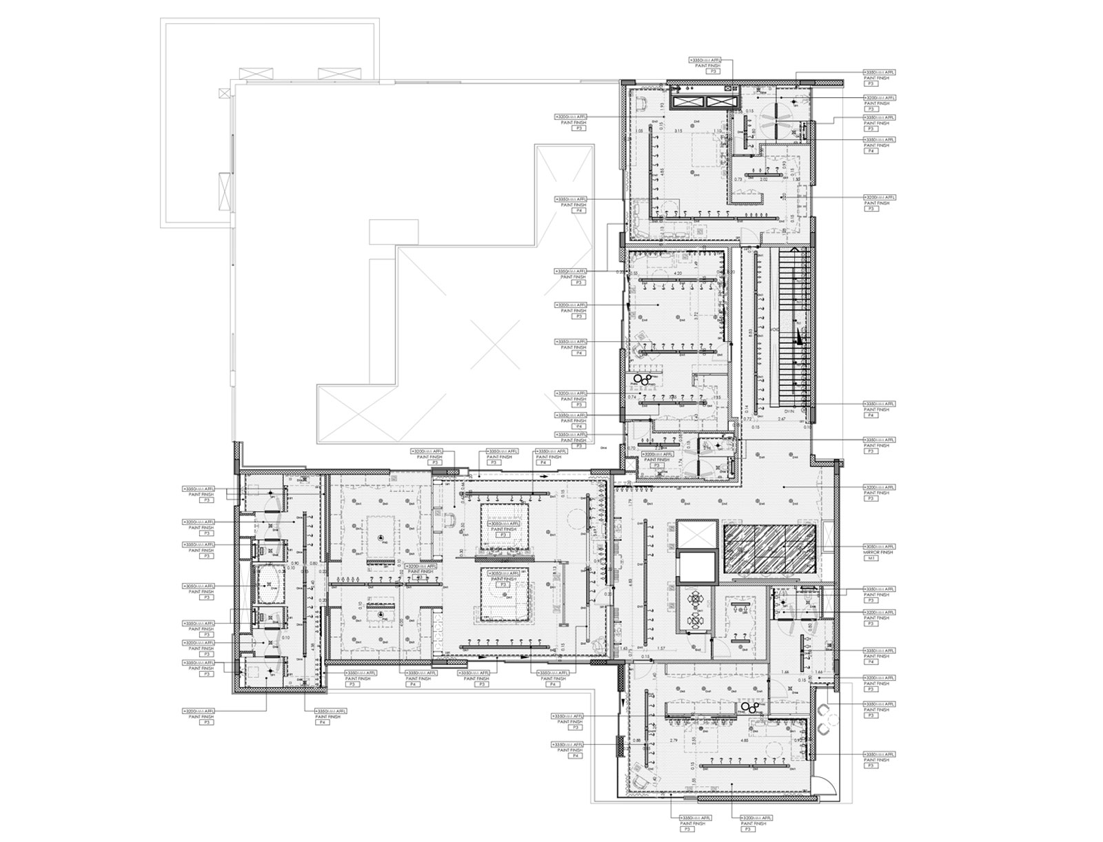
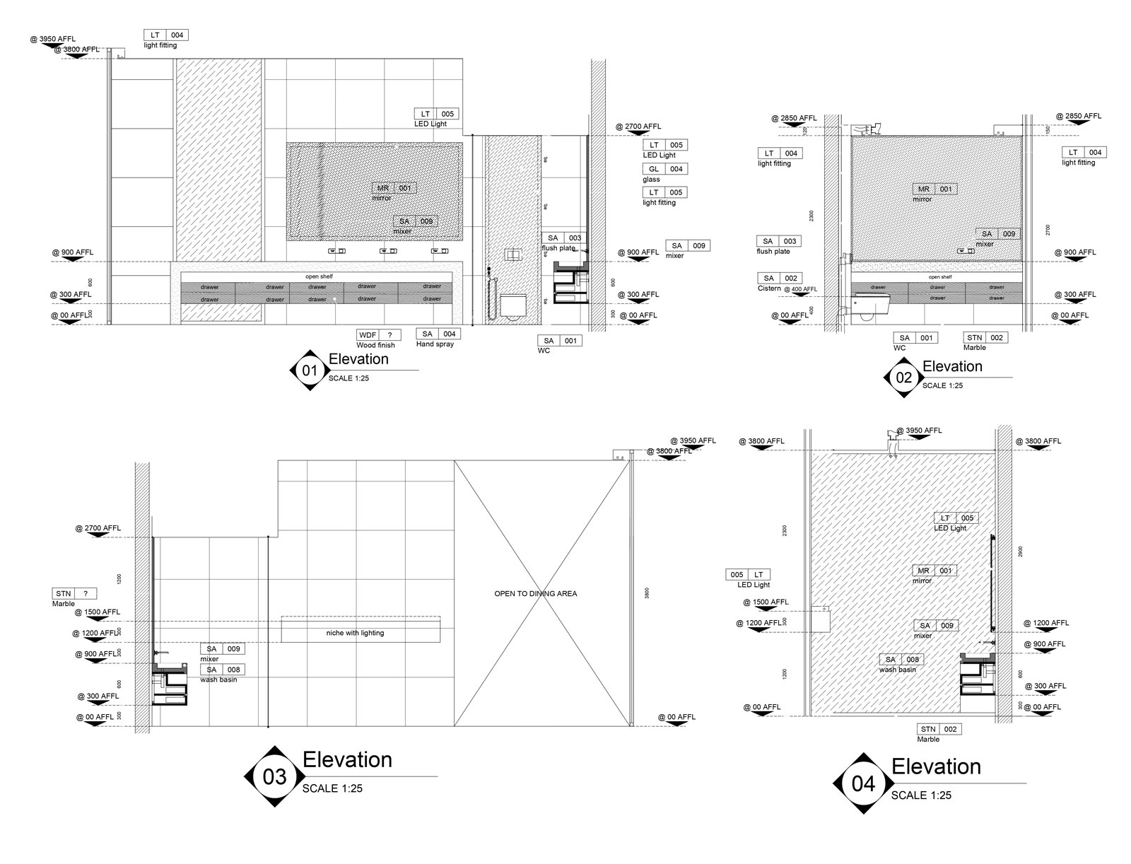
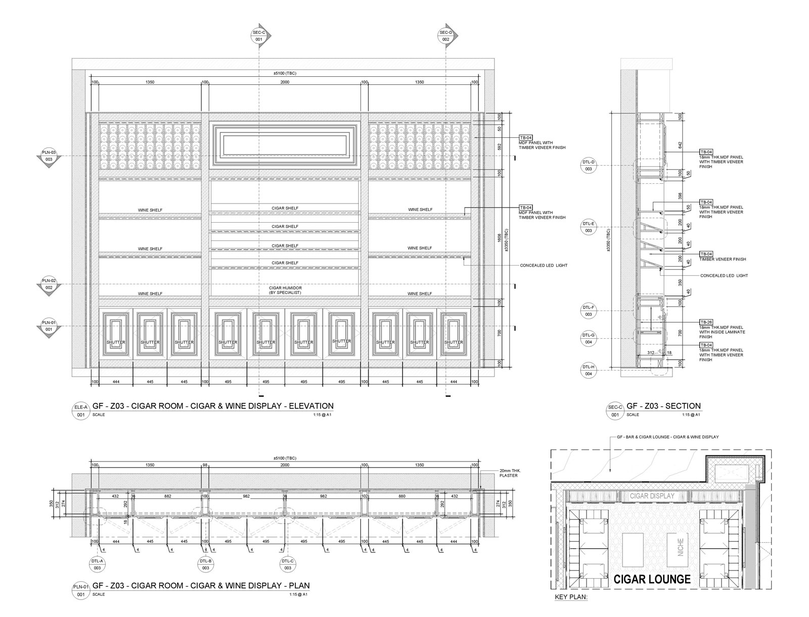
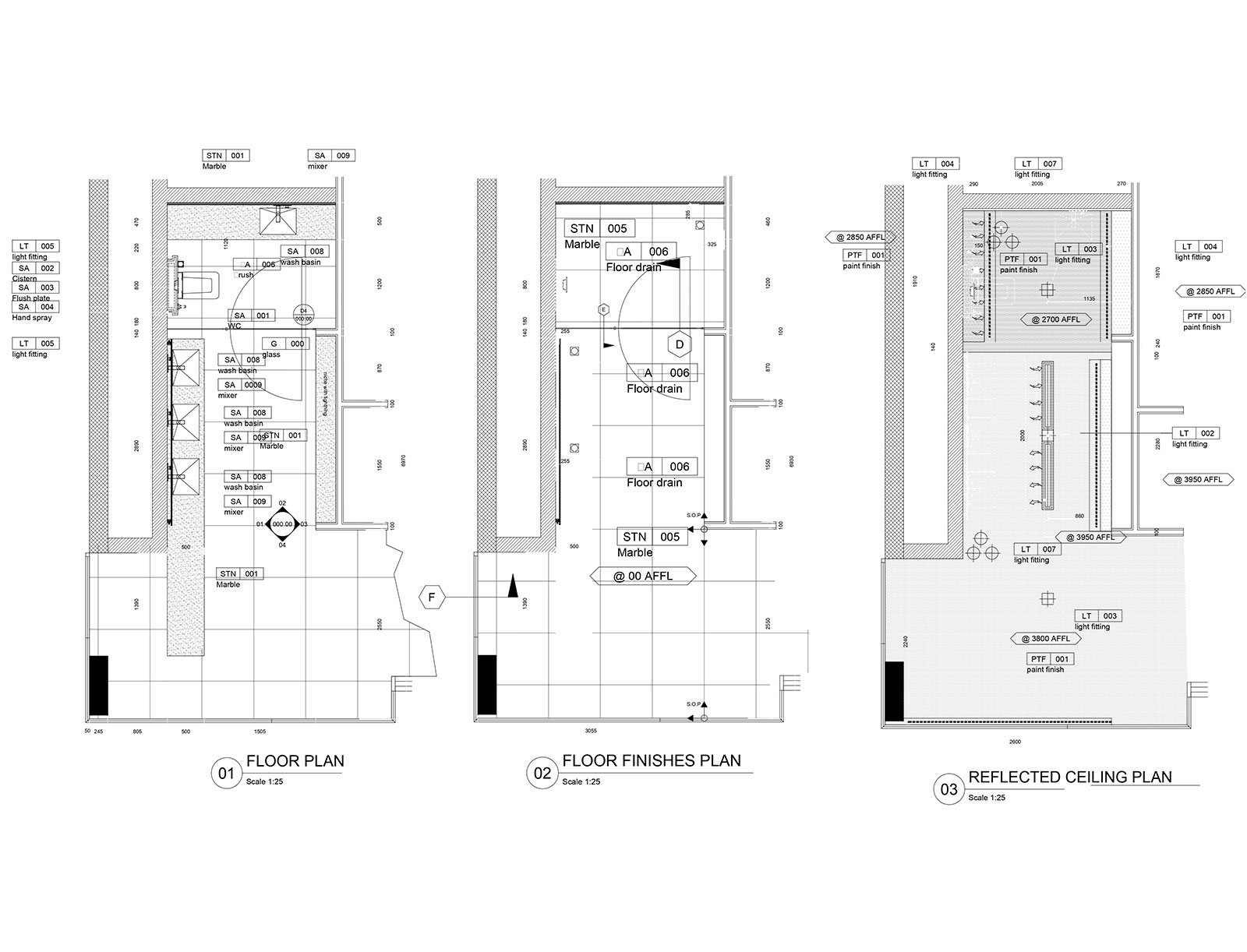
Millwork Joinery Furniture Samples, 2D Millwork Joinery Furniture Samples, 3D Millwork Joinery Furniture Samples