Get A Quote
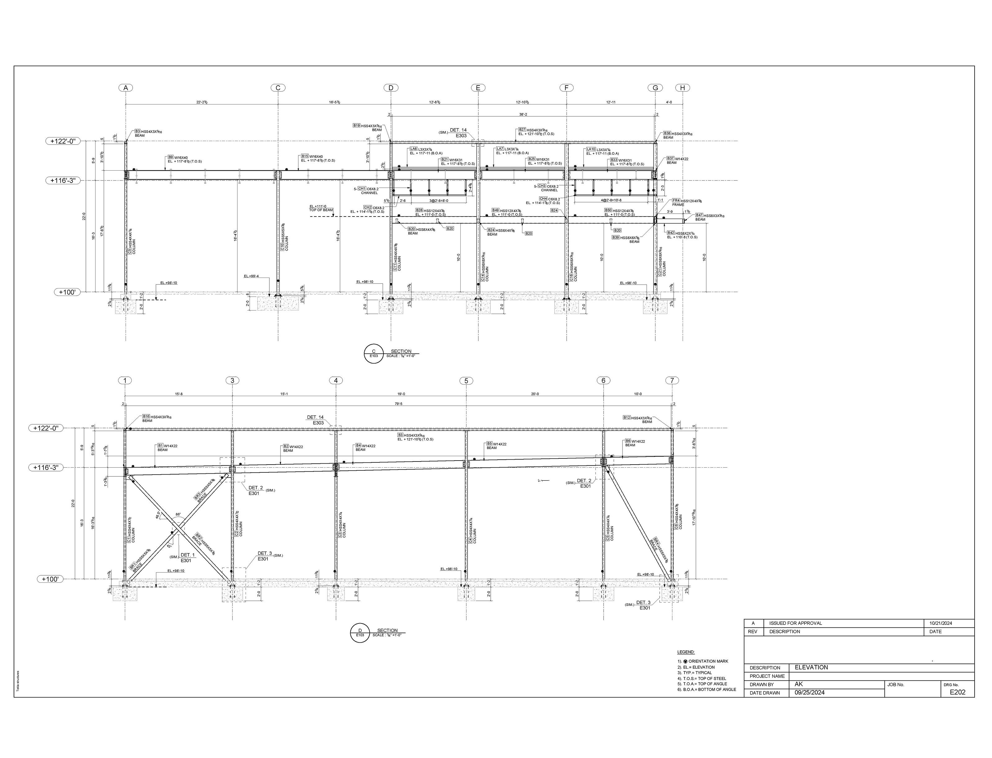
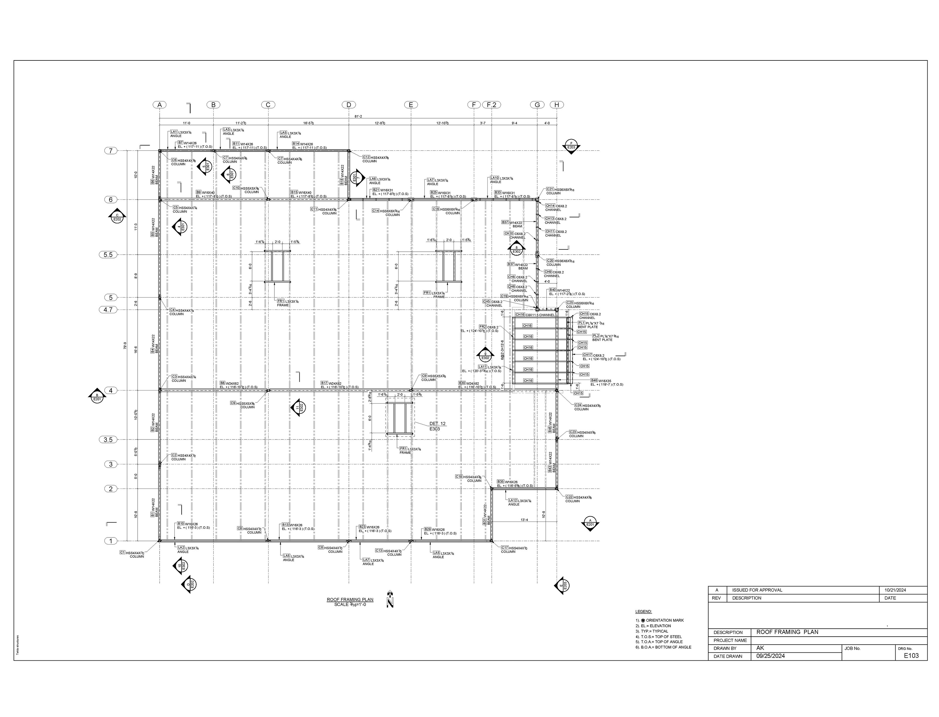
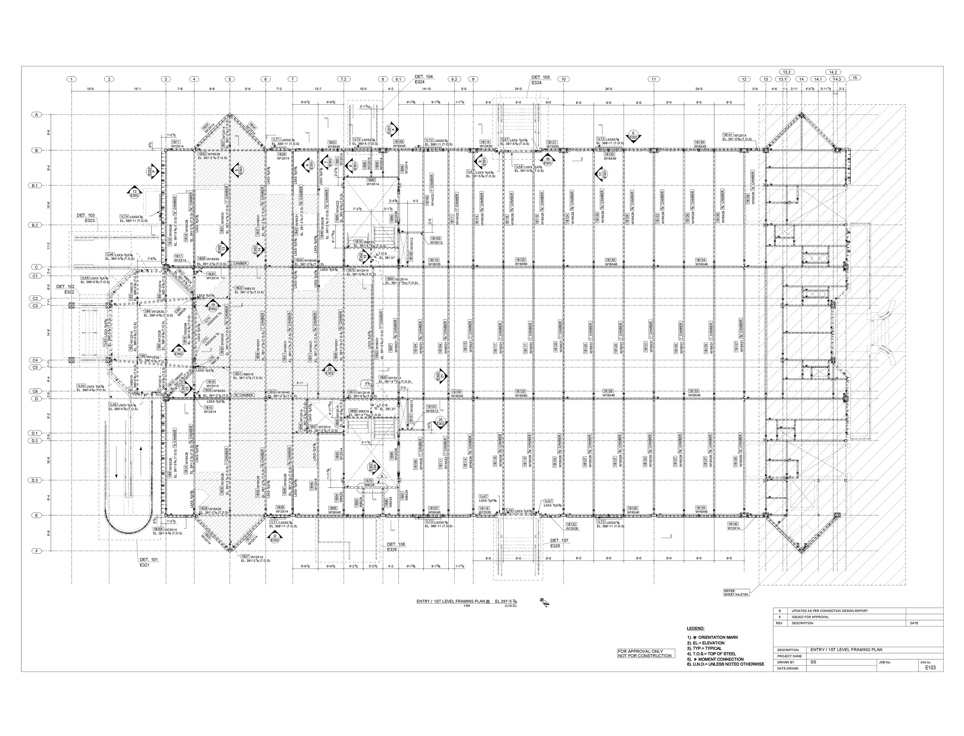
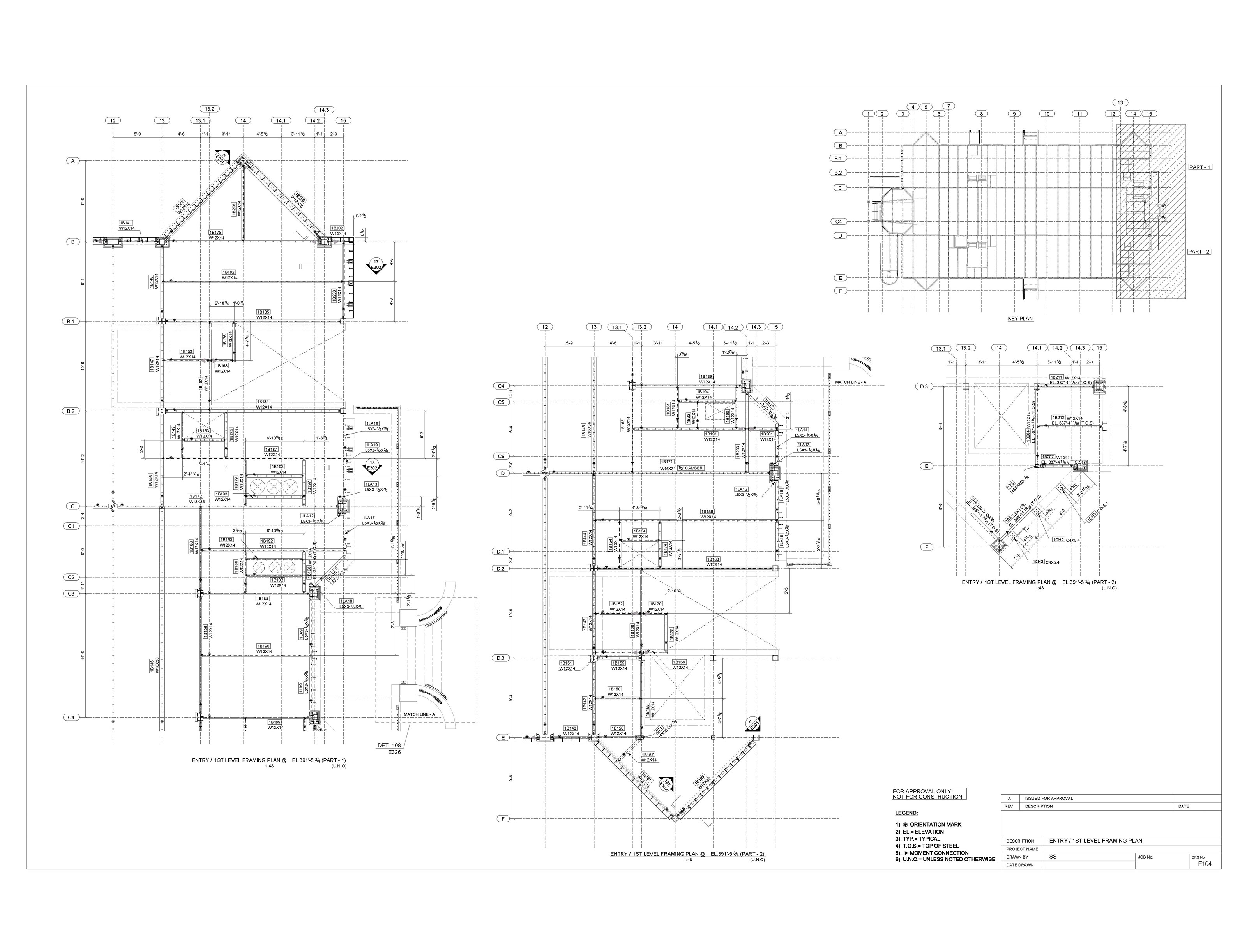
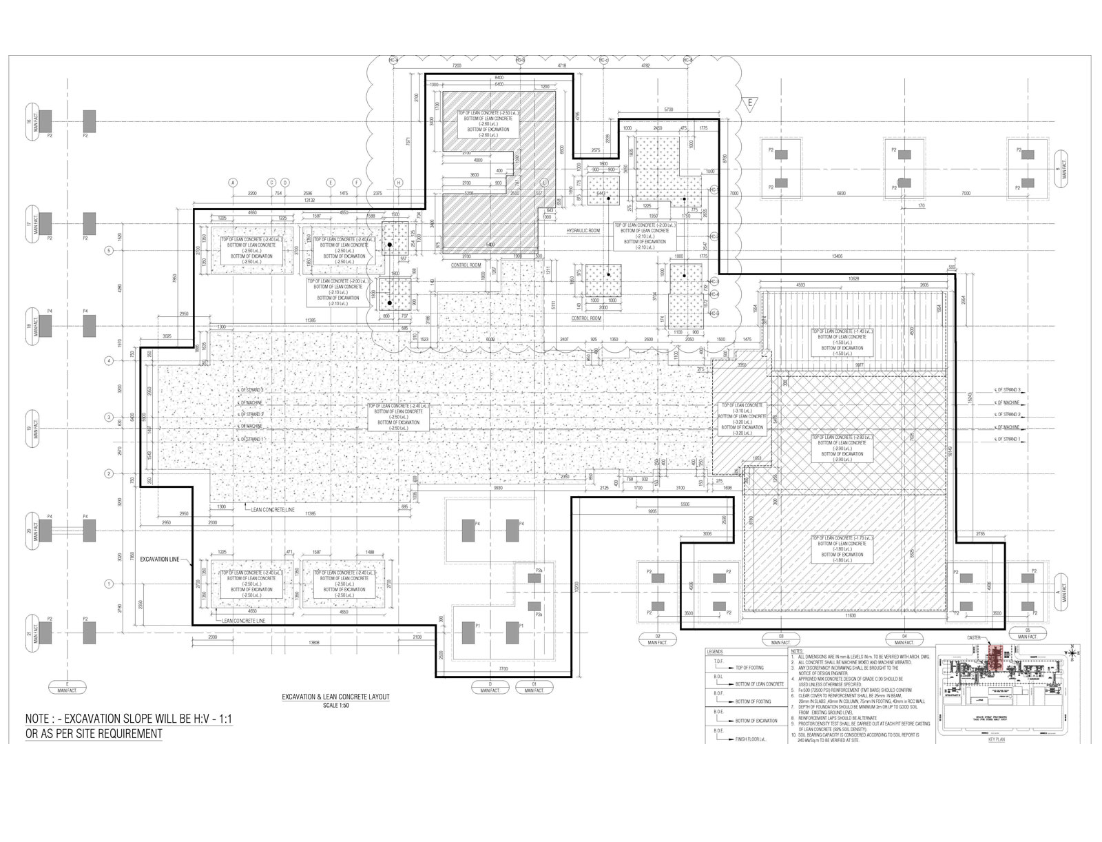
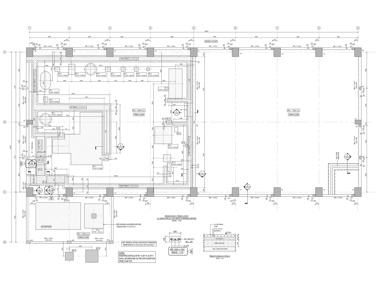
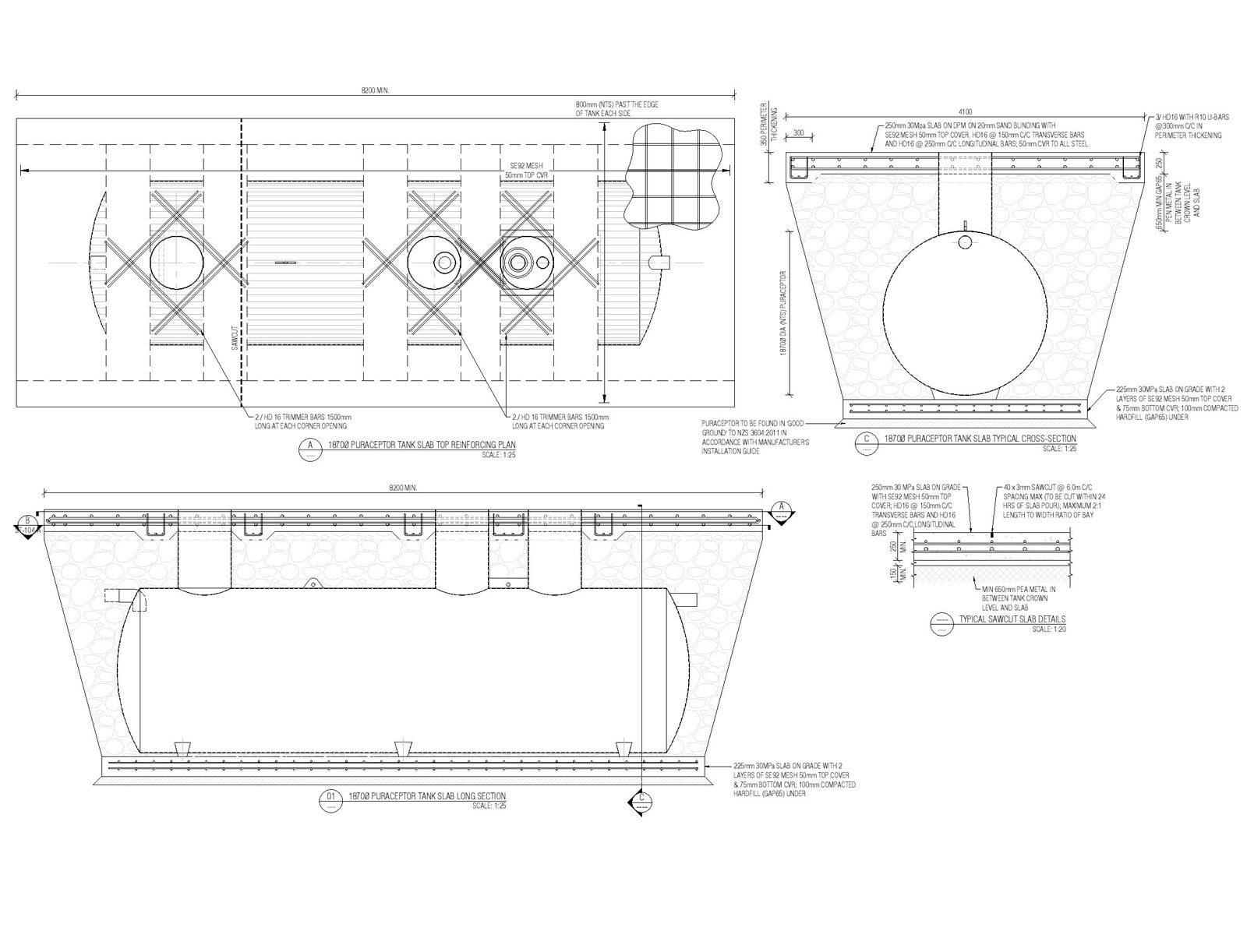
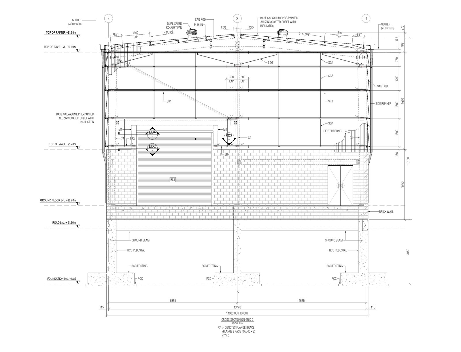
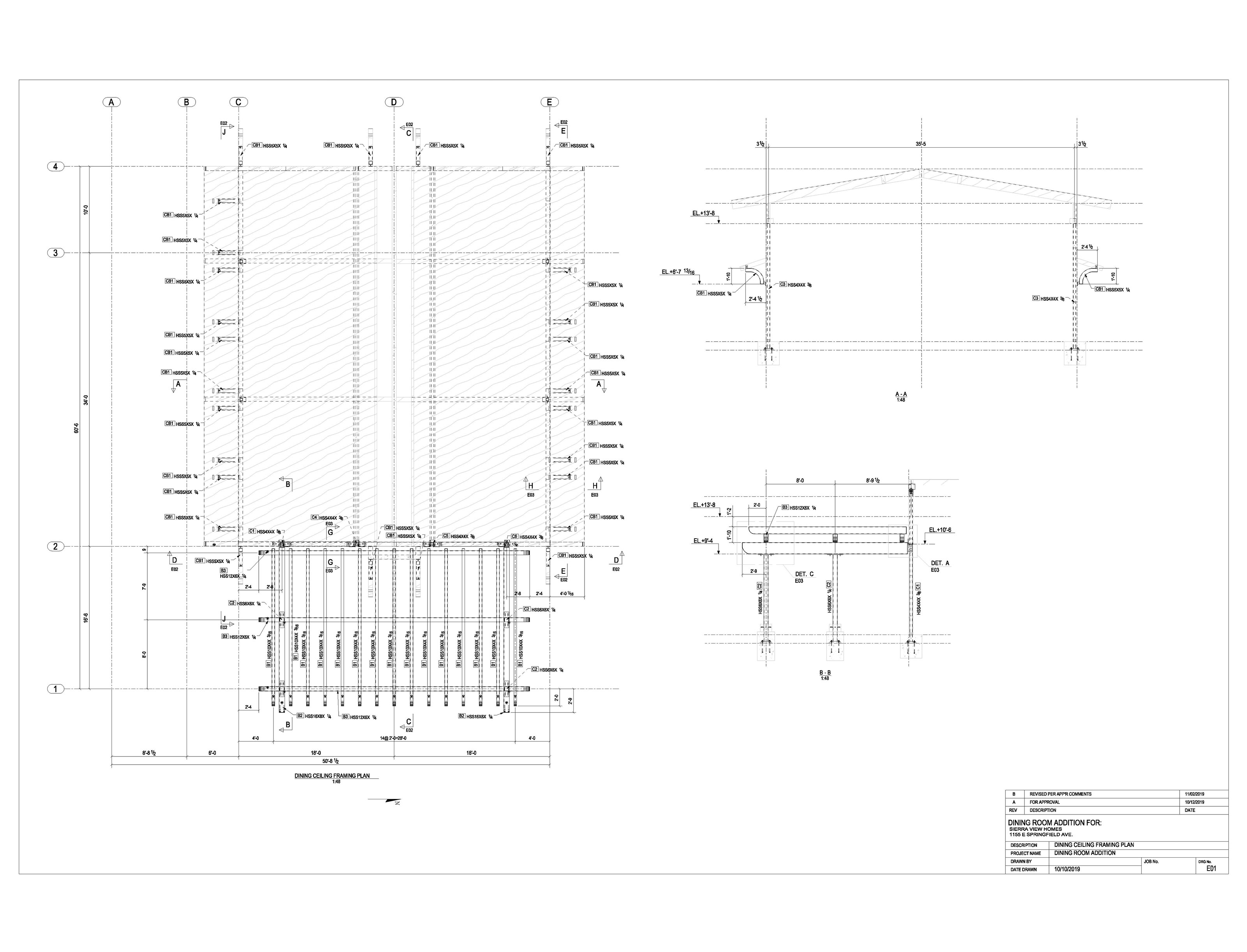
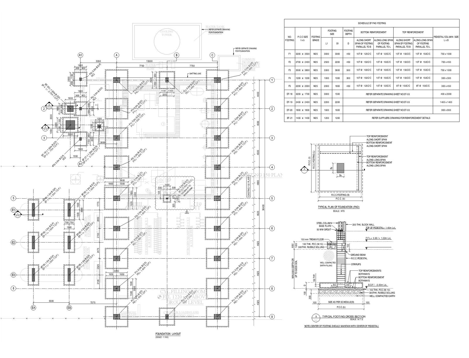
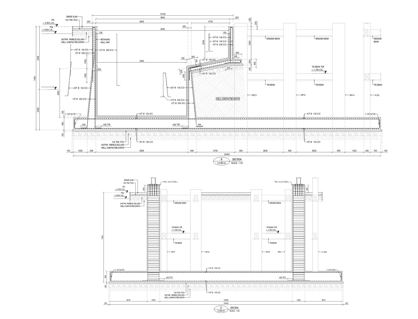
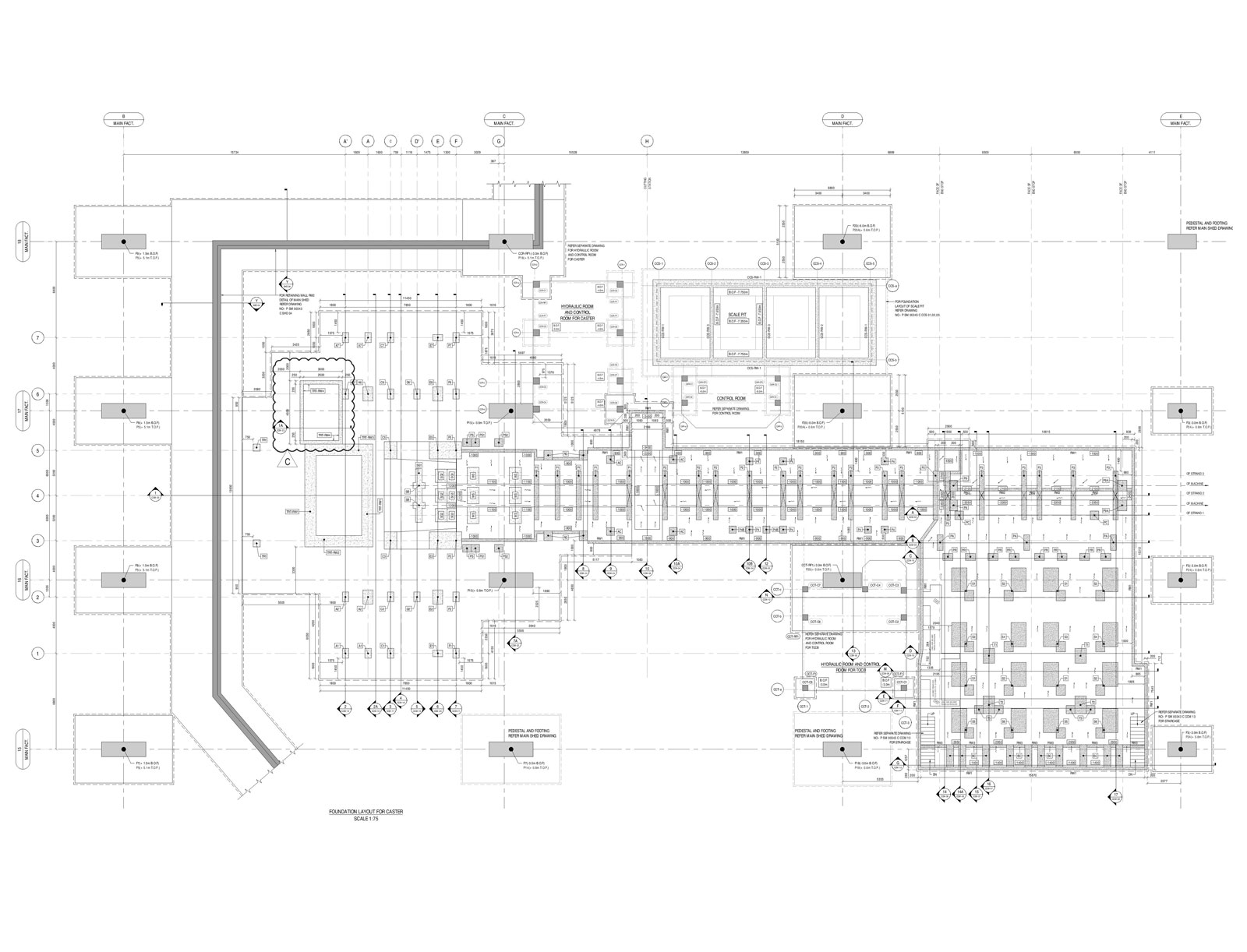
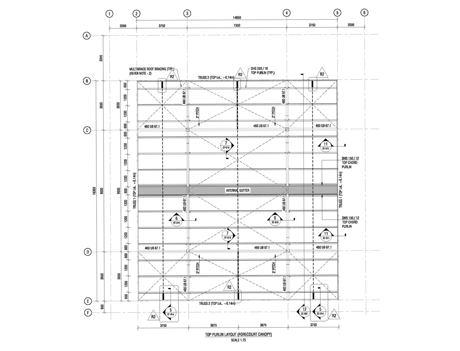
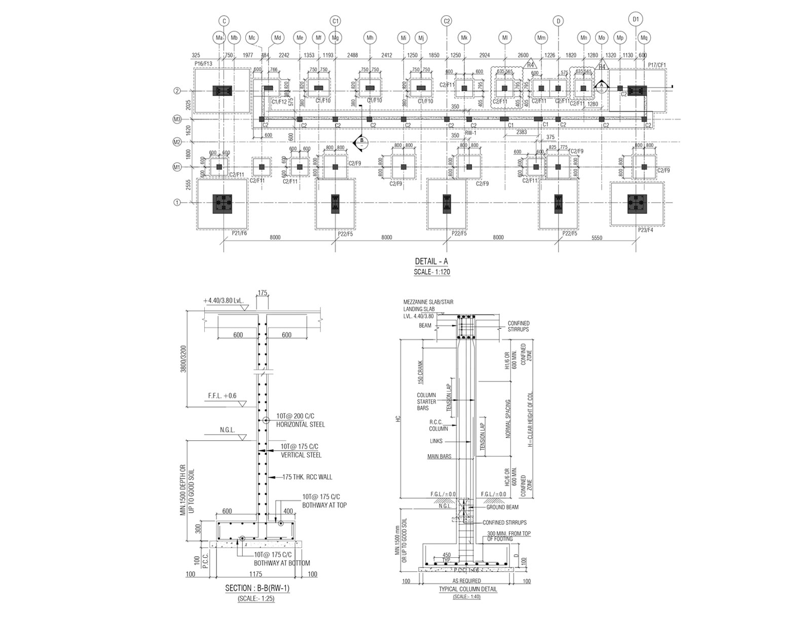
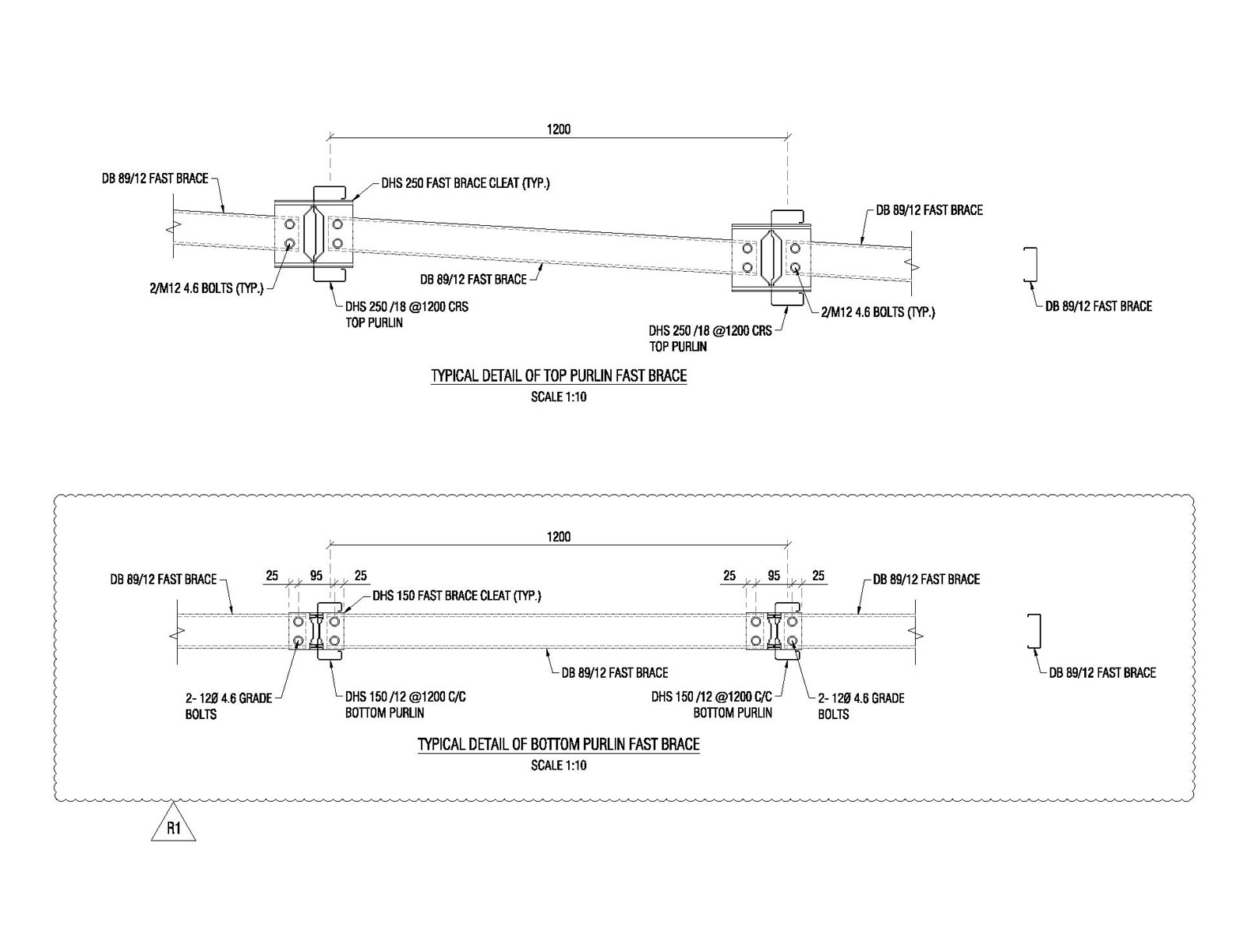
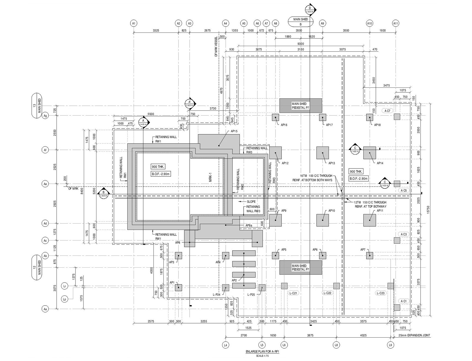
Steel Detailing Sample
Previous
Next
Steel
Detailing Sample
3D & Site View Samples
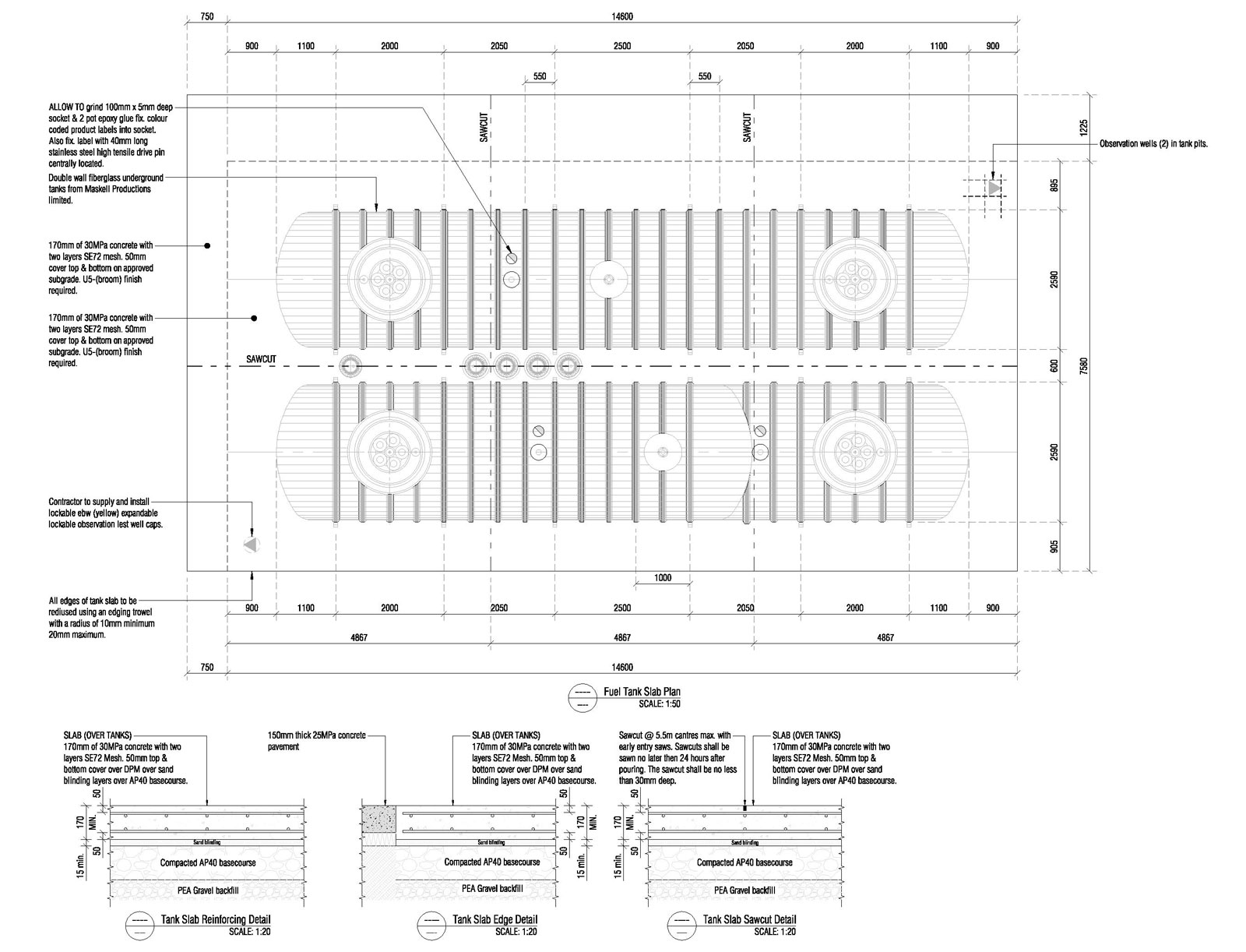
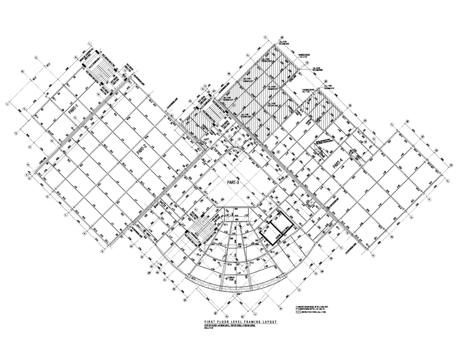
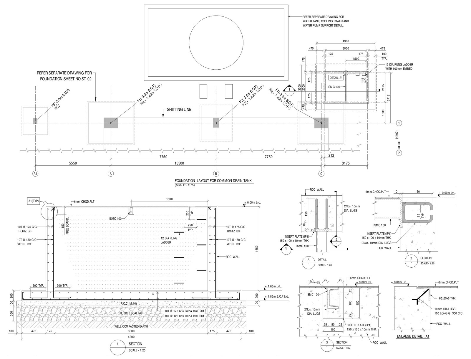
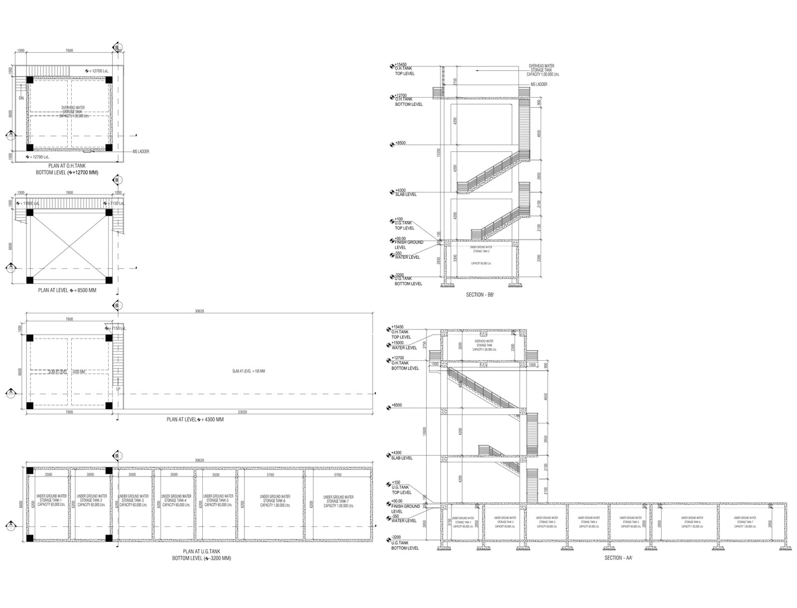
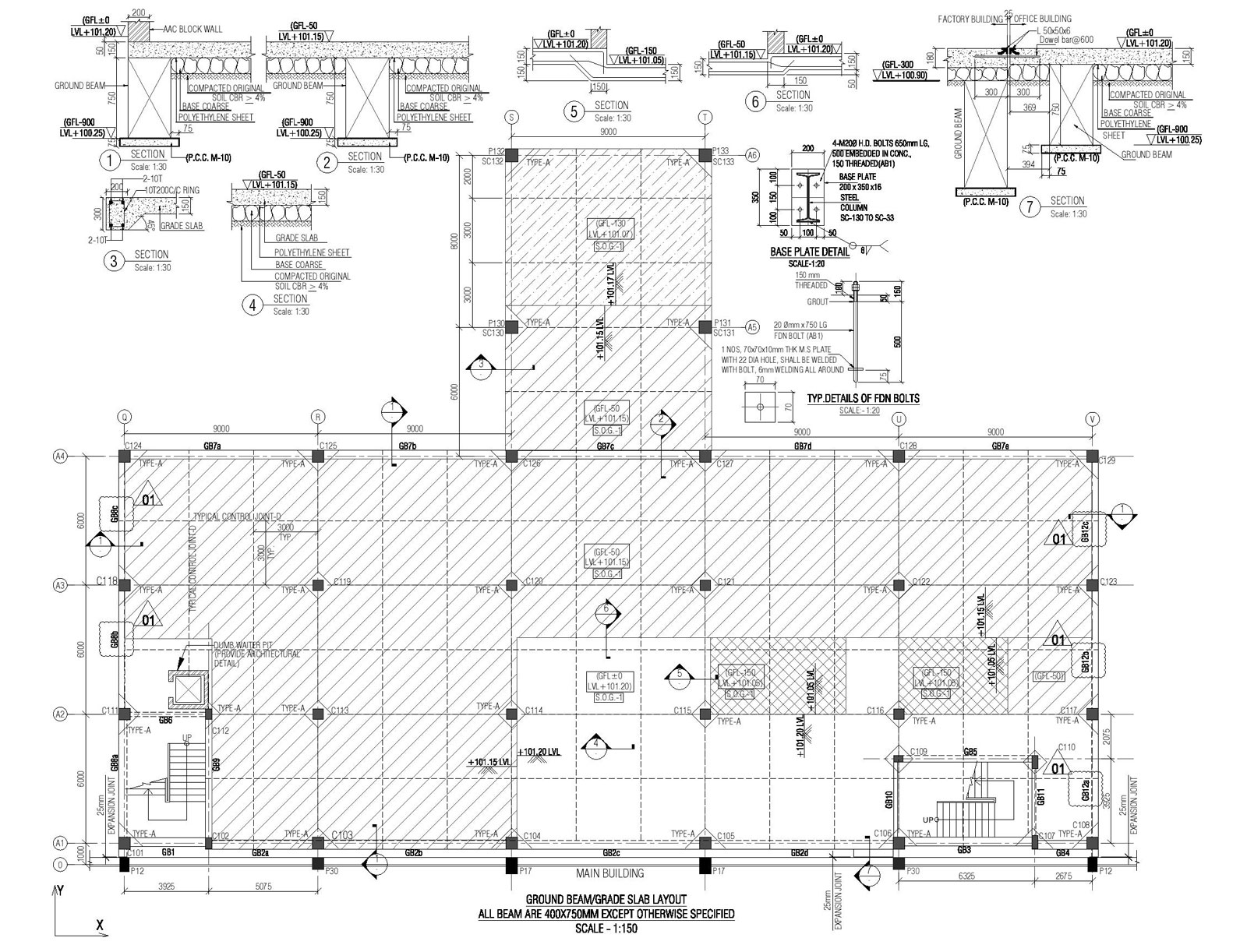
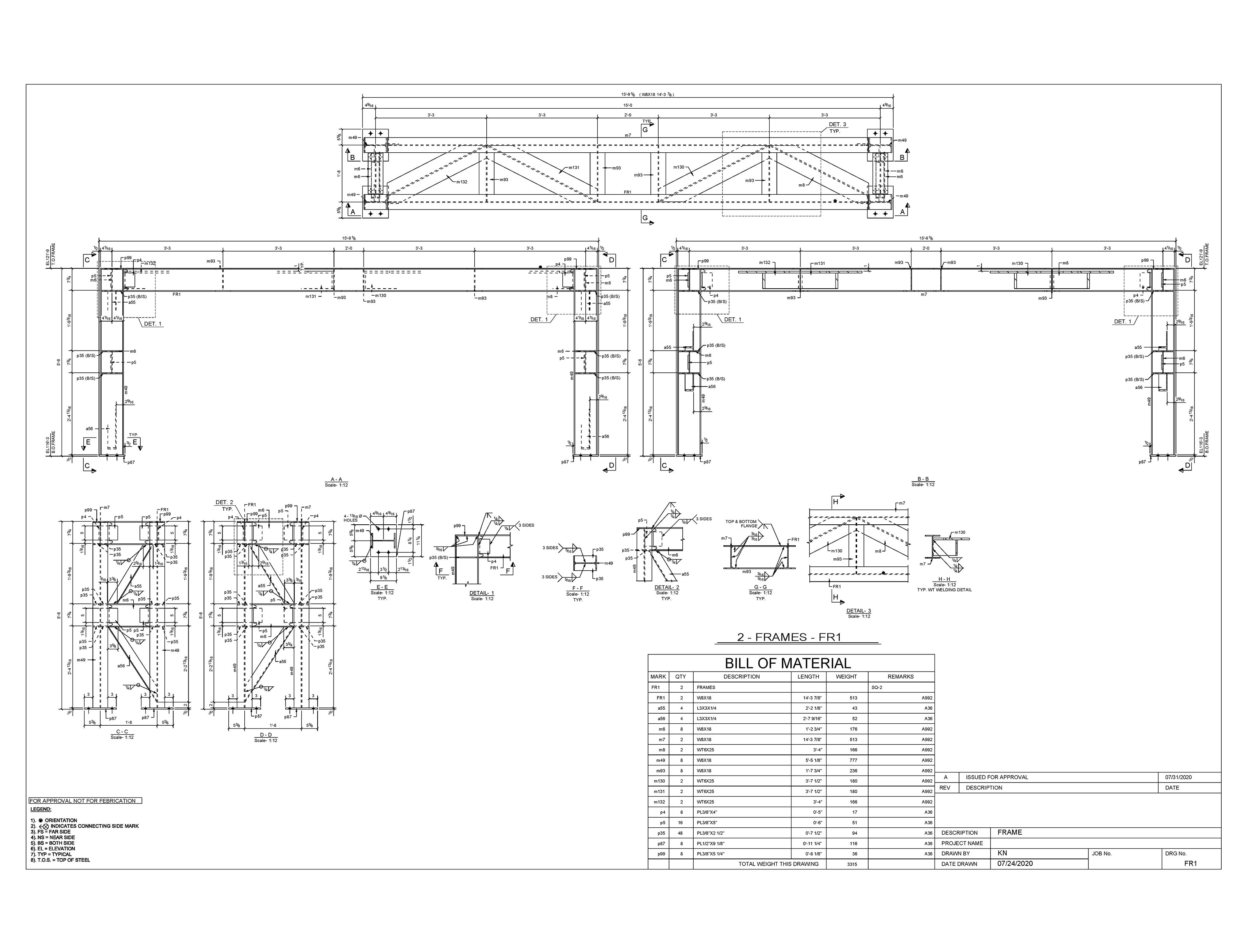
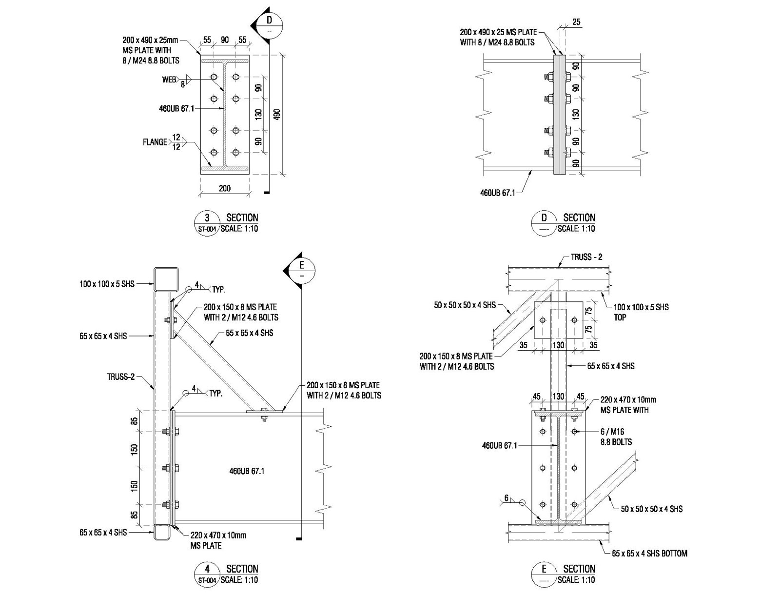
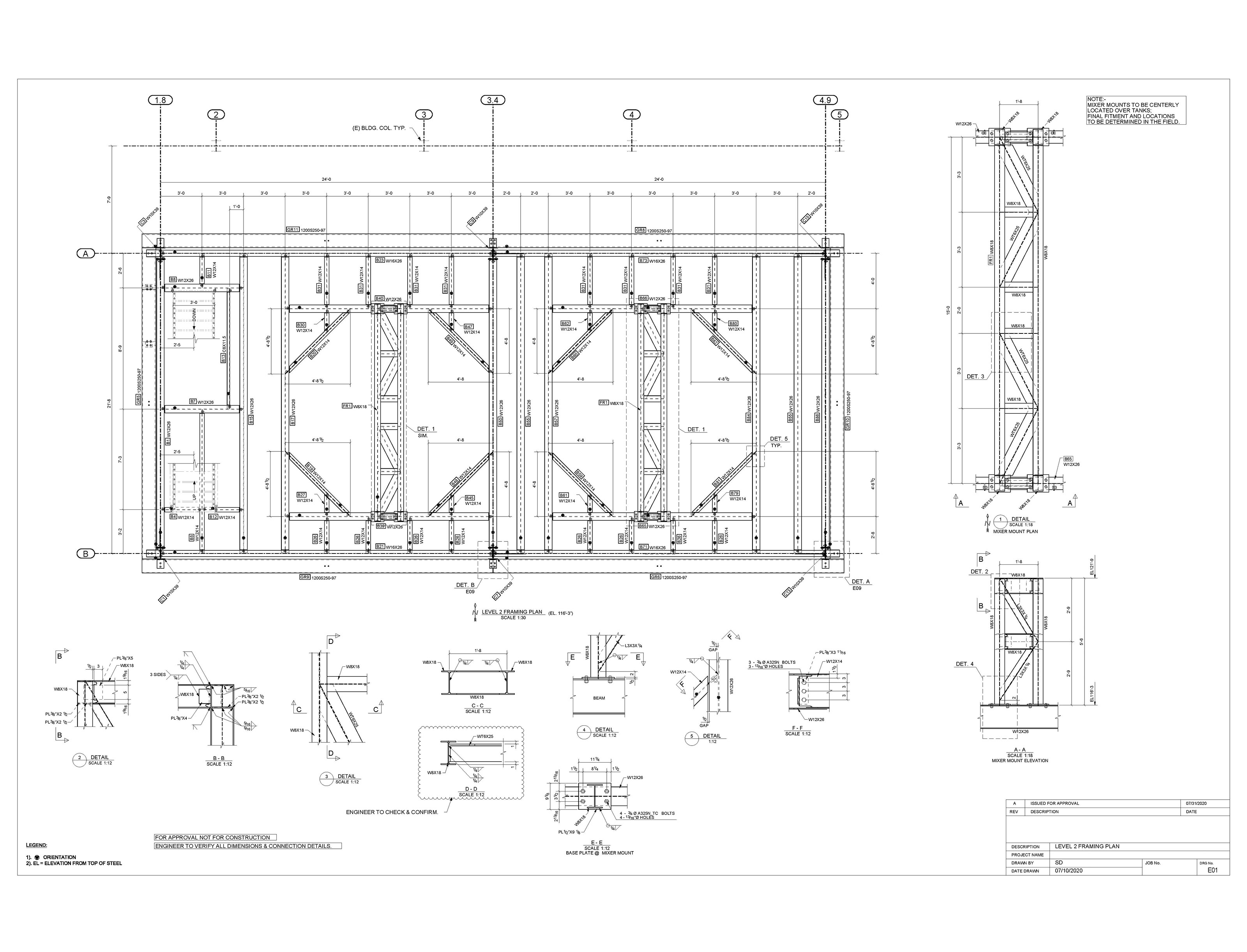
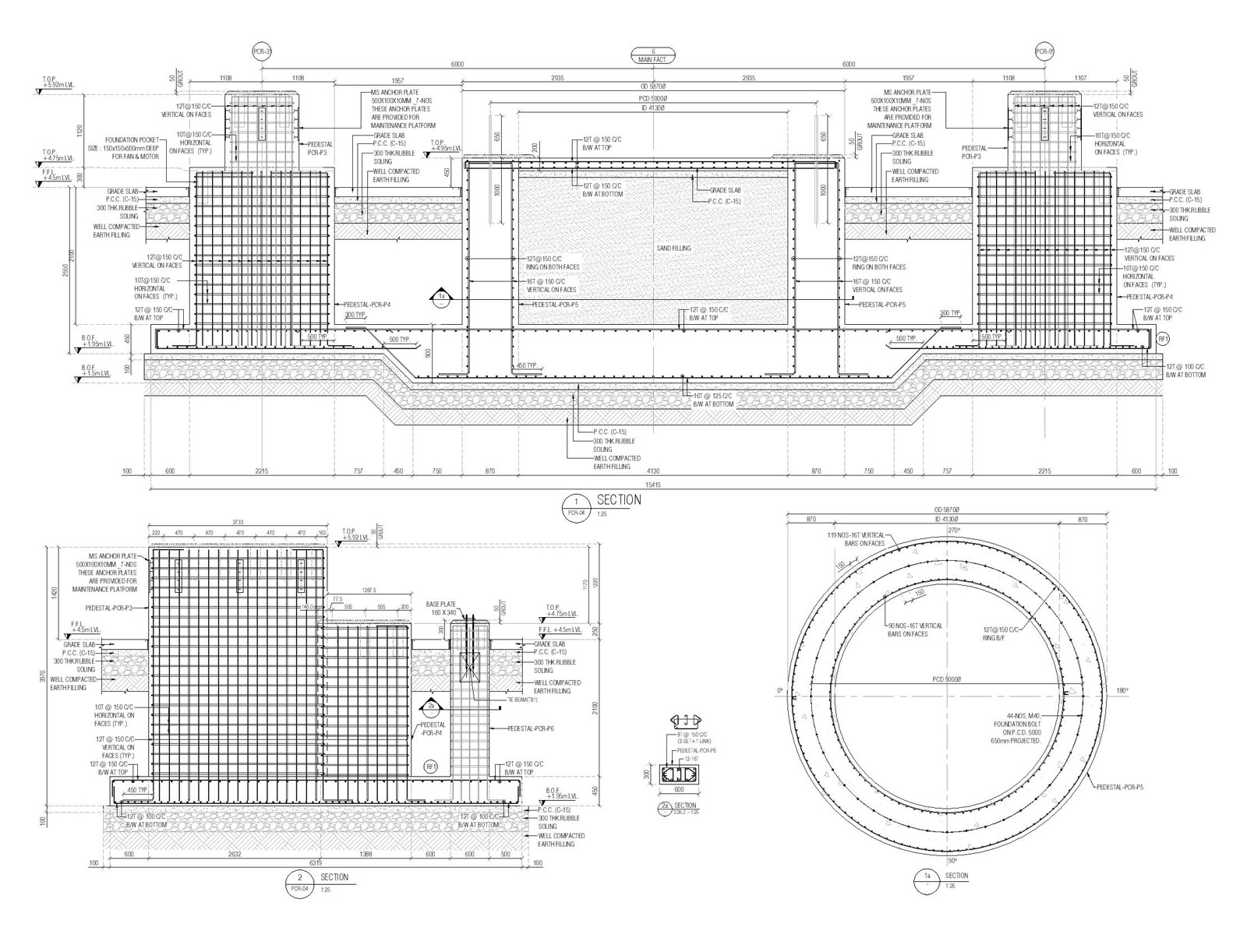
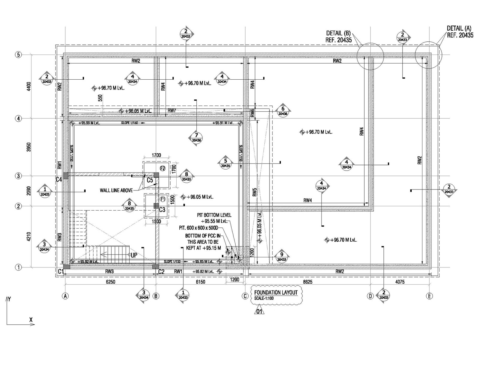
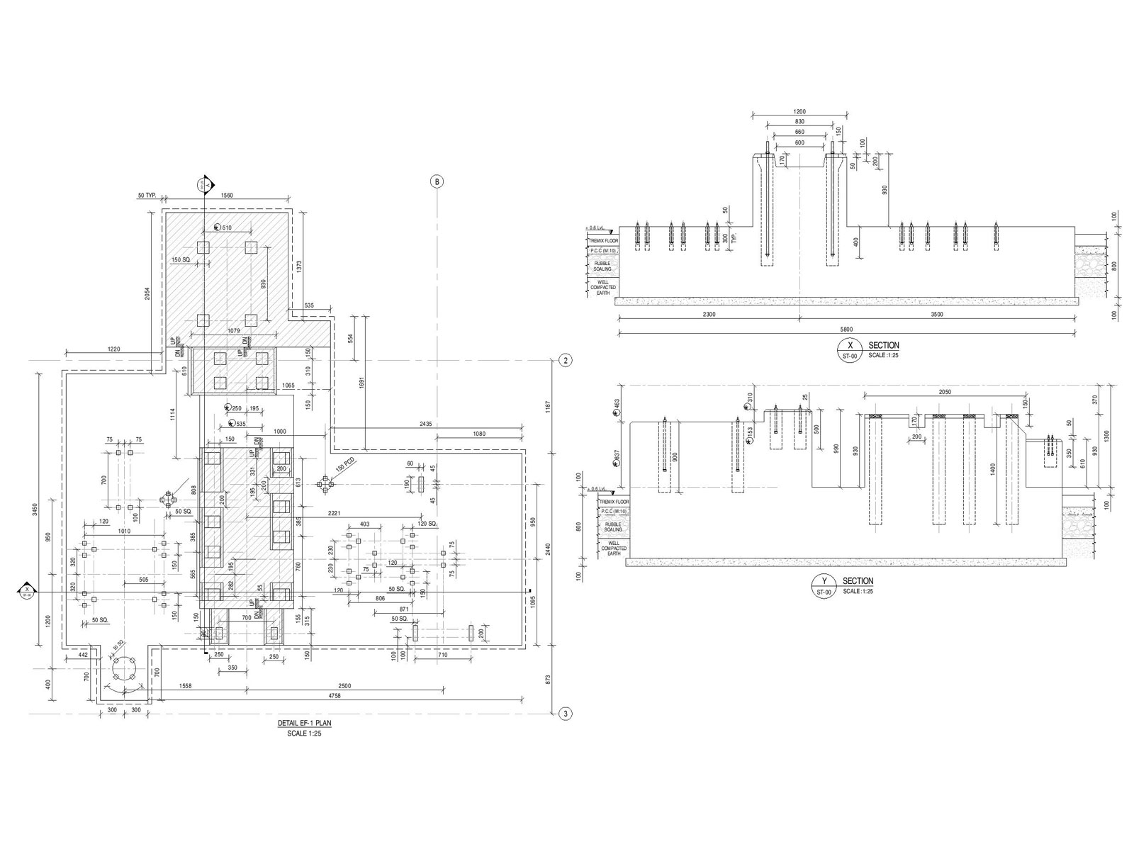
2D Drawings Samples