Get A Quote
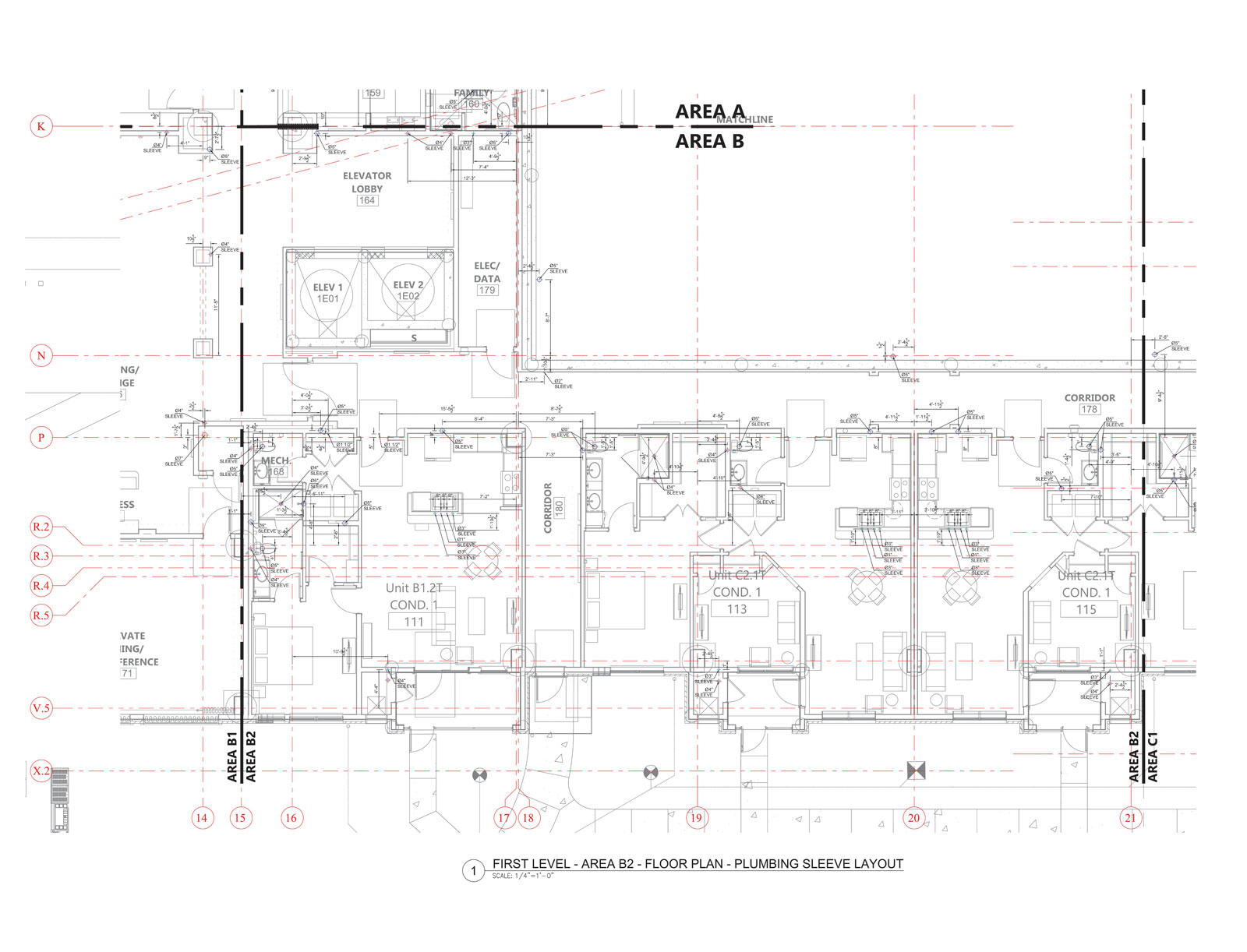
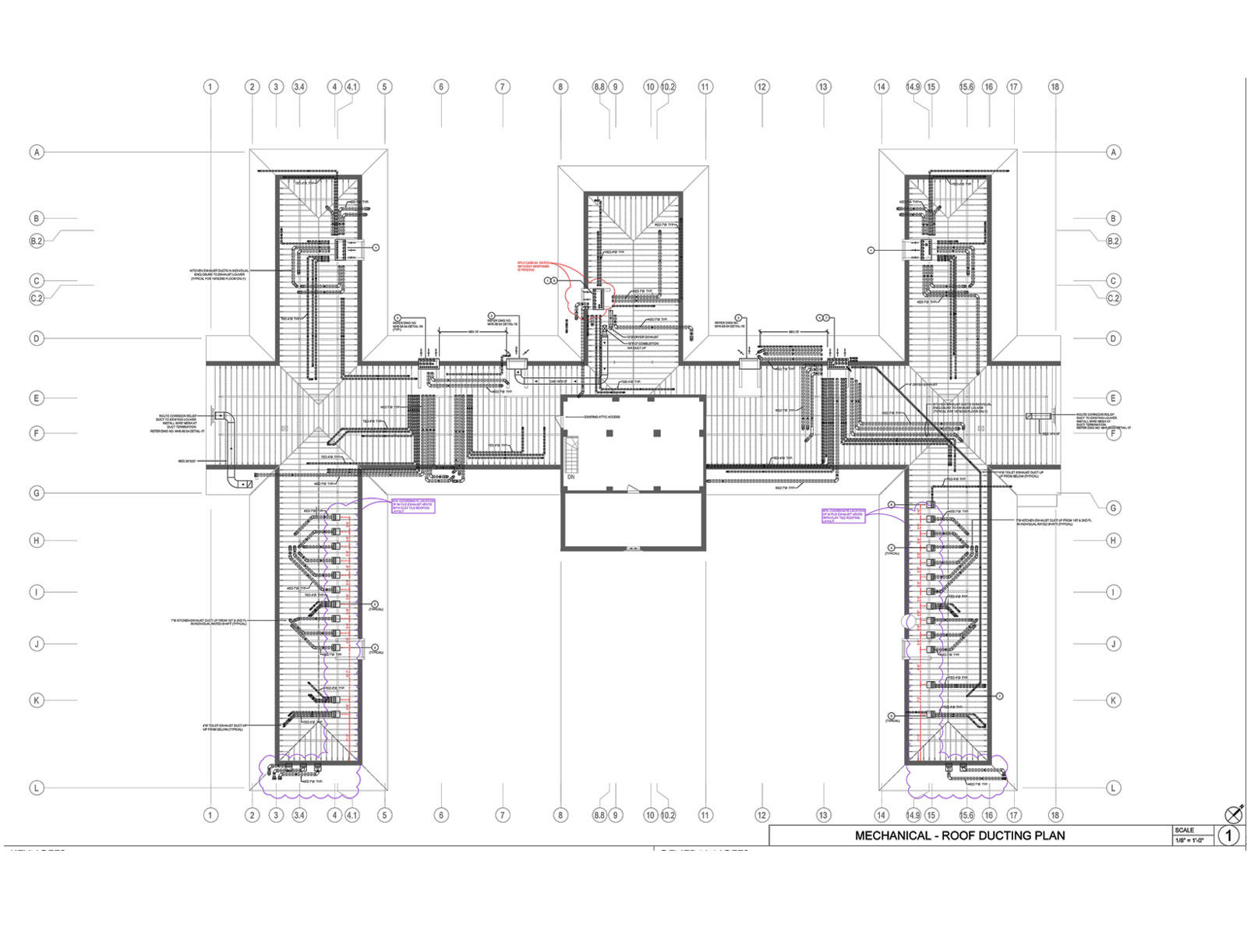
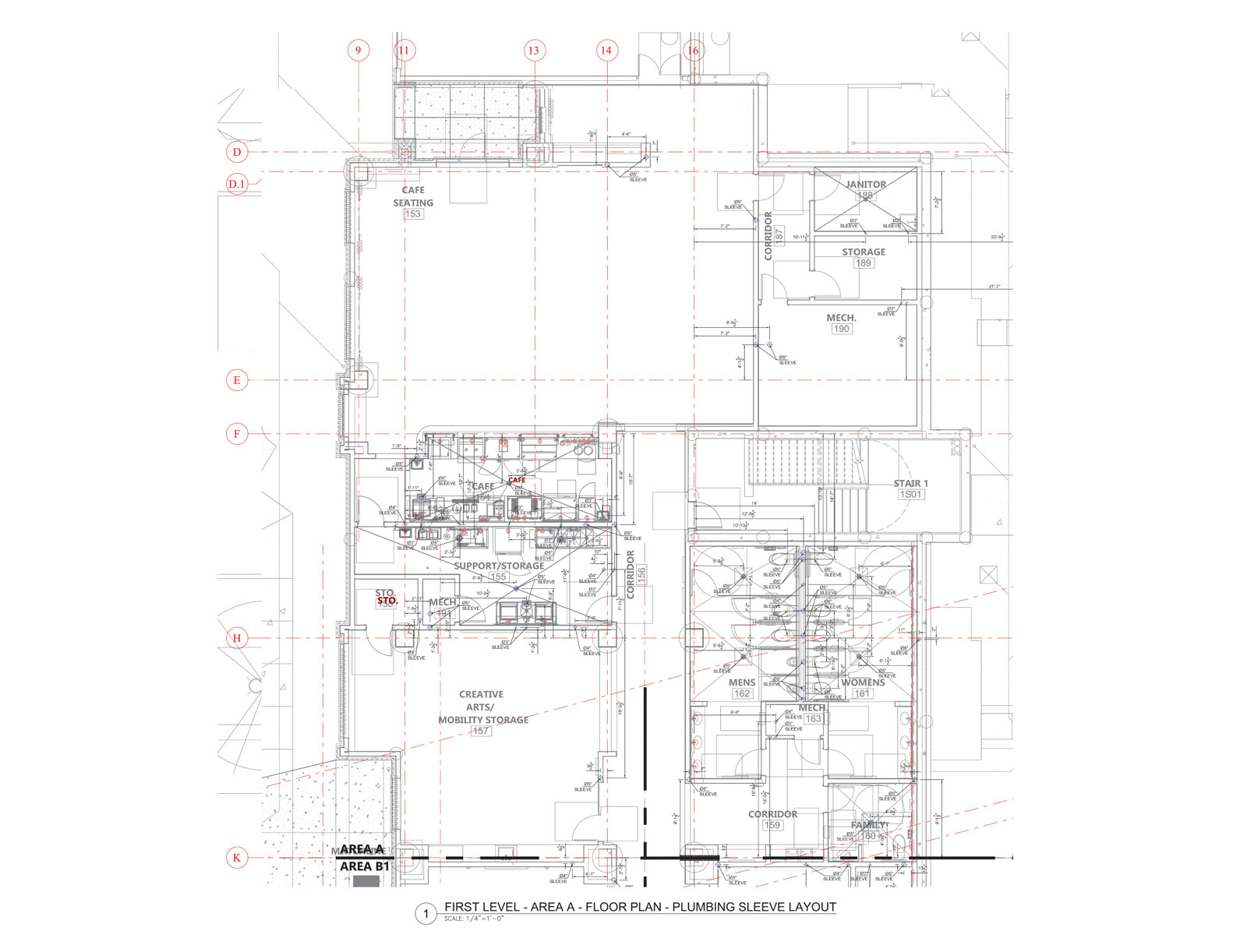
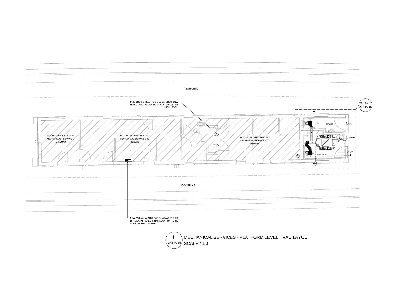
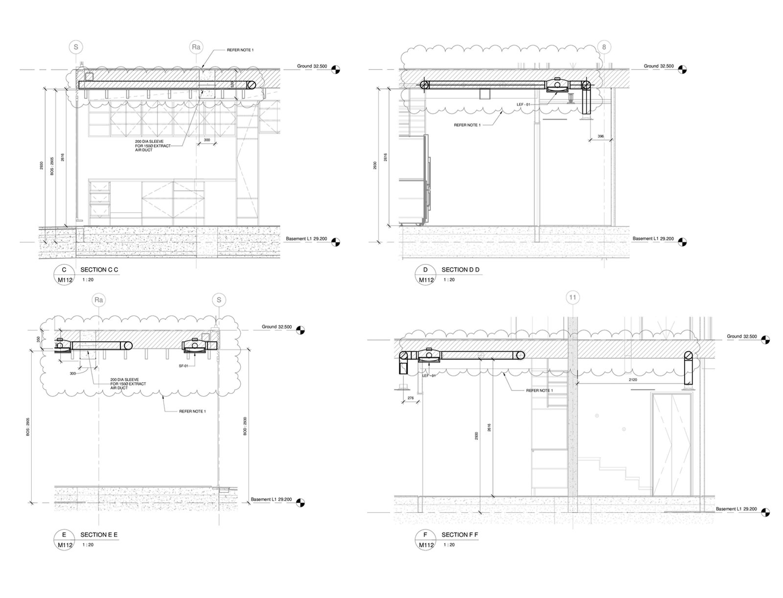
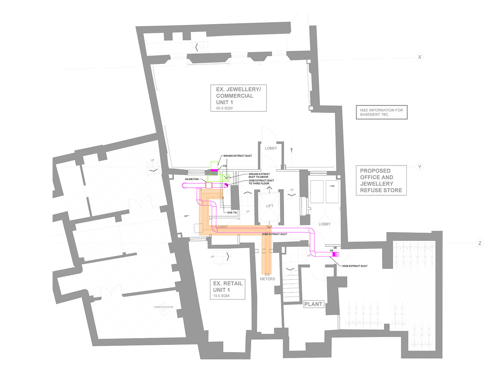
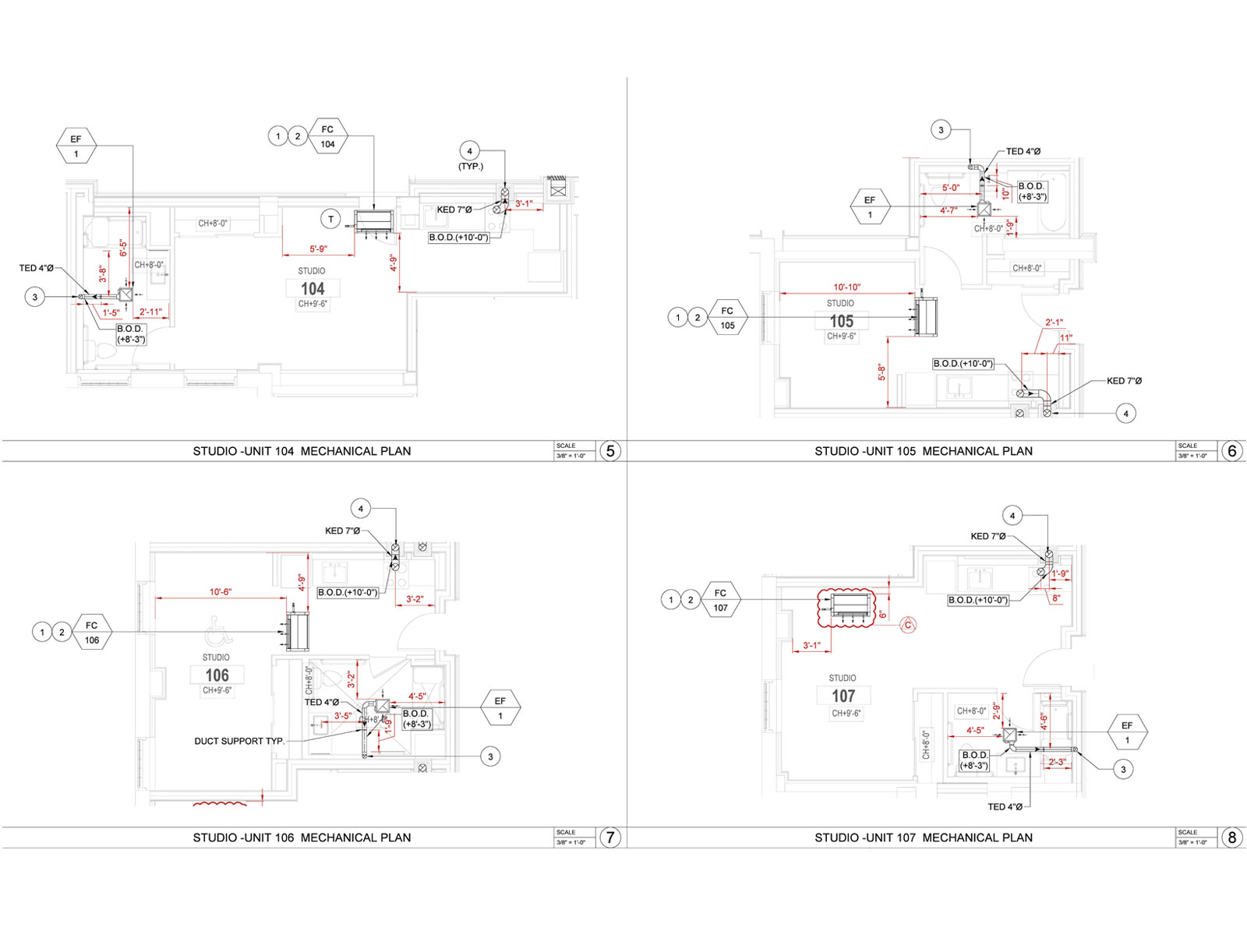
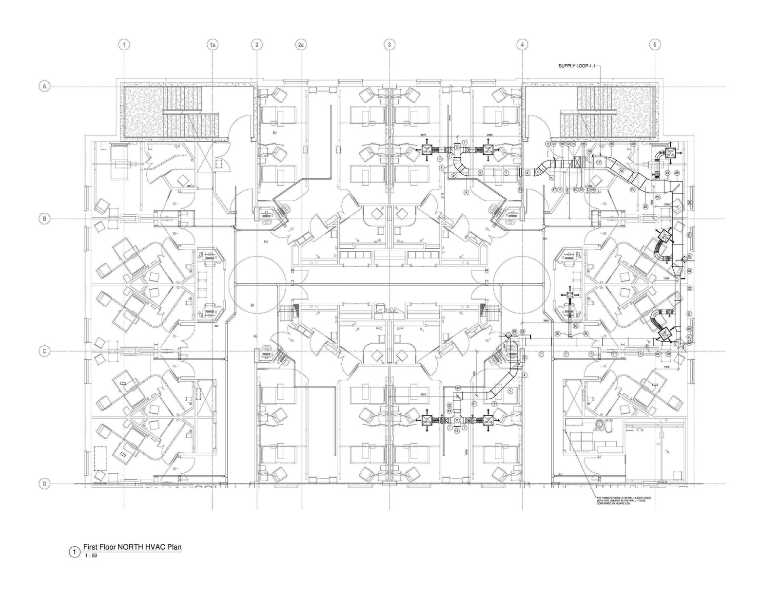
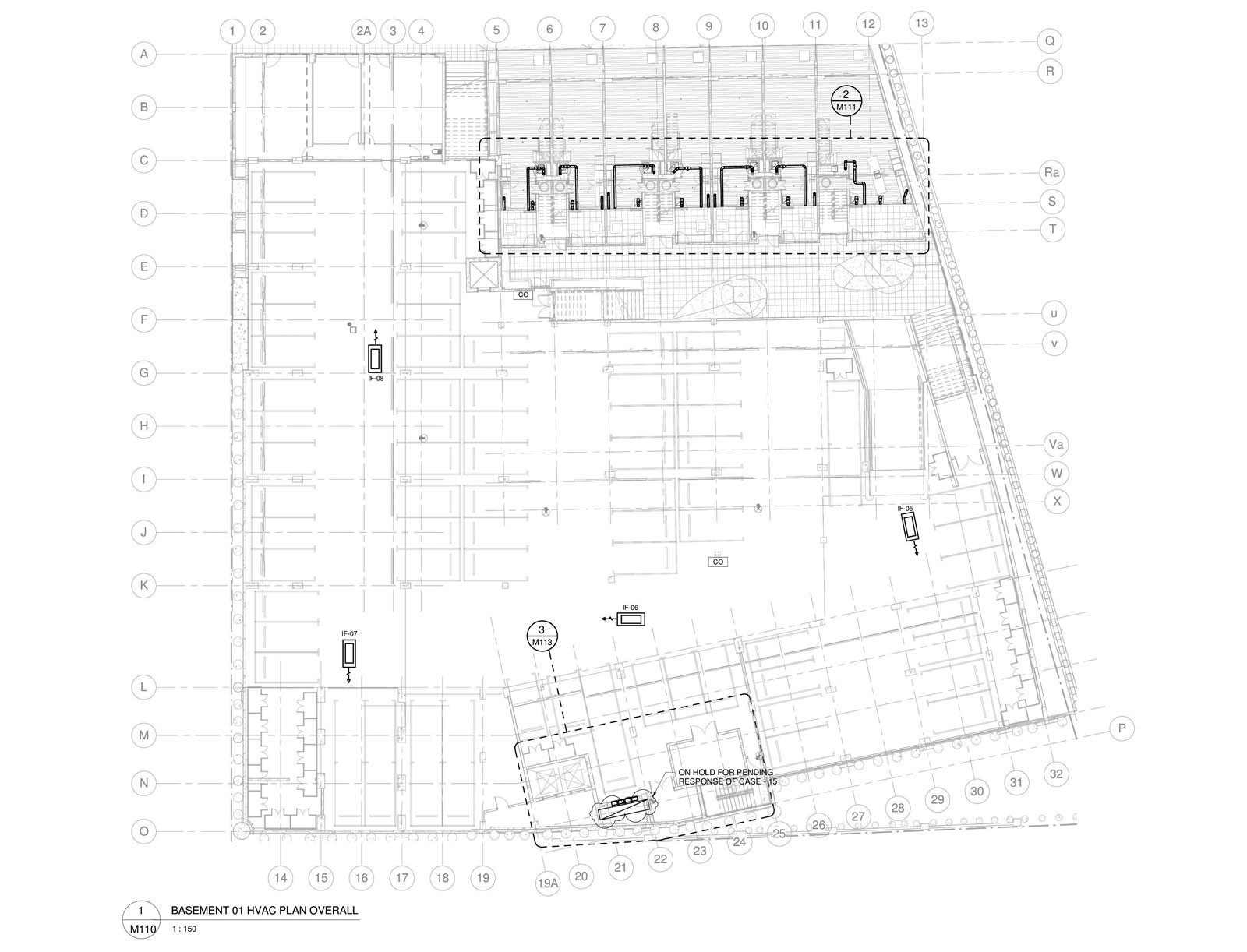
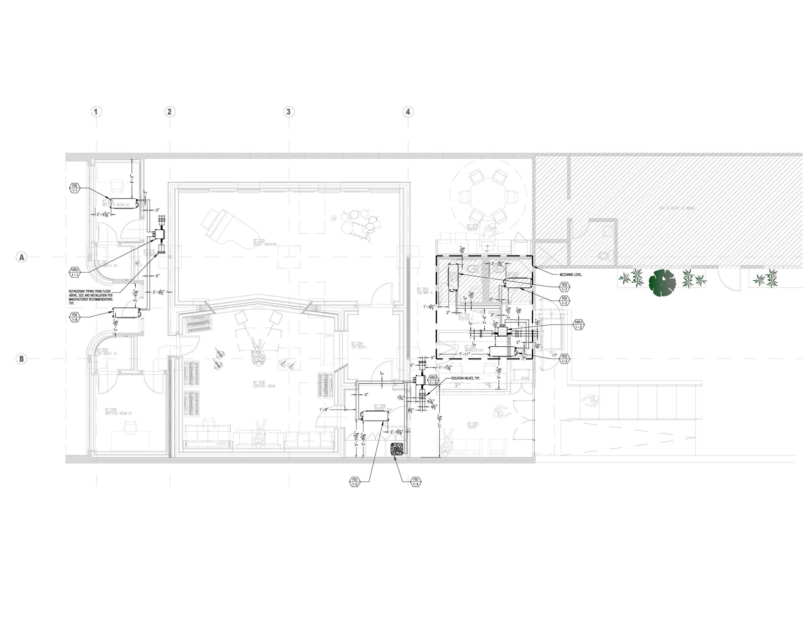
HVAC-Drawing Sample
Previous
Next
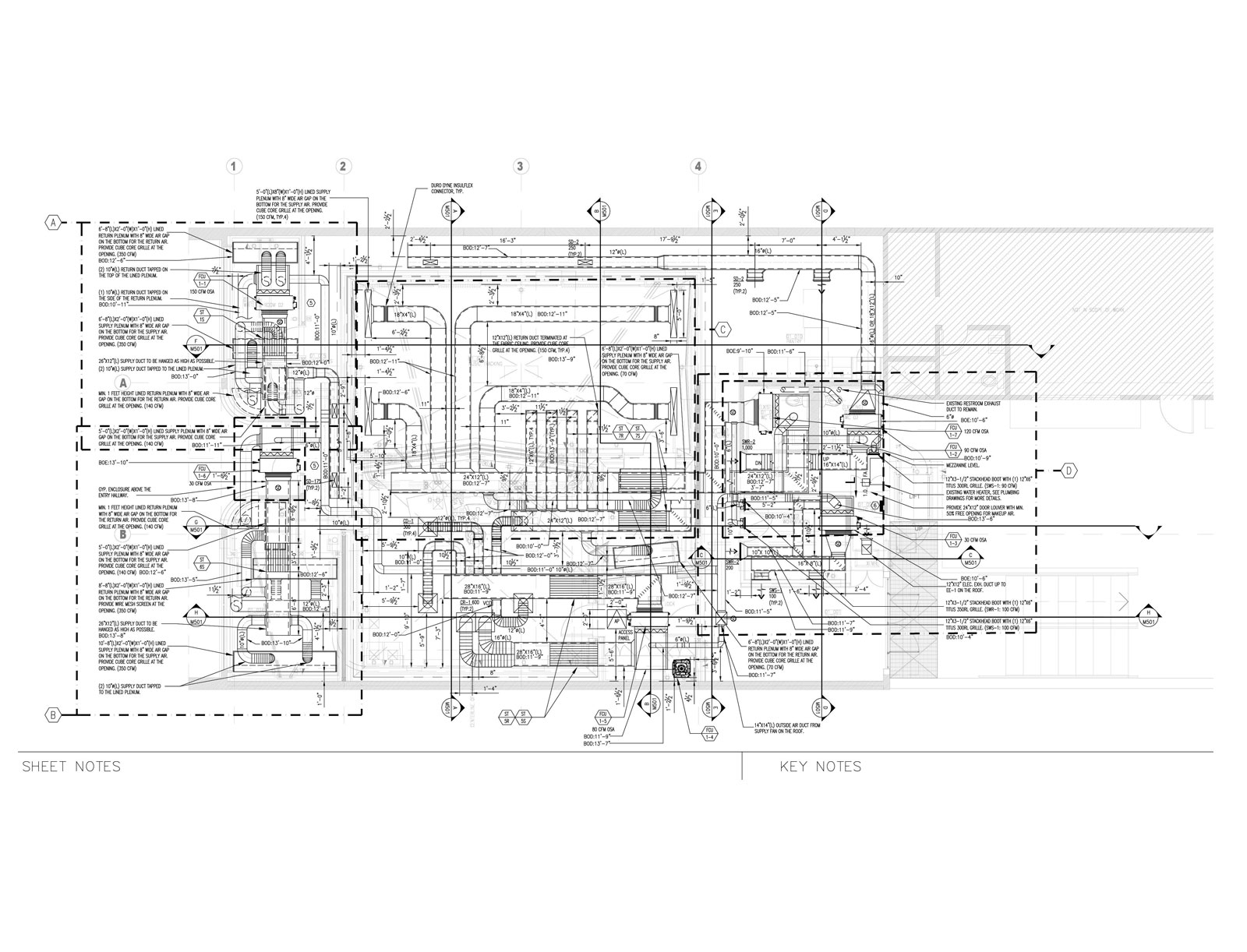
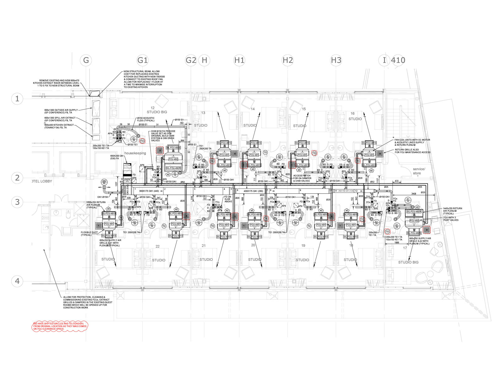
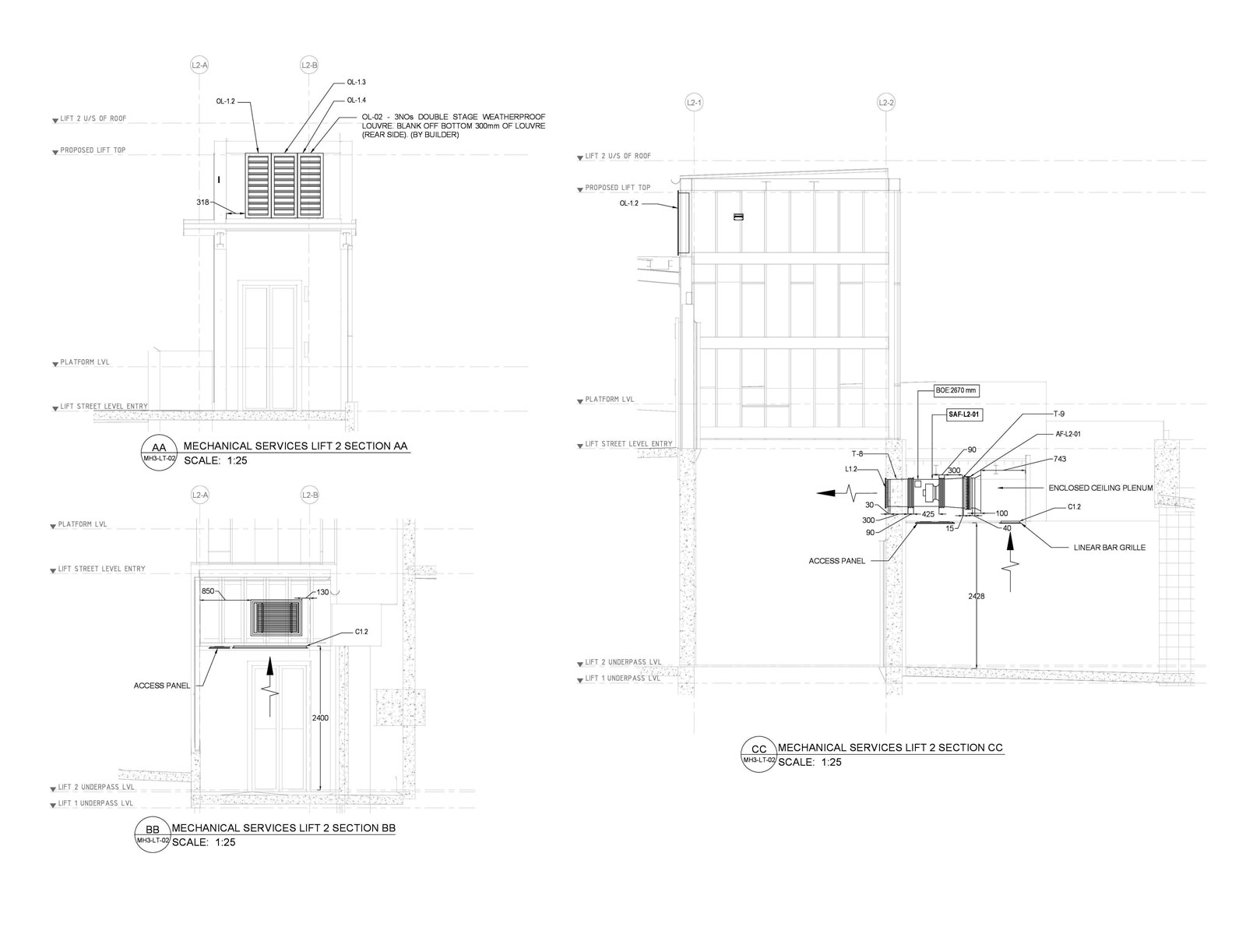
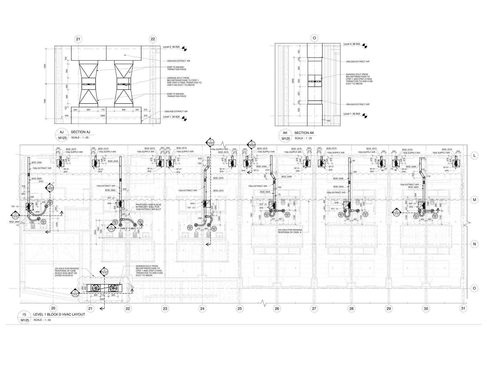
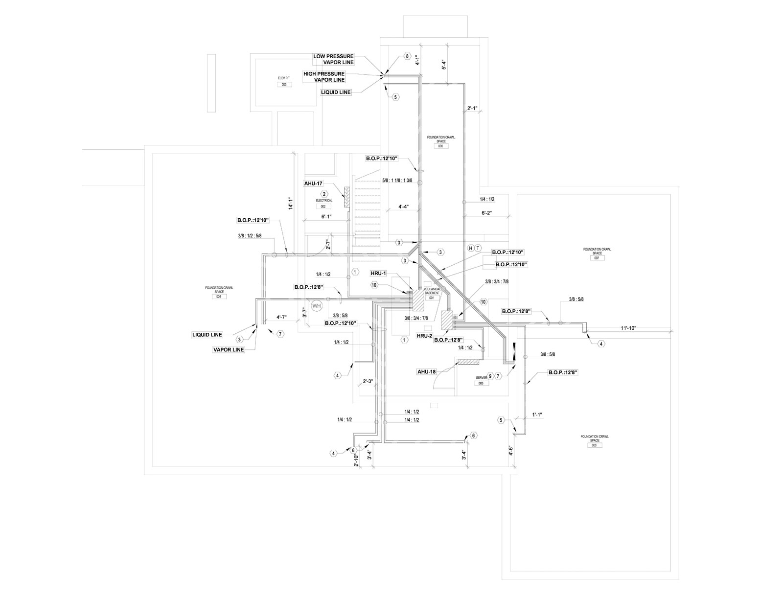
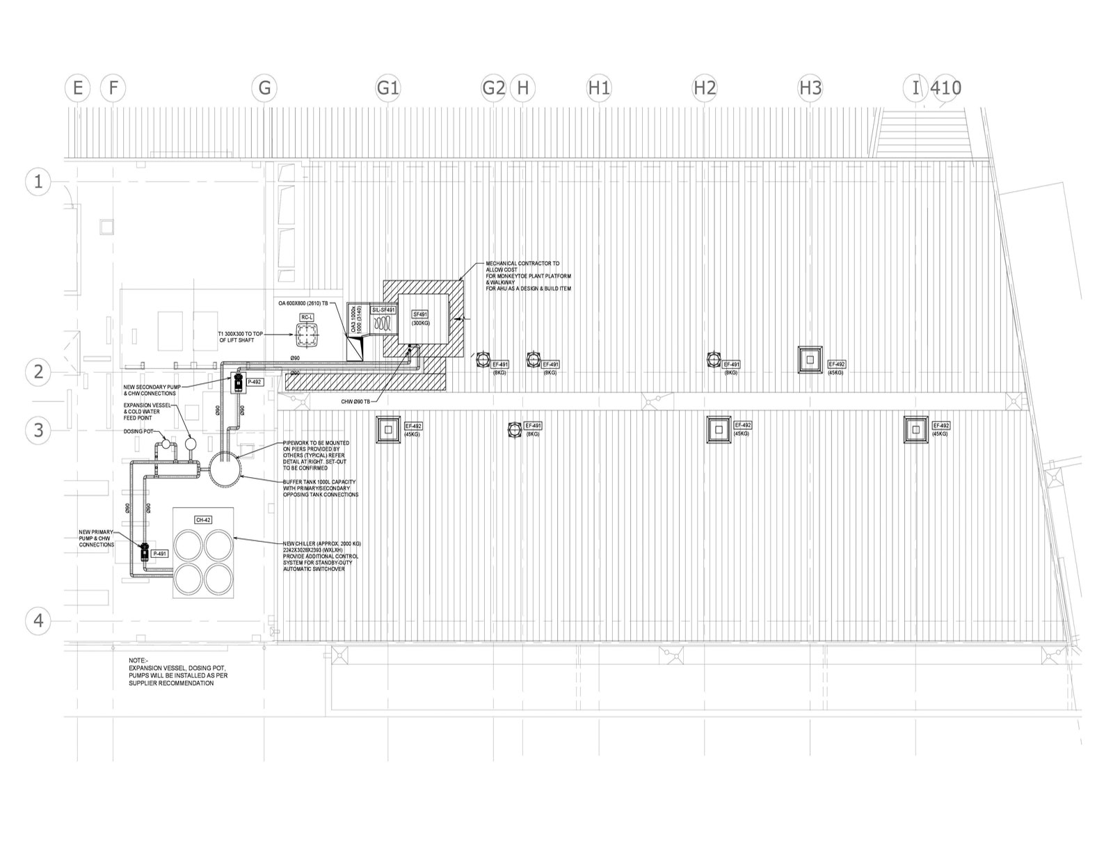
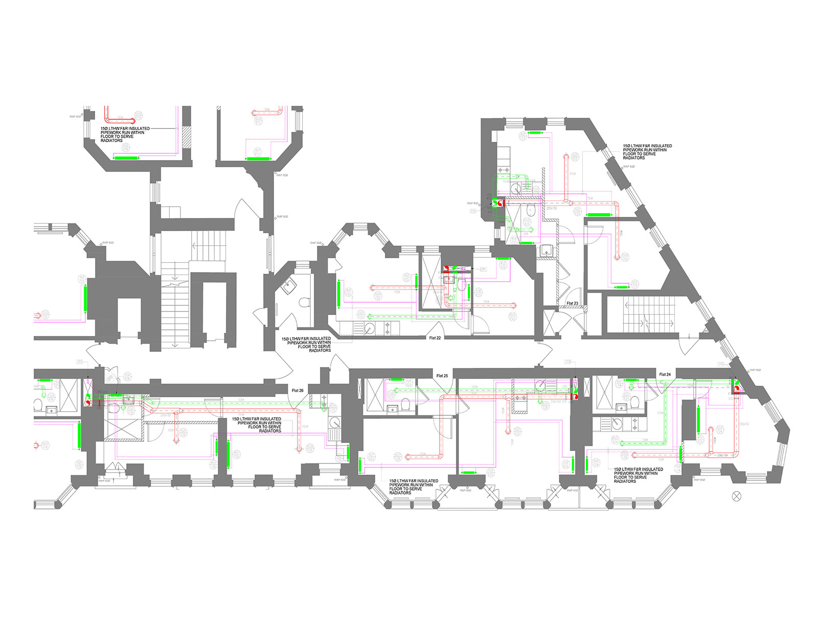
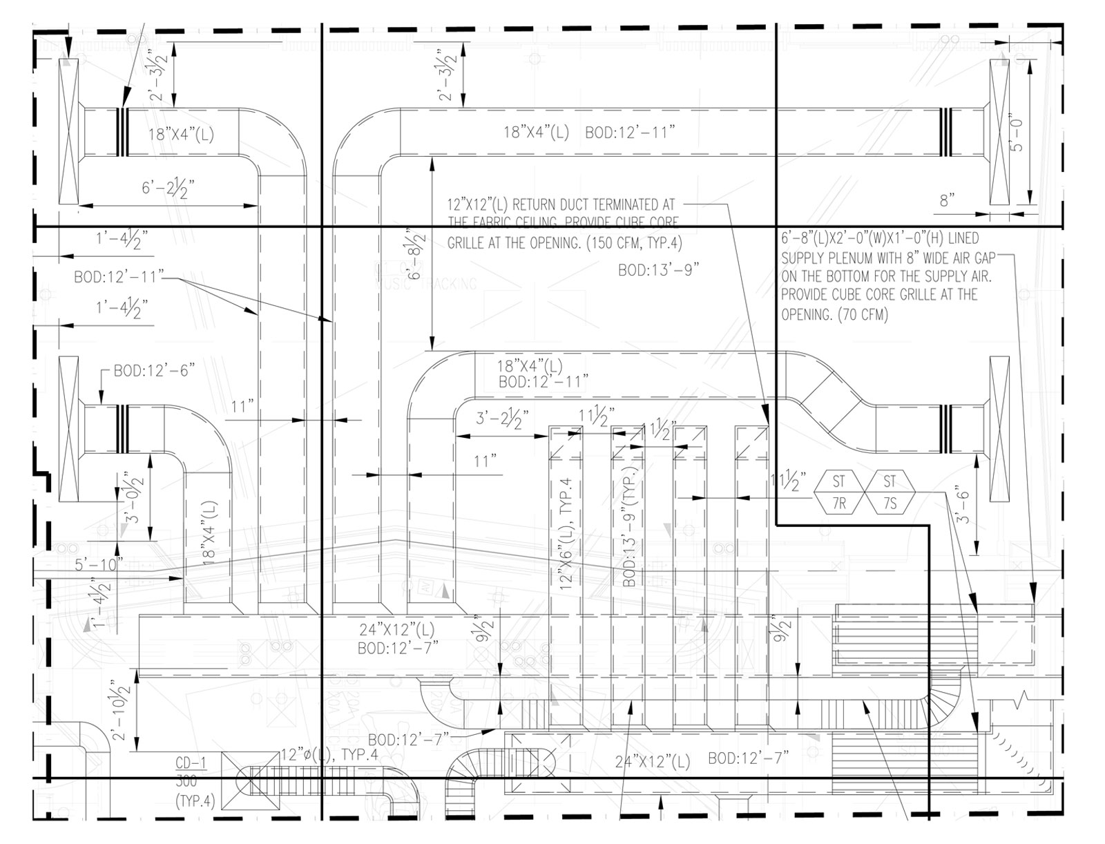
HVAC
Drawing Sample
3D View Samples
2D Drawings Samples