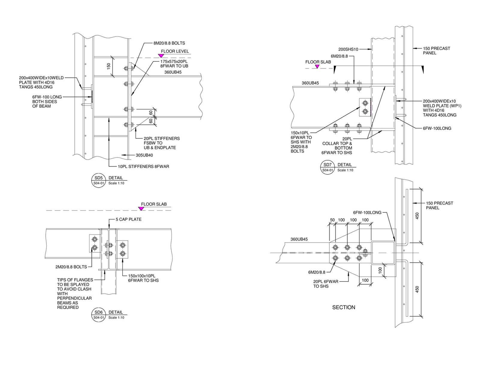
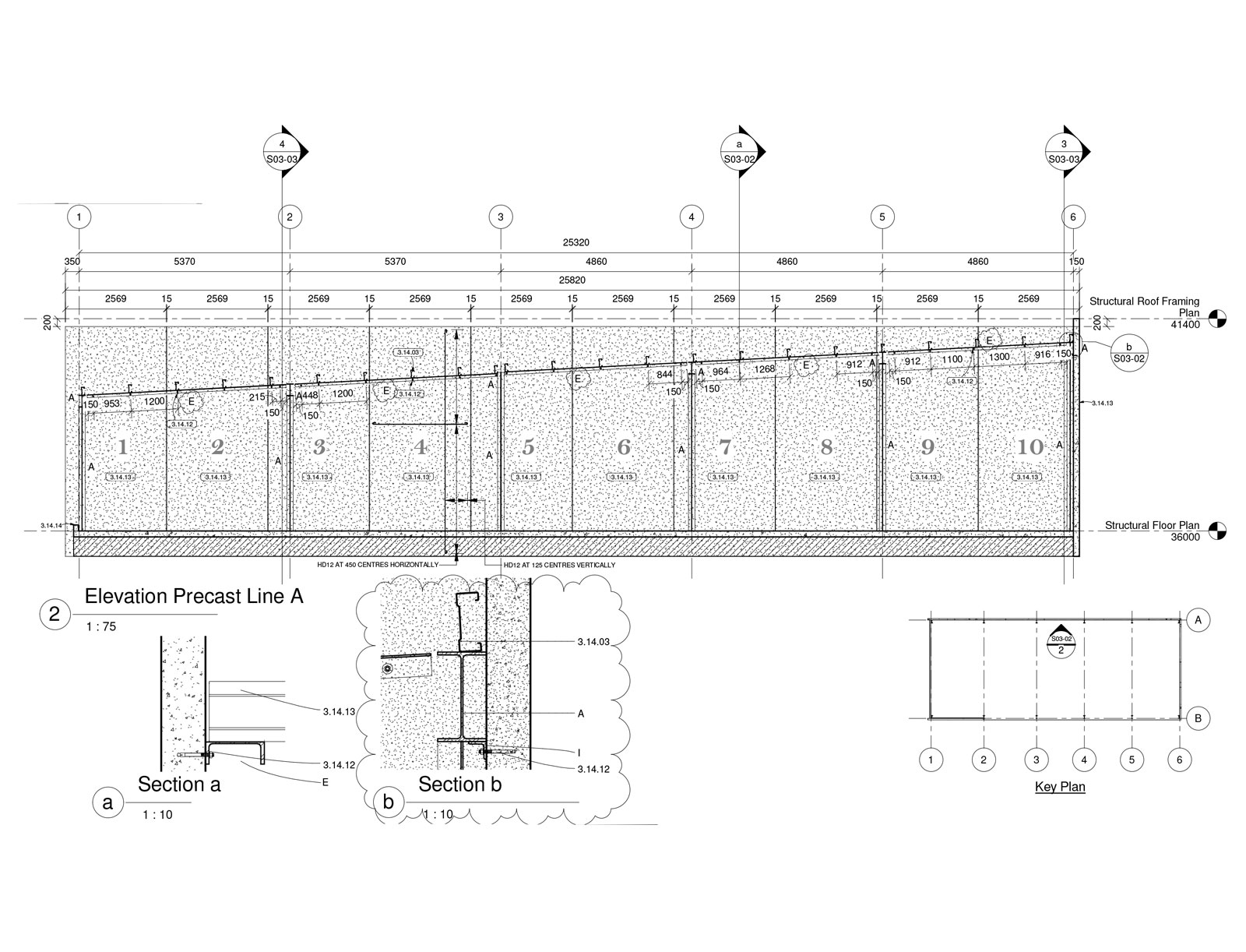
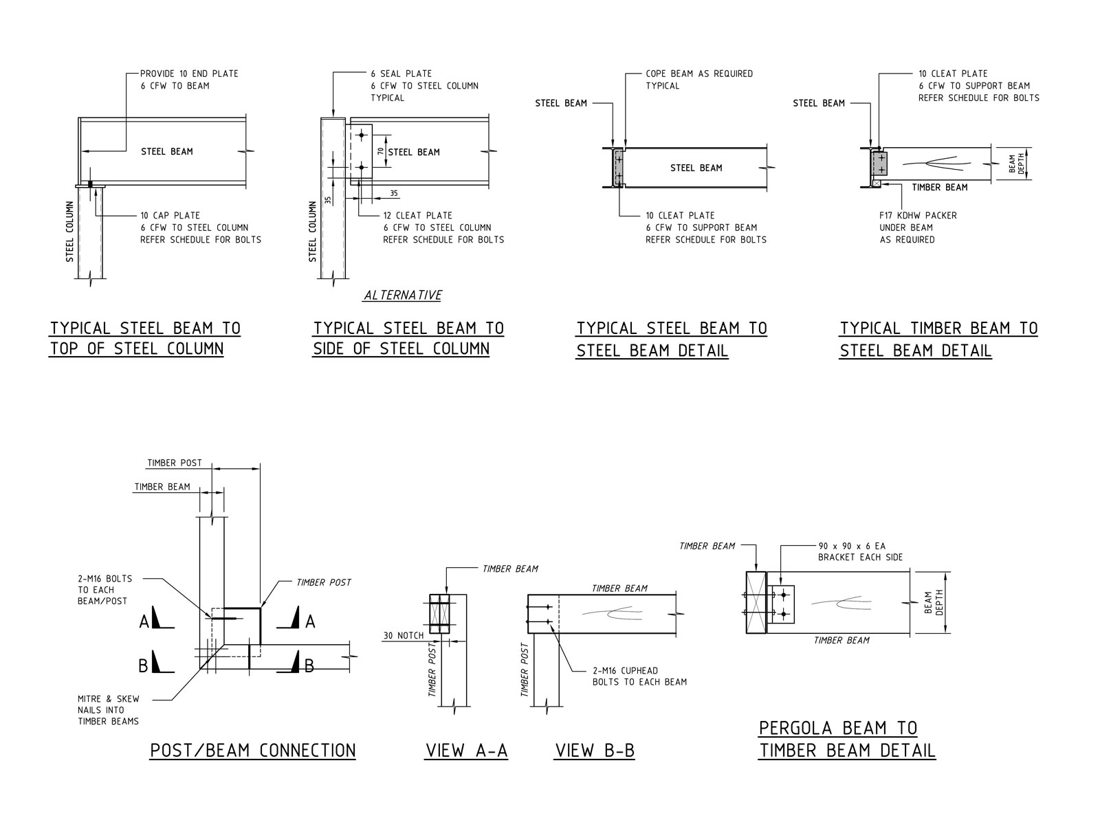
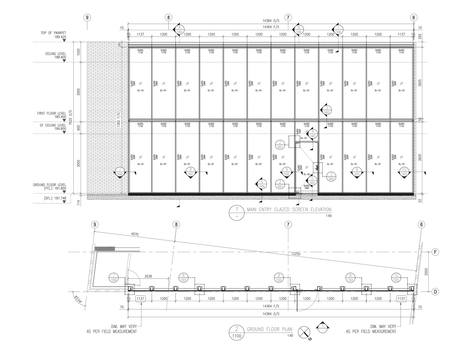
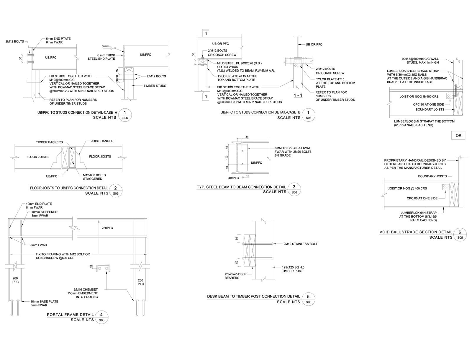
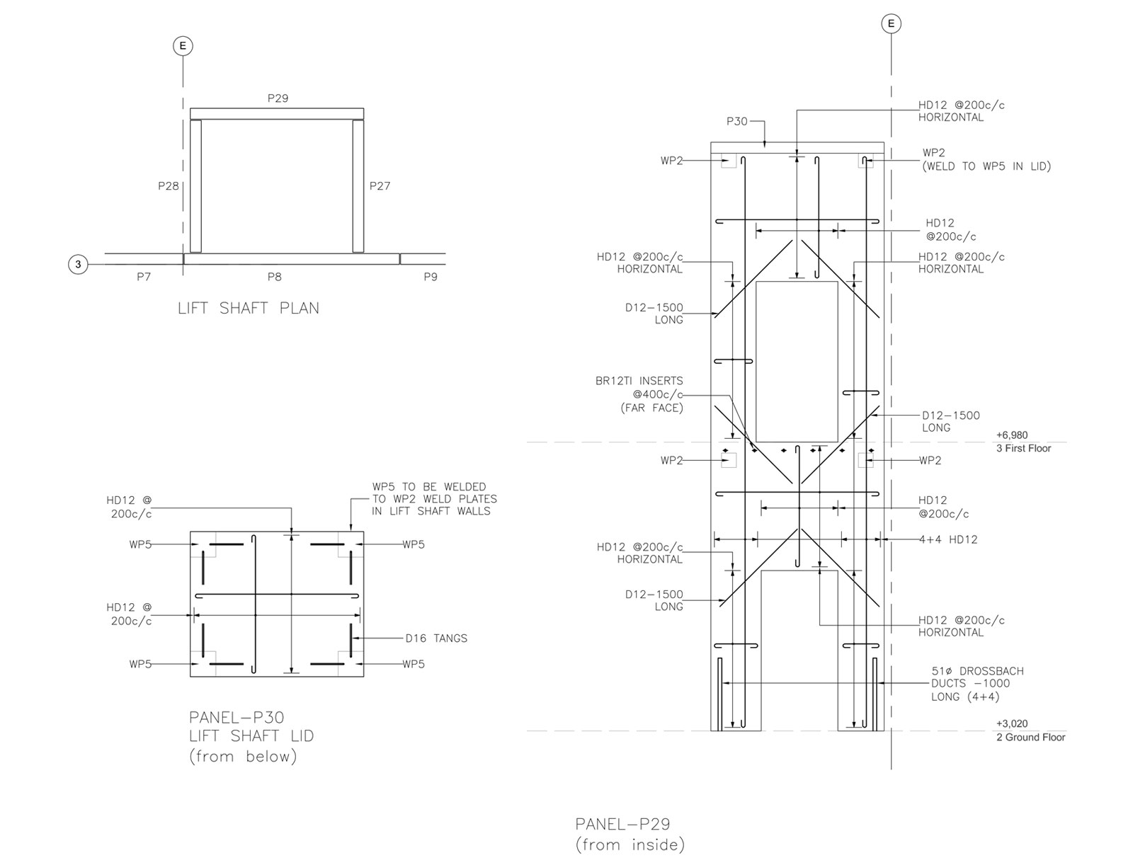
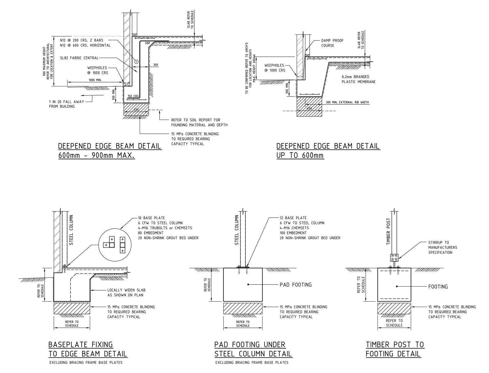
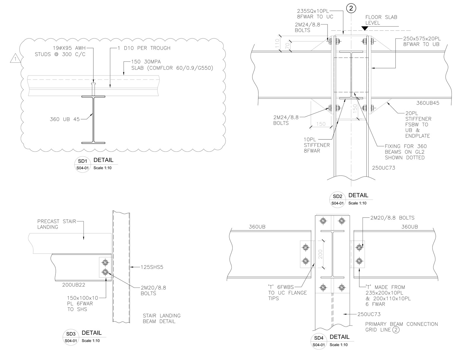
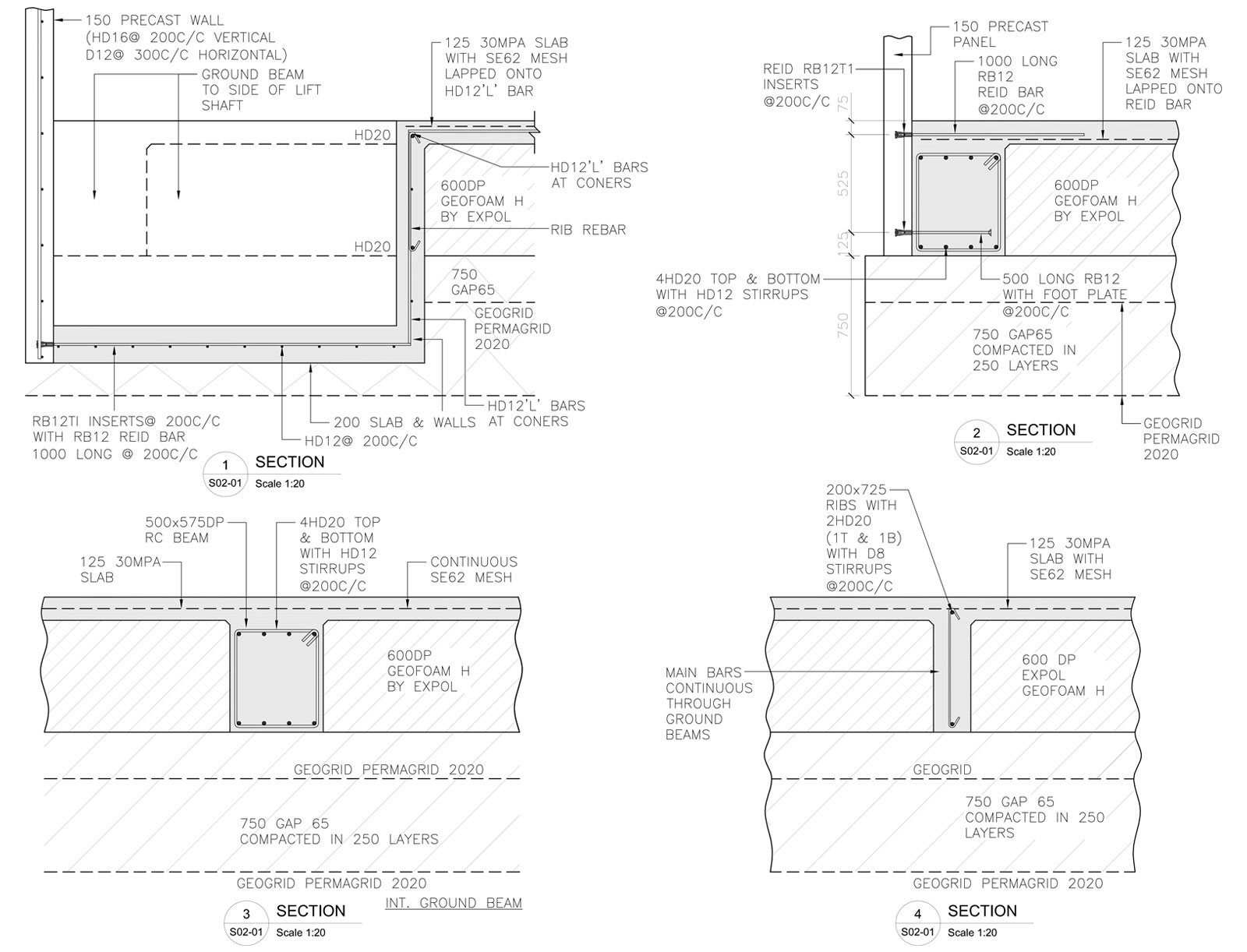
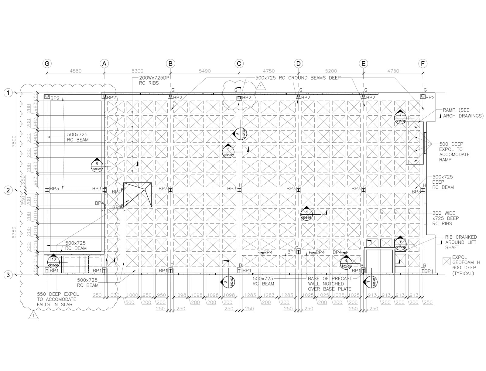
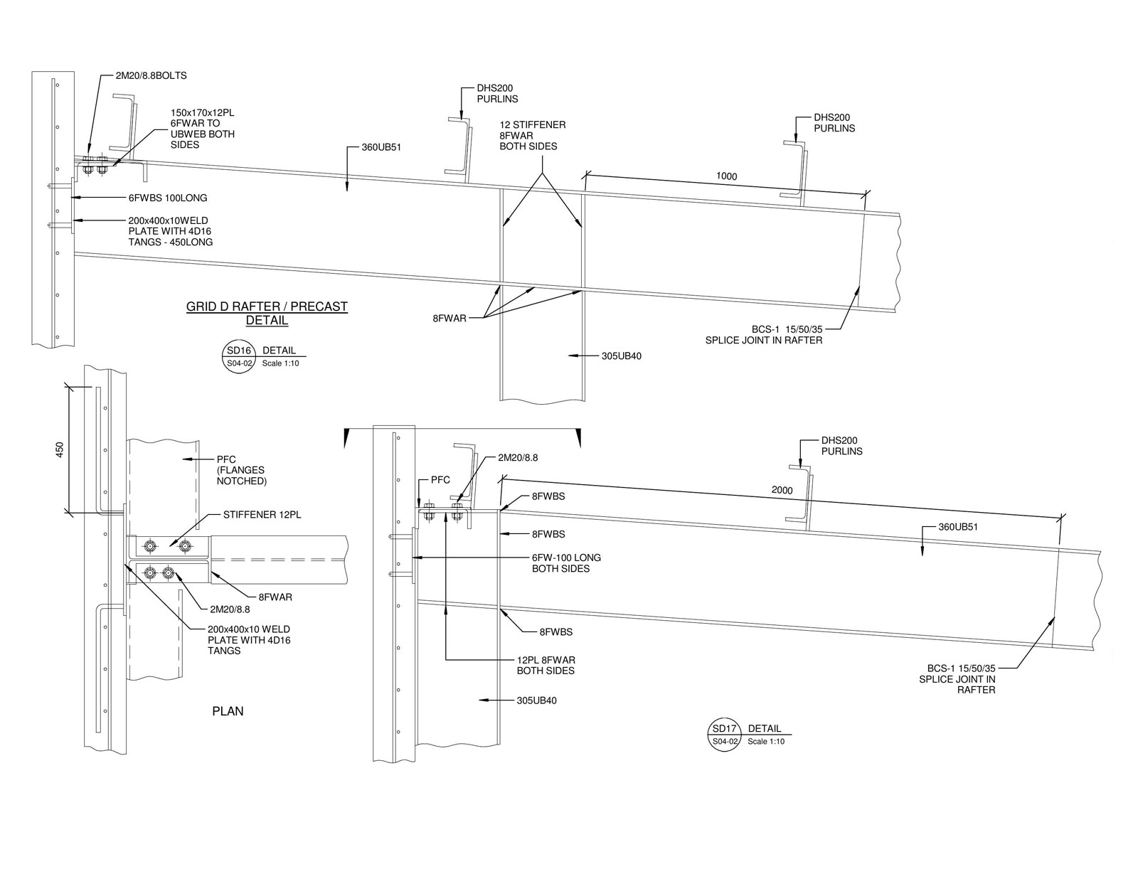
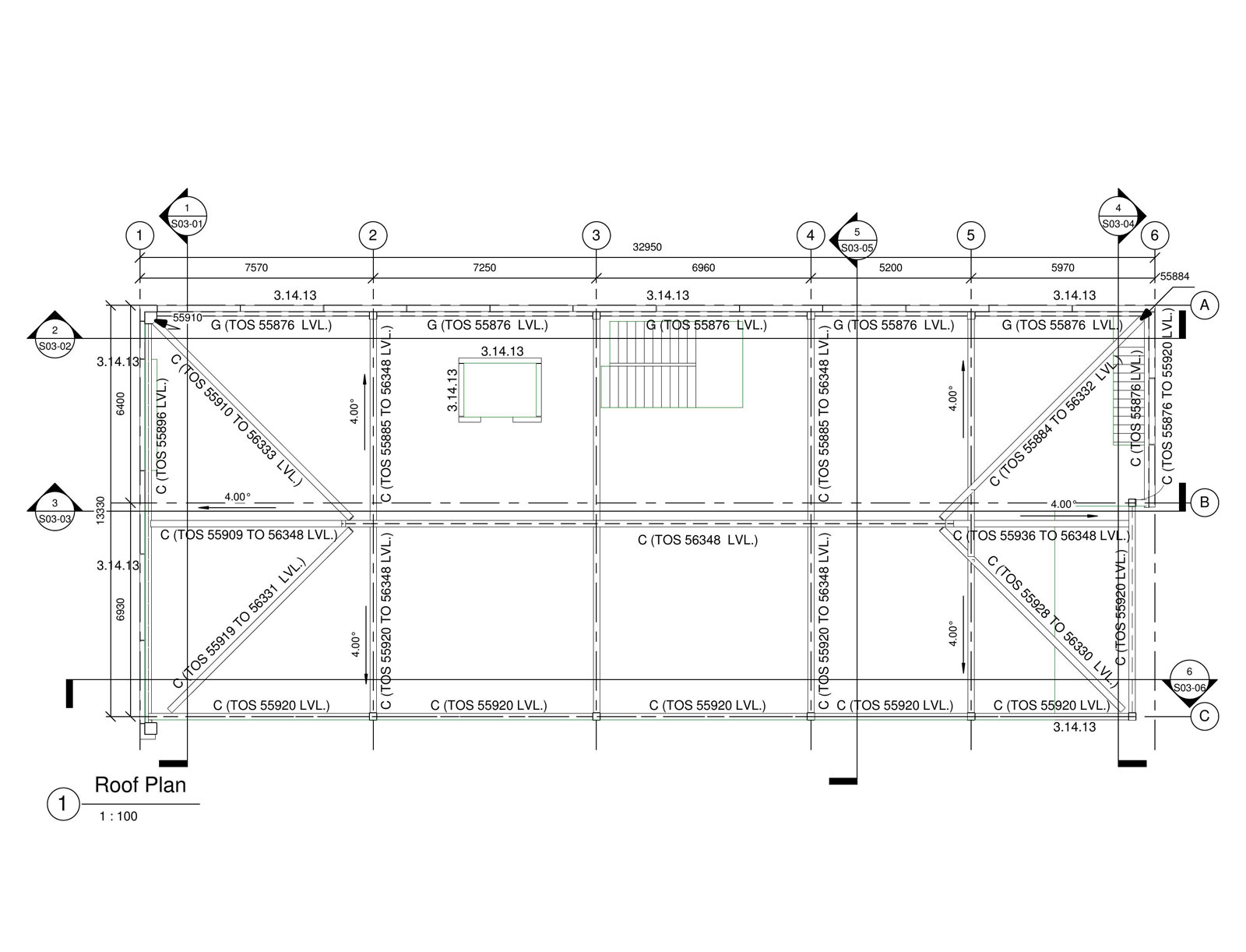
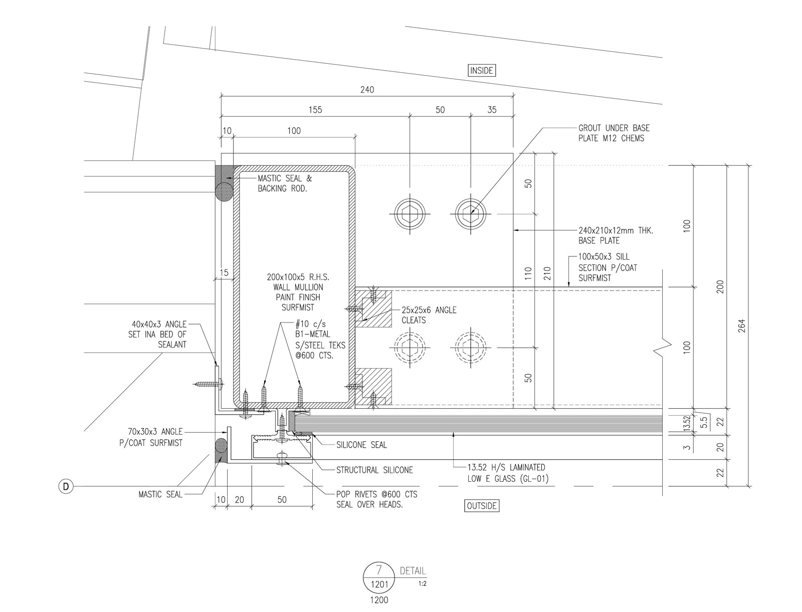
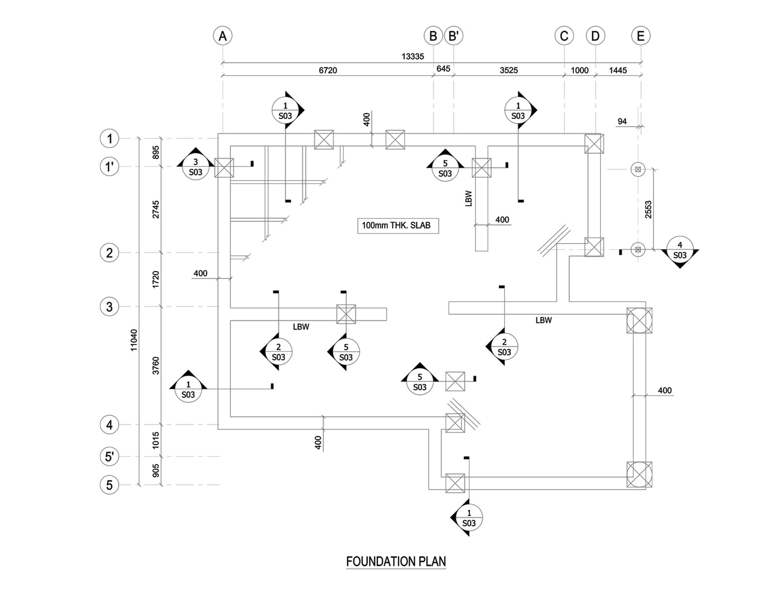
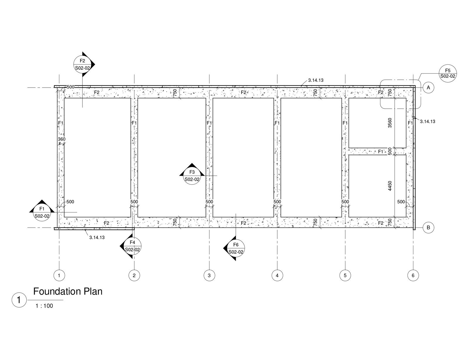
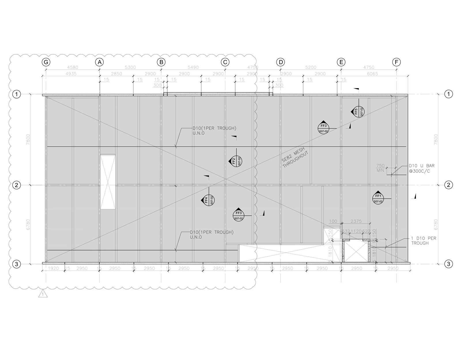
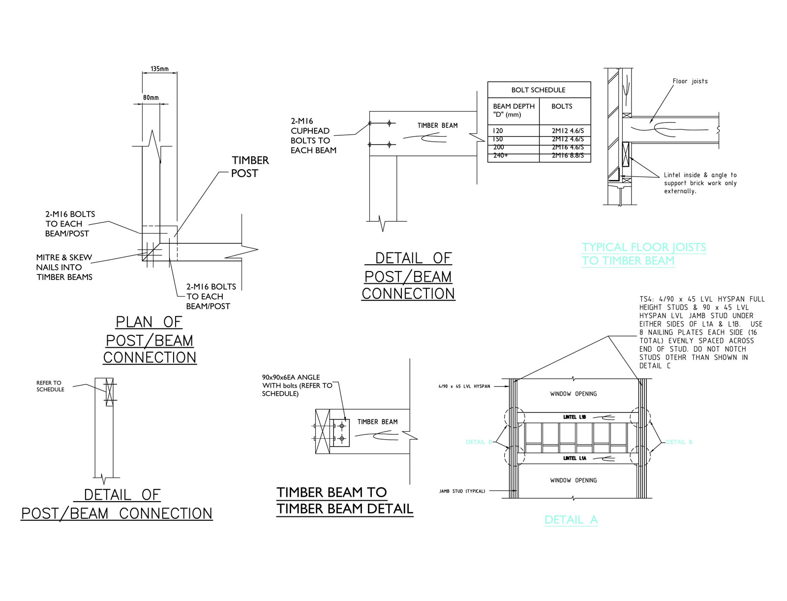
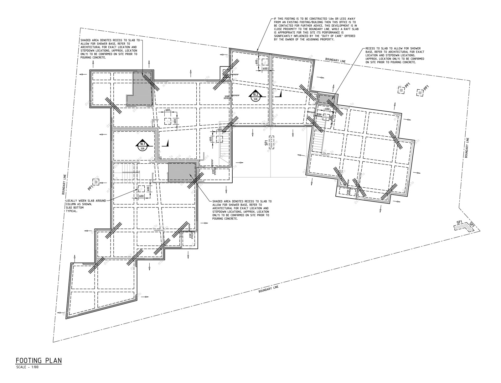
Structural 2D Drafting Samples, Structural CAD Drafting, Autocad Drafting Samples, CAD Drawings Samples, Structural 2D Drafting Services, Outsourcing Structural Drafting Services